2 Zimmer Wohnung mit hofseitigem Balkon in bester Lage - 1050 Wien!
Wohnung
- Etage,
1050
Wien
,
Siebenbrunnengasse 8
Die Siebenbrunnengasse 8 befindet sich im 5. Wiener Gemeindebezirk, Margareten, einer zentral gelegenen und lebendigen Gegend Wiens. Die Umgebung zeichnet sich durch eine Mischung aus historischen Altbauten und modernen Einrichtungen aus. In unmittelbarer Nähe finden Sie eine Vielzahl von Geschäften, Restaurants und Cafés, die zum Verweilen einladen. Die Verkehrsanbindung ist hervorragend: Die U-Bahn-Station Pilgramgasse (Linie U4) sowie die Straßenbahnlinien 62 und 65 und die Buslinien 12A, 13A und 14A sind in wenigen Minuten zu Fuß erreichbar. Diese bieten schnelle Verbindungen sowohl ins Stadtzentrum als auch in andere Bezirke Wiens. Für Erholung im Grünen sorgt der nahegelegene Einsiedlerpark, der zu Spaziergängen und Freizeitaktivitäten einlädt. Zudem befinden sich kulturelle Einrichtungen wie das Filmcasino und das Theater Scala in der Umgebung, die ein vielfältiges Programm bieten. Insgesamt bietet die Lage der Siebenbrunnengasse 8 eine ideale Kombination aus urbanem Leben, hervorragender Infrastruktur und kulturellem Angebot.
Beschreibung der Immobilie
2 Zimmer Wohnung mit hofseitigem Balkon in bester Lage - 1050 Wien!
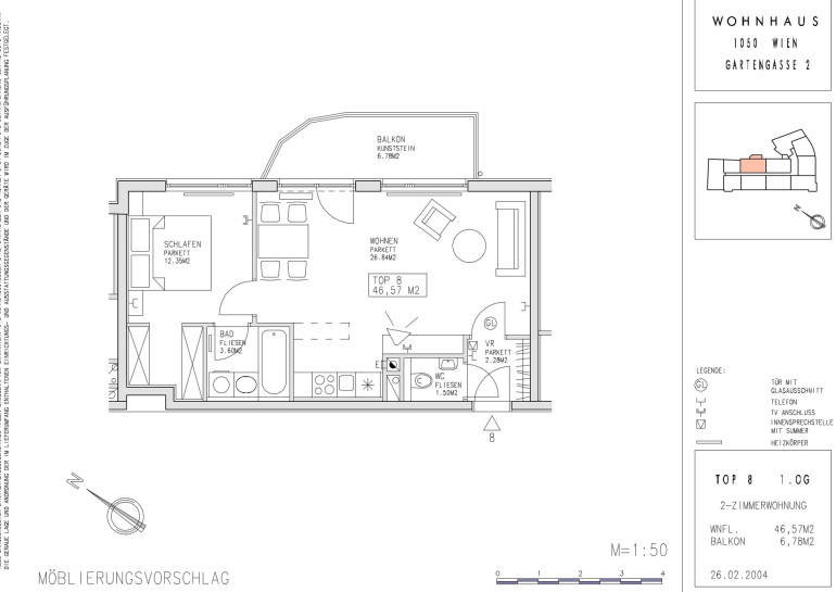
In bester Lage direkt an der Siebenbrunnengasse im 5. Bezirk gelangt gelangt diese ca. 46m² große 2 Zimmer Wohnung im 1. Liftstock zur befristeten Vermietung.Ihr neuer Wohntraum ist wie folgt ausgestattet:
- Vorraum
- Wohnküche inklusive Einbauküche
- WC separat
- Badezimmer inklusive Badewanne und Waschmaschinenanschluss
- Schrankraum
- Schlafzimmer
- hofseitiger Balkon
Zusätzlich befindet sich um Haus eine allgemeine Dachterrasse, wo Sie eine bezaubernden Blick über die Dächer Wiens genießen können!
Bei den Fotos handelt es sich um Musterfotos einer ähnlichen Wohnung im Haus. Die Wohnung ist ab 01.06.2026 verfügbar.
Eckdaten Objektnr. 109256454_18
| Art: | Wohnung - Etage |
| Land: | Österreich |
| Baujahr: | 2004 |
| Zustand: | Gepflegt |
| Gesamtmiete: | 998,92 € |
| Kaltmiete (netto): | 803,33 € |
| Provision: | provisionsfrei für den Mieter |
| Betriebskosten: | 104,78 € |
| Wohnfläche: | 46,57 m² |
| Zimmer: | 2 |
| Bäder: | 1 |
| WC: | 1 |
| Balkone: | 1 |
Ausstattung
Fliesen, Parkett, Zentralheizung, Einbauküche, Badewanne
Ihre persönliche Beratung
Dieser Makler ist ein offizielles Mitglied des IR – ir.at Mehr Erfahren
