BAUTRÄGER-PROJEKT IN LIESING - ECKLAGE - 26 WOHNUNGEN!

Zinshaus Renditeobjekt , 1230 Wien , Triester Straße 264


Beschreibung der Immobilie

BAUTRÄGER-PROJEKT IN LIESING - ECKLAGE - 26 WOHNUNGEN!

Wir präsentieren Ihnen ein interessantes Bauträger-Projekt in 1230 Wien (Liesing - Siebenhirten - Nähe Vösendorf)!




- Eckgrundstück mit 506 m² GFL



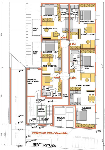
- Bebauungs-Studie vorhanden: erzielbare WFL 1.215 m²



- 26 Wohnungen (35 - 85 m²)



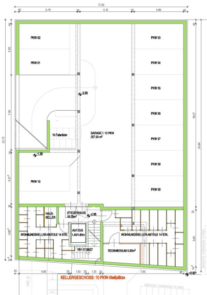
- 10 PKW-Stellplätze im KG



- alle Anschlüsse vorhanden




Kaufpreis: VB € 1,390.000,-



Die Bebauungs-Studie (siehe Anhang) wurde bereits mit der MA19 positiv besprochen!




Bei Interesse freuen wir uns über Ihre Kontaktaufnahme!


Der Vermittler ist als Doppelmakler tätig.

Eckdaten Objektnr. 4832/1599

Art: Zinshaus Renditeobjekt
Land: Österreich
Kaufpreis: 1.390.000,00
Provision: 3% des Kaufpreises zzgl. 20% USt.
Wohnfläche: 1.215,00 m²
Grundstücksfl.: 606,00 m²
Immobilie merken Exposé

Immobilie anfragen


Ihre persönliche Beratung

S+R KERN Immobilien GmbH

Robert W. Pabisch

Kern Immobilien

H +43 699 16 007 007