Wunderschönes Penthouse mit Pool und prachtvollem Blick, Nähe Kahlenberg

Wohnung - Maisonette, 1190 Wien


Beschreibung der Immobilie

Wunderschönes Penthouse mit Pool und prachtvollem Blick, Nähe Kahlenberg

Die Wohnung befindet sich im DG eines vor wenigen Jahren errichteten Hauses in einer ruhigen Bestlage des 19. Wiener Gemeindebezirks. 



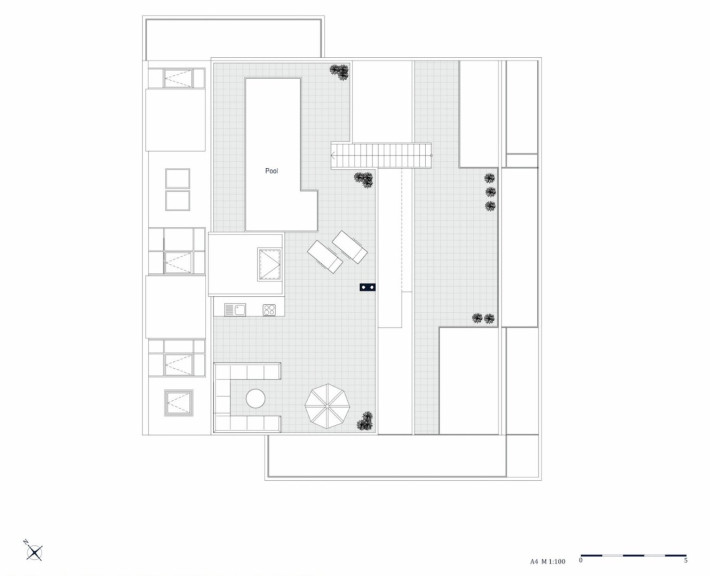
Die Maisonettewohnung mit einer Wohnfläche von ca. 240 m² gliedert sich in drei Schlafzimmer, eine große Wohnküche, einen Wirtschaftsraum, vier Terrassen, ein Pool, ein Jacuzzi, Schrankräume, zwei Bäder und drei WCs. Mit dem Lift fahren Sie direkt in die Wohnung, die Lifteingangstüren verfügen über Fingerprintsensoren.



Eines der Schlafzimmer mit en-suite Bad und Sauna bietet außerdem einen Schrankraum und Zugang zum Jacuzzi. Durch zwei weitere Schlafzimmer und ein zusätzliches Badezimmer und einen Schrankraum wird das Wohnkonzept erweitert. Die Wohnung wurde exklusiv eingerichtet, unter anderem mit Tischler-Einbauschränken inklusive Beleuchtung sowie 2 Effektkaminen. 



Ein absolutes Highlight des Objekts ist die Dachterrasse mit einem beheizbaren Infinity-Pool aus Edelstahl. Ausgestattet mit Gegenstromanlage, Massagebank und elektrischer Abdeckung bietet dieser Pool einen prachtvollen Blick über ganz Wien. Eine Outdoor-Küche samt uneinsehbarem und großzügigen Loungebereich rundet diesen Bereich ab. Auf den Terrassen sind automatische Sunsquare-Segel sowie eine Pflanzenbewässerungsanlage installiert. Beheizt wird die Wohnung mit Fußbodenheizung, eine Klimaanlage und Deckenkühlung sorgen für angenehme Temperaturen im Sommer.



Die abgebildete Möblierung dient der Illustration. Die Wohnung wird unmöbliert übergeben. Die hochwertige Einbauküche sowie die fix eingebauten Schränke verbleiben in der Wohnung.



Weiters verfügt die Wohnung über ein großes Kellerabteil.



Bis zu 4 Garagenplätze können gekauft werden, die Kosten pro Stellplatz belaufen sich auf EUR 45.000.



Oben angeführte Angaben basieren auf Informationen und Unterlagen des Eigentümers und sind unsererseits ohne Gewähr.



Für nähere Informationen, fordern Sie bitte unser Exposé an.



Für Besichtigungen und nähere Informationen stehen wir Ihnen gerne zur Verfügung!



Frau Marie-Louise Eisenburger

national - Tel: 0676 605 9800
international - Tel: +43 676 605 9800
e-mail: eisenburger@lifestyle-properties.at


Wir weisen darauf hin, dass zwischen dem Vermittler und dem zu vermittelnden Dritten ein familiäres oder wirtschaftliches Naheverhältnis besteht.


Der Vermittler ist als Doppelmakler tätig.

Infrastruktur / Entfernungen

Gesundheit
Arzt <500m
Apotheke <1.500m
Klinik <2.000m
Krankenhaus <2.000m

Kinder & Schulen
Schule <1.000m
Kindergarten <500m
Universität <2.000m
Höhere Schule <2.000m

Nahversorgung
Supermarkt <1.500m
Bäckerei <1.000m
Einkaufszentrum <3.500m

Sonstige
Geldautomat <1.500m
Bank <1.500m
Post <1.500m
Polizei <1.500m

Verkehr
Bus <500m
U-Bahn <3.000m
Straßenbahn <1.500m
Bahnhof <2.000m
Autobahnanschluss <3.500m

Angaben Entfernung Luftlinie / Quelle: OpenStreetMap

Eckdaten Objektnr. 5244

Art: Wohnung - Maisonette
Land: Österreich
Alter: Neubau
Kaufpreis: 3.970.000,00
Provision: 3% des Kaufpreises zzgl. 20% USt.
MwSt Gesamt: 75,21 €
Wohnfläche: 240,00 m²
Zimmer: 4
Bäder: 2
WC: 3
Terrassen: 4
Heizwärmebedarf:  B  36,93 kWh/m²a
fGEE: 0,85
Immobilie merken Exposé

Ausstattung

Parkett, Fliesen, Steinboden, Fußbodenheizung, Wohnküche / offene Küche, Personenaufzug, Badewanne, Dusche, Garage, Alarmanlage, Sauna, Swimmingpool


Immobilie anfragen


Ihre persönliche Beratung

IM Lifestyle Properties GmbH

Marie-Louise Eisenburger

Lifestyle Properties

T +43 1 512 14 84

H +43 676 6059800