EigentumsTRAUM

Wohnung , 4866 Unterach


Diese exquisite Eigentumswohnung liegt in leicht erhöhter Lage oberhalb des Zentrums von Unterach und beeindruckt mit einem traumhaften Ausblick auf den Attersee und die umliegende Bergwelt. Das Ortszentrum mit Geschäften des täglichen Bedarfs, Kindergarten, Volksschule, Gastronomie, Strandbad und die großzügige Freizeitanlage liegen sprichwörtlich vor der Haustüre. Mondsee mit seiner vielseitig ausgebauten Infrastruktur (Schulen, Einkaufsmöglichkeiten, ... ), Kultur und Sehenswürdigkeiten sowie die gleichnamige Autobahn-Anschlussstelle erreichen Sie binnen ~15 Minuten, Salzburg Stadt innerhalb von ~40 Minuten.

Beschreibung der Immobilie

EigentumsTRAUM

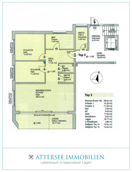
Hochwertig ausgestattete, moderne 3-Zi. Eigentumswohnung, die mit geradlinigem Grundriss und offenem Wohn-/Essbereich plus großzügiger Loggia überzeugt. Die bodentiefe Fensterfront eröffnet nicht nur einen wunderschönen Ausblick auf die Naturkulisse des Attersees, sondern lässt den Wohnraum mit der Umgebung verschmelzen. Der Zugang erfolgt barrierefrei und neben zwei Carport-Stellplätzen ist ein separater Abstellraum auf der Wohnebene situiert.



Das Ortszentrum Unterachs mit Arztpraxis, Geschäften des täglichen Bedarfs, Gastronomie, Kindergarten Volksschule, Strandbad und die großzügige Freizeitanlage liegen in innerhalb von einem Kilometer. Mondsee mit seiner vielseitig ausgebauten Infrastruktur, Kultur und Sehenswürdigkeiten sowie die gleichnamige Autobahn-Anschlussstelle erreichen Sie binnen 15 Minuten, Salzburg Stadt in rund 40 Minuten.





Objekttyp:



  • Wohnungseigentum


Wohnfläche:



  • Nutzfläche lt. WEG/Nutzwertgutachten: A ~ 93,94 m² 


Heizung/Warmwasser:



  • Erdwärmepumpe/Fußbodenheizung


Ausstattung:



  • Barrierefreier Zugang
  • Echtholz-Parkett
  • Marken-Einbauküche
  • Lichtkonzept
  • Personenlift
  • Raffstore
  • Walk-in Dusche


Parkmöglichkeit:




  • Carport (2 Stellplätze)




Nutzung:




  • Die Gemeinde Unterach zählt zu den Vorbehaltsgebieten im Sinn des OÖ. Grundverkehrsgesetzes 1994 - Verpflichtung zur Begründung eines Hauptwohnsitzes.




Finanzierung und Versicherung:




  • Unsere Kolleginnen und Kollegen der Raiffeisenbank Attersee-Süd stehen Ihnen für ein unverbindliches Beratungsgespräch sehr gerne zur Verfügung.




Unverbindliches, freibleibendes Angebot. Die Angaben erfolgen aufgrund von Informationen und Unterlagen vom Eigentümer und/oder von Dritten und sind ohne Gewähr. Irrtümer und Änderungen vorbehalten!

Noch nichts gefunden? Wir informieren Sie zeitnah über geeignete Immobilienangebote.
Legen Sie jetzt Ihren individuellen Suchagenten unter folgendem Link an. Wir schicken Ihnen passende Immobilien exklusiv vorab zu.

Suchagent anlegen


Der Vermittler ist als Doppelmakler tätig.

Infrastruktur / Entfernungen

Gesundheit
Arzt <1.000m
Apotheke <8.500m

Kinder & Schulen
Schule <500m
Kindergarten <500m

Nahversorgung
Bäckerei <500m
Supermarkt <500m

Sonstige
Bank <500m
Geldautomat <500m
Post <500m
Polizei <500m

Verkehr
Bus <500m
Autobahnanschluss <6.000m
Bahnhof <2.500m

Angaben Entfernung Luftlinie / Quelle: OpenStreetMap

Eckdaten Objektnr. 362

Art: Wohnung
Land: Österreich
Baujahr: 2020
Zustand: Gepflegt
Alter: Neubau
Kaufpreis: 790.000,00
Provision: 3% des Kaufpreises zzgl. 20% USt.
Betriebskosten: 137,22 €
Heizkosten: 34,74 €
MwSt Gesamt: 21,99 €
Wohnfläche: 93,94 m²
Nutzfläche: 93,94 m²
Zimmer: 3
Bäder: 1
WC: 1
Stellplätze: 2
Heizwärmebedarf:  B  28,00 kWh/m²a
fGEE:  A  0,73
Immobilie merken Exposé

Ausstattung

Parkett, Fliesen, Erdwärme, Fußbodenheizung, Einbauküche, Wohnküche / offene Küche, Personenaufzug, Bad mit Fenster, Badewanne, Dusche, Carport, Wasch/Trockenraum


Immobilie anfragen


Ihre persönliche Beratung

Attersee Immobilien - Raiffeisenbank Attersee-Süd eGen

Mag. Jürgen Praher

Raiffeisenbank Attersee-Süd eGen

T +43 7666 82000 38908

H +43 676 814238908

F +437666 82000 9 38908