Café / Bar / Lokal mit Straßenfront an der Neulerchenfelder Straße

Gastgewerbe , 1160 Wien , Neulerchenfelder Straße


Neulerchenfelder Straße

Beschreibung der Immobilie

Café / Bar / Lokal mit Straßenfront an der Neulerchenfelder Straße

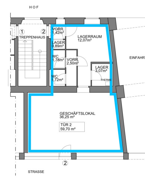
Das Geschäftslokal Top 2 befindet sich im Erdgeschoss und war zuletzt als Bar/Café genutzt und wird mit der bestehenden Einrichtung und Ausstattung verkauft.

Die Lage im Erdgeschoß mit straßenseitiger Ausrichtung bietet hohe Kundenfrequenz und gute Sichtbarkeit.



Adresse: Neulerchenfelder Straße 67, 1160 Wien

Fläche: ca. 59,70 m²



Facts:




  • helle Fläche mit straßenseitigem Eingang



  • ausgestatteter Barbereich



  • getrennte Toiletten



  • Separate Lagerbereich / Mitarbeiterbereich




Lagebeschreibung – Neulerchenfelder Straße 67



Die Liegenschaft befindet sich in zentraler Lage des 16. Bezirks, nur wenige Gehminuten vom Yppenplatz, Brunnenmarkt und der Ottakringer Straße entfernt. Hohe Fußgängerfrequenz.  Die Anbindung ist ausgezeichnet: Straßenbahnlinien 2 befindet sich direkt vor dem Objekt. Linie 9 und 46 sowie die U6-Station Thaliastraße sind fußläufig erreichbar.

Noch nichts gefunden? Wir informieren Sie über geeignete Immobilienangebote noch vor allen anderen.
Legen Sie jetzt Ihren individuellen Suchagenten unter folgendem Link an. Wir schicken Ihnen passende Immobilien exklusiv vorab zu.

Suchagent anlegen - https://accenta-immobilien.service.immo/registrieren/de


Der Vermittler ist als Doppelmakler tätig.

Sie möchten Ihre Immobilie verkaufen oder vermieten?
Vertrauen Sie auf unsere Erfahrung – mit geprüfter Qualität und transparenter Abwicklung. 

Die Immobilien Card garantiert Ihnen, dass Sie mit einem geprüften Profi für Verkauf und Vermietung sprechen.

Infrastruktur / Entfernungen

Gesundheit
Arzt <250m
Apotheke <250m
Klinik <500m
Krankenhaus <1.250m

Kinder & Schulen
Schule <250m
Kindergarten <250m
Universität <1.250m
Höhere Schule <1.250m

Nahversorgung
Supermarkt <250m
Bäckerei <250m
Einkaufszentrum <1.000m

Sonstige
Geldautomat <250m
Bank <250m
Post <250m
Polizei <500m

Verkehr
Bus <250m
U-Bahn <750m
Straßenbahn <250m
Bahnhof <750m
Autobahnanschluss <4.000m

Angaben Entfernung Luftlinie / Quelle: OpenStreetMap

Eckdaten Objektnr. 11479

Art: Gastgewerbe
Land: Österreich
Baujahr: 1956
Alter: Neubau
Kaufpreis: 189.000,00
Provision: 3% des Kaufpreises zzgl. 20% USt.
Betriebskosten: 270,97 €
MwSt Gesamt: 54,19 €
Nutzfläche: 59,70 m²
Gesamtfläche: 59,70 m²
Heizwärmebedarf:  B  29,50 kWh/m²a
fGEE:  C  1,41
Immobilie merken Exposé

Immobilie anfragen


Ihre persönliche Beratung

Accenta Immobilien e.U.

Martina Schütz

Accenta Immobilien e.U.

T +43 1 9971293

H +43 699 17089345

F +43 1 997129310