UNBEFRISTET: Erstbezug in top Lage bei der U-Bahn

Wohnung , 1120 Wien


Beschreibung der Immobilie

UNBEFRISTET: Erstbezug in top Lage bei der U-Bahn

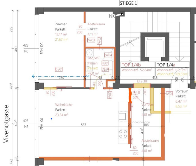
Zur unbefristeten Vermietung gelangt eine neu errichtete Wohnung  in einem modernen Haus im 3. Liftstock mit einer Fläche von ca.53 m².



Diese Wohnung ist komplett neu errichtet und bietet eine hochwertige Ausstattung mit Parkettboden und modernem Bad und großen Fensterflächen.



Die Küche wird gerade eingebaut, deshalb gibt es von der Küche nur einen Plan.





Raumaufteilung und Ausstattung:



  • Vorraum mit Platz für eine Schrankwand
  • Großer Wohnraum mit komplett ausgestatteter Küche (Kühl-Gefrierschrank, Herd, Backofen, Dunstabzug, Geschirrspüler)
  • Badezimmer mit Dusche und WC
  • Schlafzimmer mit Abstellraum ( Waschmaschienenanschluß)




Extras:



  • Fahrradraum 
  • Außenrollos bei allen Fenstern


Es stehen bei Wunsch, zur Anmietung ein oder zwei Parkplätze im Hof zur Verfügung. Für die Anmietung werden monatlich € 110,00 (inkl. USt.) pro Parkplatz verrechnet. 









Lage und Infrastruktur:



Ruhige Lage, beste Ausstattung: die Wohnung befindet sich in einer guten und ruhigen Wohngegend. Genießen Sie die urbane Lage Das Objekt liegt in unmittelbare Nähe zum berühmten Meidlinger Markt und zur Fußgängerzone Meidlinger Hauptstraße. Hier werden den Anwohnern perfekte Einkaufsmöglichkeiten sowie Gastronomiebetriebe, U-Bahnstation, Buslinien, Bahnhof, Ärzte, Schulen und Kindergärten geboten.



Öffentliche Anbindung:



Autobus: 8A, 9A, 59A, 62A Ubahn: U6 Station "Niederhofstrasse"  Schnellbahn "Station Meidling"


Der Immobilienmakler erklärt, dass er – entgegen dem in der Immobilienwirtschaft üblichen Geschäftsgebrauch des Doppelmaklers – einseitig nur für den Vermieter tätig ist.

Infrastruktur / Entfernungen

Gesundheit
Arzt <500m
Apotheke <500m
Klinik <500m
Krankenhaus <1.500m

Kinder & Schulen
Schule <500m
Kindergarten <500m
Universität <1.000m
Höhere Schule <500m

Nahversorgung
Supermarkt <500m
Bäckerei <500m
Einkaufszentrum <500m

Sonstige
Geldautomat <500m
Bank <500m
Post <500m
Polizei <500m

Verkehr
Bus <500m
U-Bahn <500m
Straßenbahn <500m
Bahnhof <500m
Autobahnanschluss <2.500m

Angaben Entfernung Luftlinie / Quelle: OpenStreetMap

Eckdaten Objektnr. 5998/641

Art: Wohnung
Land: Österreich
Zustand: Gepflegt
Alter: Neubau
Gesamtmiete: 883,67
Kaltmiete (netto): 581,24 €
Kaltmiete: 803,34 €
Provision: Gemäß Erstauftraggeberprinzip bezahlt der Abgeber die Provision.
Betriebskosten: 222,10 €
MwSt Gesamt: 80,33 €
Wohnfläche: 52,84 m²
Zimmer: 2
Bäder: 1
WC: 1
Stellplätze: 1
Heizwärmebedarf:  D  112,80 kWh/m²a
fGEE:  D  1,85
Immobilie merken Exposé

Ausstattung

Parkett, Wohnküche / offene Küche, Personenaufzug, Dusche, Parkplatz


Immobilie anfragen


Ihre persönliche Beratung

VM Estates GmbH

GUDRUN BOGNER

VM Estates GmbH

T +43 1 30 84 175

H +43 676 3536 778