Maisonette in Biedermeier-Villa
Wohnung
- Maisonette,
5020
Salzburg
Die Augustinergasse verläuft entlang der Südwestseite des Mönchbergs und ist nur 5 Gehminuten vom historischen Augustinerbräu und dem Salzburger Landesklinikum entfernt. Hier befinden sich ein Taxi-Standplatz, Bäckerei, Café und Nahversorger, die auch an Sonn- & Feiertagen geöffnet haben, womit eine überdurchschnittlich gute Infrastruktur besteht. Die Riedenburg und das angrenzende Mülln sind auch sehr gut an das öffentliche Verkehrsnetz und das innerstädtische Radwegenetz angebunden - die moderne S-Bahn und Bushaltestellen sind nur wenige Gehminuten entfernt. In der Augustinergasse und auch direkt vor dem Haus besteht Parkmöglichkeiten (Parkgenehmigung für Anwohner) und sind auch die Altstadtgaragen nur ca. 300 Meter entfernt
Beschreibung der Immobilie
Maisonette in Biedermeier-Villa
Das historische ‚Wachszieherhaus‘, auch ‚Weberhaus‘ genannt, liegt im beliebten Salzburger Stadtteil Riedenburg nächst dem Mönchsberg und dem Neutor, der Verbindung in den Festspielbezirk und die Altstadt. Die weitgehend verkehrsfreie und sonnige Lage besticht durch ihre Fußläufigkeit in die Salzburger Altstadt.
Das villenartige Gebäude ist mit seiner biedermeierlichen Fassade und den historischen Gewölben eines der ältesten Bauten (ca. 1560) im Stadtteil. Von der Stadt Salzburg wurde es als besonderes wirtschaftsgeschichtliches Denkmal deklariert.
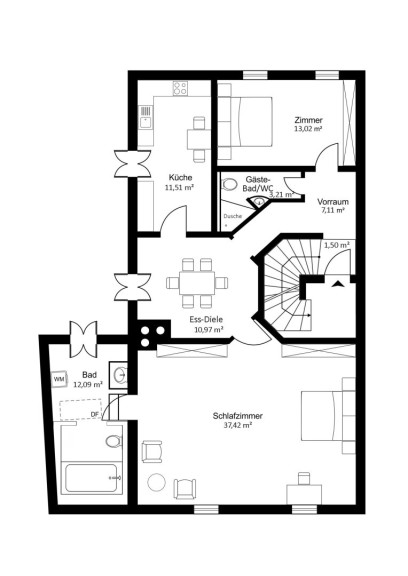
2005 von einem bekannten Kunstmäzen mit großem Aufwand und Feingefühl für die Substanz generalsaniert, wurde es in 3 charmante Wohnungen mit moderner Infrastruktur adaptiert. Die gegenständliche Maisonette-Wohnung mit Eingang im ersten Stock erstreckt sich über 2 Ebenen, Küche und Bad sind vollständig ausgestattet. Neben dem großen atelierartigen Wohnzimmer auf der Dachgeschossebene verfügt die Wohnung über ein großes Schlafzimmer mit großem Badezimmer mit WC sowie ein kleineres Schlaf- od. Gästezimmer mit eigenem Duschbad/ WC, das sich auch als Home-Office eignet.
Die Wohnung verfügt über keine direkt begehbare Freifläche, dem Haus südseitig vorgelagert besteht ein terrassenartiger Zugangsbereich, der im Allgemeineigentum steht. Nur wenige Schritte davon entfernt befindet sich das der Wohnung zugeordnete Kellerabteil, das tagesbelichtet und trocken ist und über einen eigenen Stromanschluss verfügt.
Ein Bezug der Wohnung ist kurzfristig möglich.
Infrastruktur / Entfernungen
Gesundheit
Arzt <500m
Apotheke <500m
Klinik <500m
Krankenhaus <1.000m
Kinder & Schulen
Schule <500m
Kindergarten <500m
Universität <1.000m
Höhere Schule <500m
Nahversorgung
Supermarkt <500m
Bäckerei <500m
Einkaufszentrum <1.500m
Sonstige
Bank <500m
Geldautomat <1.000m
Post <500m
Polizei <1.000m
Verkehr
Bus <500m
Bahnhof <1.000m
Autobahnanschluss <3.000m
Flughafen <2.500m
Angaben Entfernung Luftlinie / Quelle: OpenStreetMap
Eckdaten Objektnr. 513/2997
| Art: | Wohnung - Maisonette |
| Land: | Österreich |
| Baujahr: | 1560 |
| Zustand: | Modernisiert |
| Alter: | Altbau |
| Kaufpreis: | 850.000,00 € |
| Provision: | 3% des Kaufpreises zzgl. 20% USt. |
| Betriebskosten: | 290,40 € |
| Heizkosten: | 286,50 € |
| Sonstige Kosten: | 160,08 € |
| Wohnfläche: | 143,00 m² |
| Zimmer: | 4 |
| Bäder: | 1 |
| WC: | 1 |
| Heizwärmebedarf: | C 95,00 kWh/m²a |
| fGEE: | C 1,41 |
Ausstattung
Parkett, Fliesen, Steinboden, Gas, Zentralheizung, Einbauküche, Bad mit Fenster, Badewanne
Ihre persönliche Beratung
Dieser Makler ist ein offizielles Mitglied des IR – ir.at Mehr Erfahren
