Bad Gleichenberg! Barrierefrei! Gepflegter Bungalow für entspannte Lebensqualität!

Haus - Bungalow, 8330 Feldbach


Die Immobilie befindet sich im beliebten Kurort Bad Gleichenberg, einem der renommiertesten Gesundheits- und Thermenorte der Steiermark. Die Therme Bad Gleichenberg sowie der großzügige Kurpark sind in wenigen Minuten erreichbar und bieten Erholung, Entspannung und hohe Lebensqualität. Bad Gleichenberg überzeugt durch seine ruhige, grüne Umgebung, das angenehme Klima sowie eine sehr gute Infrastruktur mit Ärzten, Apotheke, Einkaufsmöglichkeiten und Gastronomie. Öffentliche Verkehrsanbindungen sind ebenso vorhanden wie zahlreiche Freizeit- und Erholungsmöglichkeiten in der Natur.

Beschreibung der Immobilie

Bad Gleichenberg! Barrierefrei! Gepflegter Bungalow für entspannte Lebensqualität!

Willkommen in Ihrem neuen Zuhause!
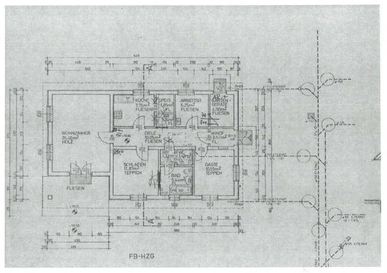
Dieser äußerst gepflegte Bungalow in der beliebten Kurregion Bad Gleichenberg vereint Wohnkomfort, Ruhe und Lebensqualität. Mit einer Wohn/Nutzfläche von ca. 91,37 m², einem durchdachten Grundriss und einem ausbaufähigen Rohdachboden bietet diese Immobilie ideale Voraussetzungen für Paare, kleine Familien oder Ruhesuchende.



Highlights der Immobilie:
    •    Neue Fenster mit Insektenschutz

    •    Erneuerte Fassade

    •    Moderne Einbauküche

    •    Fußbodenheizung für behagliches Wohnklima

    •    Hochwertige Böden aus Fliesen und Parkett

    •    Badezimmer mit Fenster, Badewanne und Dusche

    •    Rohdachboden mit Ausbaupotenzial

    •    Terrasse und Garten mit herrlichem Grünblick

    •    Garage sowie zusätzlicher Stellplatz

    •    Sehr gepflegter Gesamtzustand



Der lichtdurchflutete Wohnbereich mit direktem Zugang zur Terrasse und zum Garten lädt zum Entspannen ein. Ob gemütliche Stunden im Grünen oder gesellige Abende – hier genießen Sie Ruhe und Privatsphäre. Die moderne Küche fügt sich harmonisch ins Wohnkonzept ein und bietet optimale Voraussetzungen für kulinarische Genüsse.



Die Energiekennwerte im Energieausweis haben sich zwischenzeitlich deutlich verbessert, da nach dessen Ausstellung ein vollständiger Austausch aller Fenster durchgeführt wurde.



Vereinbaren Sie jetzt einen Besichtigungstermin - ich freue mich auf Ihre Anfrage!



Ansprechpartner:


Alexander Hergel



0660 / 68 08 310



a.hergel@traumplatz-immobilien.at

Noch nichts gefunden? Wir informieren Sie über geeignete Immobilienangebote noch vor allen anderen.
Legen Sie jetzt Ihren individuellen Suchagenten unter folgendem Link an. Wir schicken Ihnen passende Immobilien exklusiv vorab zu.

Suchagent anlegen - https://tpi-traumplatz-immobilien.service.immo/registrieren/de


Der Vermittler ist als Doppelmakler tätig.

Eckdaten Objektnr. 1728/191

Art: Haus - Bungalow
Land: Österreich
Baujahr: 1980
Zustand: Gepflegt
Möbliert: Teil
Alter: Neubau
Kaufpreis: 249.000,00
Provision: 3% des Kaufpreises zzgl. 20% USt.
Wohnfläche: 91,37 m²
Nutzfläche: 91,37 m²
Grundstücksfl.: 441,00 m²
Zimmer: 3
Bäder: 1
WC: 1
Terrassen: 1
Stellplätze: 1
Garten: 345,00 m²
Heizwärmebedarf:  F  205,70 kWh/m²a
fGEE:  D  2,16
Immobilie merken Exposé

Ausstattung

Fliesen, Parkett, Gas, Fußbodenheizung, Einbauküche, Bad mit Fenster, Badewanne, Dusche, Garage, Parkplatz, Sicherheitskamera


Immobilie anfragen


Ihre persönliche Beratung

TPI Traumplatz Immobilien GmbH

Alexander Hergel

TPI Traumplatz Immobilien GmbH

T +43 660 68 08 310