Landleben trifft Kulturerbe - Morzg
Wohnung
- Penthouse,
5020
Salzburg
Kein anderer Salzburger Stadtteil verbindet und eint die Vorzüge des städtischen und ländlichen Lebens so perfekt wie das südlich der Altstadt gelegene Morzg. Das charmante Dorf wurde rund um eine denkmalgeschützte Kirche errichtet und besteht in erster Linie aus Einfamilienhäusern, Villen und wunderschönen Höfen. Hier wohnt man umgeben von Natur, mitten im städtischen Naherholungsgebiet. Die geschichtsträchtigen Bauten Schloss Hellbrunn, Schloss Frohnburg oder das Gwandhaus lassen die lange, beeindruckende Geschichte des Stadtteils erspüren und können bei einem Spaziergang oder einer Radtour erkundet werden. Die gute Infrastruktur sowie die Anbindung an das städtische Verkehrsnetz verdeutlichen hingegen den urbanen Charakter des Stadtteils. Wer in Morzg lebt, muss sich nicht zwischen Stadt- und Landleben entscheiden. Sowohl das Stadtzentrum als auch die Grenze zur Region Salzburg- Land sind in wenigen Autominuten erreichbar.
Beschreibung der Immobilie
Landleben trifft Kulturerbe - Morzg
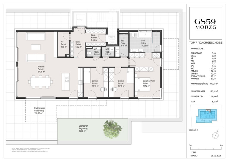
Dieses exklusive 4 Zimmer Penthouse mit ca. 147 m² Wohnfläche begeistert durch seine einzigartige Traumlage und ein Wohnkonzept auf höchstem Niveau. Die hochwertige Ausstattung, großzügige Räume und edle Materialien schaffen ein stilvolles und luxuriöses Ambiente.
Ein absolutes Highlight ist die beeindruckende, ca. 170 m² große Terrasse, die außergewöhnlich viel Freiraum bietet und einen atemberaubenden Blick auf die umliegende Bergwelt sowie die imposante Festung Hohensalzburg eröffnet.
In absoluter Bestlage von Salzburg genießen Sie hier ein unvergleichliches Wohngefühl, das Ruhe, Exklusivität und eine spektakuläre Aussicht perfekt vereint.
Wir weisen darauf hin, dass zwischen dem Vermittler und dem zu vermittelnden Dritten ein familiäres oder wirtschaftliches Naheverhältnis besteht.
Der Vermittler ist als Doppelmakler tätig.
Infrastruktur / Entfernungen
Gesundheit
Arzt <500m
Apotheke <1.500m
Klinik <2.000m
Krankenhaus <2.500m
Kinder & Schulen
Schule <500m
Kindergarten <1.000m
Universität <1.000m
Höhere Schule <4.000m
Nahversorgung
Supermarkt <1.500m
Bäckerei <1.500m
Einkaufszentrum <2.000m
Sonstige
Bank <1.500m
Geldautomat <1.500m
Post <1.500m
Polizei <1.500m
Verkehr
Bus <500m
Bahnhof <2.000m
Autobahnanschluss <3.500m
Flughafen <5.000m
Angaben Entfernung Luftlinie / Quelle: OpenStreetMap
Eckdaten Objektnr. 1792/90
| Art: | Wohnung - Penthouse |
| Land: | Österreich |
| Baujahr: | 2026 |
| Zustand: | Erstbezug |
| Alter: | Neubau |
| Kaufpreis: | 2.425.000,00 € |
| Provision: | 3% des Kaufpreises zzgl. 20% USt. |
| Wohnfläche: | 147,37 m² |
| Zimmer: | 3 |
| Bäder: | 2 |
| WC: | 2 |
| Terrassen: | 1 |
| Stellplätze: | 1 |
| Heizwärmebedarf: | B 29,10 kWh/m²a |
Ausstattung
Fliesen, Parkett, Fußbodenheizung, Personenaufzug, Westbalkon, Tiefgarage
Ihre persönliche Beratung
Susanna Scharler
asset.X Immobilien
T +43 664 523 83 03