Geräumige 4-Zi-Wohnung in Diersbach, teilrenoviert mit Balkon, EBK & Stellplatz – nur 80.000€!

Wohnung , 4776 Diersbach


Diese Wohnung in 4776 Diersbach besticht durch ihre praktische Lage zwischen Taufkirchen und Andorf. In unmittelbarer Nähe befinden sich Arztpraxis, Schule, Kindergarten sowie ein Supermarkt. Öffentliche Verkehrsmittel sind dank nahegelegener Bushaltestelle schnell erreichbar – ideal für Familien und Pendler, die kurze Wege schätzen.

Beschreibung der Immobilie

Geräumige 4-Zi-Wohnung in Diersbach, teilrenoviert mit Balkon, EBK & Stellplatz – nur 80.000€!

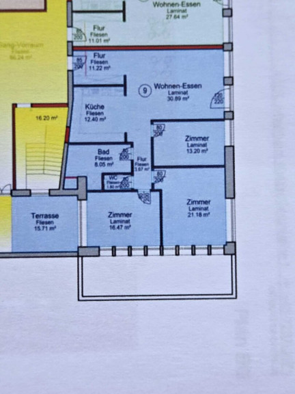
Willkommen in Ihrem neuen Zuhause in Diersbach, Oberösterreich! Diese großzügige 4-Zimmer-Wohnung in der 1. Etage bietet Ihnen auf 118,88 m² Wohnfläche viel Raum zum Wohlfühlen und Entfalten – und das zu einem attraktiven Kaufpreis von nur 80.000,00 €.



Die Wohnung präsentiert sich teilrenoviert und besticht durch eine gelungene Kombination aus modernem Komfort und gemütlichem Ambiente. Die Fußbodenheizung sorgt für wohlige Wärme, während die hochwertigen Fliesen den Räumen eine elegante Note verleihen. Die offene Wohnküche mit Einbauküche lädt zu gemeinsamen Kochabenden und geselligen Stunden ein. 



Das Badezimmer ist mit Fenster, Badewanne und Dusche ausgestattet – ideal für Ihre persönliche Wellness-Oase. Weitere Highlights dieser Wohnung sind der praktische Stellplatz direkt am Haus sowie die verkehrsgünstige Lage mit Busanbindung, die Ihnen eine komfortable Mobilität garantiert.



In der unmittelbaren Umgebung finden Sie alles, was Sie für den Alltag brauchen: Ärzte, Schulen, Kindergärten und Supermärkte sind schnell erreichbar und machen das Leben hier besonders angenehm und familienfreundlich.



Nutzen Sie diese einmalige Gelegenheit, eine charmante Wohnung mit viel Potenzial in einer ruhigen und grünen Lage zu erwerben. Ob als Familiendomizil oder als Kapitalanlage – diese Immobilie in Diersbach überzeugt durch Raum, Ausstattung und Lage.



Vereinbaren Sie noch heute einen Besichtigungstermin und lassen Sie sich von Ihrem zukünftigen Zuhause begeistern!


Der Vermittler ist als Doppelmakler tätig.

Infrastruktur / Entfernungen

Gesundheit
Arzt <1.000m
Apotheke <4.000m

Kinder & Schulen
Schule <1.000m
Kindergarten <1.000m

Nahversorgung
Supermarkt <1.000m
Bäckerei <2.500m

Sonstige
Bank <2.000m
Geldautomat <2.500m
Post <4.500m
Polizei <4.000m

Verkehr
Bus <500m
Bahnhof <3.500m
Flughafen <9.000m

Angaben Entfernung Luftlinie / Quelle: OpenStreetMap

Eckdaten Objektnr. 1793/280

Art: Wohnung
Land: Österreich
Baujahr: 1964
Alter: Altbau
Kaufpreis: 80.000,00
Provision: Provision bezahlt der Abgeber.
Betriebskosten: 480,00 €
Heizkosten: 186,00 €
Wohnfläche: 118,88 m²
Zimmer: 4
Bäder: 1
WC: 1
Balkone: 1
Stellplätze: 1
Keller: 2,50 m²
Heizwärmebedarf:  B  39,80 kWh/m²a
fGEE:  A  0,86
Immobilie merken Exposé

Ausstattung

Fliesen, Fußbodenheizung, Wohnküche / offene Küche, Einbauküche, Nordbalkon, Bad mit Fenster, Badewanne, Dusche, Parkplatz


Immobilie anfragen


Ihre persönliche Beratung

OVB Allfinanzvermittlungs GmbH

Christoph Ebner

OVB Allfinanzvermittlungs GmbH

T +43 6642109341

H +43 6642109341