ruhiges 2 Fam. Wohnhaus + 1 HA Grund LW + Quelle in Feldkirchen / St. Urban : 5 Zimmer, Garten, Balkone, PV, tolle Aussicht ! 1 HA LW Wiese für Tierhaltung Pferde, mit Stall für Schafe, Ziegen, Hühner

Haus - Einfamilienhaus, 9554 Agsdorf


Diese attraktive Immobilie auch für zwei Familien geeignet mit einem unverbaubaren super Ausblick in die Berge liegt in der idyllischen Bezirk Feldkirchen Gemeinde St Urban / Agsdorf, umgeben von der Landschaft Kärntens. Mit der Nähe zu Feldkirchen und St. Urban genießen Sie eine perfekte Kombination aus ländlicher Ruhe und See nähe sowie städtischem Komfort. Öffentliche Verkehrsanbindungen sind bequem in der Nähe, sodass Sie schnell und unkompliziert die umliegenden Orte erreichen können. Ideal für Familien und Investoren, die eine harmonische Wohnumgebung suchen.

Beschreibung der Immobilie

ruhiges 2 Fam. Wohnhaus + 1 HA Grund LW + Quelle in Feldkirchen / St. Urban : 5 Zimmer, Garten, Balkone, PV, tolle Aussicht ! 1 HA LW Wiese für Tierhaltung Pferde, mit Stall für Schafe, Ziegen, Hühner

Diese attraktive Immobilie auch für zwei Familien geeignet liegt in der idyllischen Bezirk  Feldkirchen Gemeinde St Urban / Agsdorf, umgeben von der malerischen Landschaft Kärntens. Mit der Nähe zu Feldkirchen und St. Urban genießen Sie eine perfekte Kombination aus ländlicher Ruhe und städtischem Komfort. Öffentliche Verkehrsanbindungen sind bequem in der Nähe, sodass Sie schnell und unkompliziert die umliegenden Orte erreichen können. Ideal für Familien und Investoren, die eine harmonische Wohnumgebung suchen.

, ruhige Lage, Zufahrt über Gemeinde Straße , ideal für Aussteiger und Selbstversorger



Wasserquelle  mit Nachbar, nur 2 Teilnehmer Gemeinschaft, fast keine Trinkwasserkosten nur Erhaltung und eventuelle Reinigung



Garage, Werkstatt , Carport, Grilllaube, 



Vollwärmeschutz, ideal für Ruhesuchende, Tierhaltung Schafe, Ziegen, Pferd, Hühner



5,7 km oder 8 Minuten  zum Hofer in Feldkirchen, HAK, Gymnasium, Hauptschule, Öamtc Feldkirchen.



2,9 km oder 5 Minuten nach Volksschule St Ulrich



Urban See 9,3 km oder 16 Minuten.



Goggausee  11 km , 13 Minuten



Ossiacher See 19 km Oder 22 Minuten



Bitte eine Finanzierungsbestätigung mitbringen.....gerne helfen wir bei Finanzierungen bzw. Angeboten

Noch nichts gefunden? Wir informieren Sie über geeignete Immobilienangebote noch vor allen anderen.
Legen Sie jetzt Ihren individuellen Suchagenten unter folgendem Link an. Wir schicken Ihnen passende Immobilien exklusiv zu.

Suchagent anlegen


Der Vermittler ist als Doppelmakler tätig.

Infrastruktur / Entfernungen

Gesundheit
Arzt <4.000m
Apotheke <4.000m
Krankenhaus <4.500m

Kinder & Schulen
Schule <2.500m
Kindergarten <2.500m
Höhere Schule <4.500m

Nahversorgung
Supermarkt <3.000m
Bäckerei <4.500m
Einkaufszentrum <4.500m

Sonstige
Bank <4.000m
Geldautomat <4.500m
Post <4.500m
Polizei <4.000m

Verkehr
Bus <500m
Bahnhof <2.000m
Flughafen <6.500m

Angaben Entfernung Luftlinie / Quelle: OpenStreetMap

Eckdaten Objektnr. 2454

Art: Haus - Einfamilienhaus
Land: Österreich
Baujahr: 2001
Zustand: Neuwertig
Alter: Neubau
Kaufpreis: 445.000,00
Provision: 3% des Kaufpreises zzgl. 20% USt.
Betriebskosten: 150,00 €
Heizkosten: 220,00 €
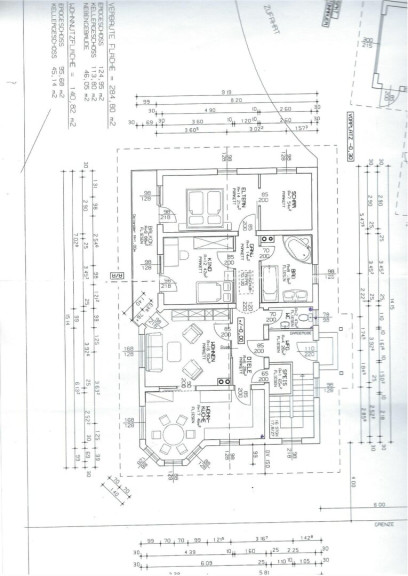
Wohnfläche: 140,82 m²
Grundstücksfl.: 11.022,00 m²
Lagerfläche: 46,05 m²
Zimmer: 5
Bäder: 2
WC: 2
Balkone: 1
Terrassen: 1
Stellplätze: 2
Garten: 10.197,00 m²
Keller: 45,14 m²
Immobilie merken Exposé

Ausstattung

Estrichboden, Fliesen, Laminatboden, Parkettboden, Öl, Heizofen, Kamin, Zentralheizung, Einbauküche, Badewanne, Dusche, Kabel/Satelliten-TV, Carport, Garage, Parkplatz, Wasch/Trockenraum


Immobilie anfragen


Ihre persönliche Beratung

VB Realitäten Gesellschaft m.b.H.

Georg Fischer

VB Realitäten Gesellschaft m.b.H.

T 0043 650 77 41 5 41

H 0043 650 77 41 5 41