Repräsentative Büroräume in der Salzburger Altstadt - Provisionsfrei

Büro / Praxis , 5020 Salzburg


Beschreibung der Immobilie

Repräsentative Büroräume in der Salzburger Altstadt - Provisionsfrei

Lage: Dieses sehr gepflegte und repräsentative Büro befindet sich in absoluter TOP-Lage in der Salzburger Altstadt in einem sehr gepflegten Altstadthaus im 3. Obergeschoss mit Lift, barrierefrei zugängllich.

Die Altstadtgarage ist in 5 Min fußläufig über den Universitätsplatz erreichbar.



Die Provisionszahlung übernimmt der Vermieter!



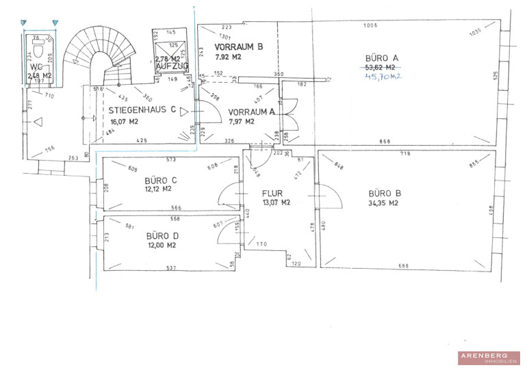
Raumaufteilung:



  • Eingangsbereich / Empfang
  • Vorraum / Warteraum
  • 2 große, helle Büroräume mit Glastür verbunden
  • 1 kleinerer Büroraum / Archiv
  • 1 kleinerer Büroraum mit Teeküche
  • WC mit Waschbecken


Ausstattung:



  • Parkettböden
  • Gegensprechanlage
  • Telefon- / Internetanschluss


Sonstiges:



  • bis 11:00h Zufahrt direkt zum Geschäft/Büro möglich
  • parken mit Erwerb einer Jahreskarte beim Magistrat möglich.
  • Altstadtgarage ist in 5 Min fußläufig


Gesamtmiete NETTO (exkl. Steuer) :  € 2.294,74



Betriebskosten INKLUSIVE HEIZUNG 
Strom und Telefon sind direkt mit dem jeweiligen Anbieter zu verrechnen.



Die angeführten Angaben und Daten wurden mit Sorgfalt erhoben. Für die Richtigkeit und Vollständigkeit wird keine Haftung übernommen. Das Angebot ist unverbindlich und freibleibend. Die Weitergabe von Angebotsdaten bewirkt Provisionshaftung.


Der Vermittler ist als Doppelmakler tätig.

Infrastruktur / Entfernungen

Gesundheit
Arzt <500m
Apotheke <500m
Klinik <1.000m
Krankenhaus <1.000m

Kinder & Schulen
Schule <500m
Kindergarten <500m
Universität <500m
Höhere Schule <500m

Nahversorgung
Supermarkt <500m
Bäckerei <500m
Einkaufszentrum <1.000m

Sonstige
Bank <500m
Geldautomat <500m
Post <500m
Polizei <500m

Verkehr
Bus <500m
Bahnhof <500m
Autobahnanschluss <3.500m
Flughafen <3.000m

Angaben Entfernung Luftlinie / Quelle: OpenStreetMap

Eckdaten Objektnr. 153906965

Art: Büro / Praxis
Land: Österreich
Alter: Altbau
Kaltmiete (netto): 1.830,70 €
Kaltmiete: 2.294,70 €
Betriebskosten: 464,00 €
MwSt Gesamt: 458,94 €
Nutzfläche: 135,50 m²
Bürofläche: 135,50 m²
Zimmer: 4,50
WC: 1
Immobilie merken Exposé

Immobilie anfragen


Ihre persönliche Beratung

Arenberg Immobilien GmbH

Wolfgang SCHIESSL

Arenberg Immobilien GmbH

T +43 (0)662 870170

H +43 (0)660 870 1701