WOHNTRAUM in DOPPELHAUSHÄLFTE mit 110 m2 GARTEN * ERSTBEZUG * in ESSLING & NATUR

Haus - Doppelhaushälfte, 1220 Wien , Eßlinger Hauptstraße


Diese Doppelhaushälfte befindet sich in kompletter Ruhelage hinter dem Wohnhaus in einem aufstrebenden Stadtteil von 1220 Wien Donaustadt in Eßling, Lage Großenzersdorf. Naturnahe Lage am Rande Wiens mit bester Anbindung, Infrastruktur und kurzen Wegen zu allen wichtigen Einrichtungen des täglichen Bedarfs bieten Ihnen eine optimale Lebensqualität.

Beschreibung der Immobilie

WOHNTRAUM in DOPPELHAUSHÄLFTE mit 110 m2 GARTEN * ERSTBEZUG * in ESSLING & NATUR

Moderne Doppelhaushälfte - Erstbezug mit 5 Zimmer, 2 Terrassen und großem Eigengarten - optimal für größere Familien - in aufstrebender Wohngegend in Eßling bei Großenzersdorf und Nationalpark Donauauen !



Attraktive Doppelhaushälfte auf 3 Ebenen mit großem Keller in absoluter hofseitiger Ruhelage hinter neu erbautem Wohnhaus, Wohnfläche 120 m2 - lichtes Ambiente und belagsfertig - JETZT vor letzter Ausstattung !!!



Willkommen in Ihrem neuen Zuhause – einer modernen Doppelhaushälfte mit absolutem Wohlfühlcharakter. Diese attraktive Immobilie in Erstbezug bietet Ihnen nicht nur ein stilvolles Ambiente mit Nutzungsvielfalt der Räume, sondern auch einen herrlichen Grünblick, der Ihnen jeden Tag ein Stück Natur in Ihre Haus bringt.



Diese ansprechende Doppelhaushälftebietet Wohnqualität in einer beliebter Wohngegend mit guter Infrastruktur. Urbanes Leben trifft hier auf eine entspannte Wohnatmosphäre wie am Land - im Grünen beim Nationalpark Donauauen.

Die Doppelhaushälfte ist auch eine hervorragende Investition in die Zukunft. Nutzen Sie die Chance, Teil eines modernen Wohnkonzepts in einer aufstrebenden und begehrten Gegend zu werden.



Diese charmante Doppelhaushälfte in Erstbezug punktet durch ihre absolute Ruhelage. Auf 120 m² Wohnfläche, verteilt auf drei Ebenen, erwartet Sie ein lichtes und funktionales Raumkonzept. Große Fensterflächen sorgen für ein angenehmes Wohnklima und lassen viel Tageslicht herein.



Der absolut ruhige Eigengarten - eine persönliche Wohlfühloase mitten im Grünen und abseits vom Trubel der Stadt - bietet Platz zum Entspannen, Spielen und Gärtnern.



JETZT haben Sie noch die Möglichkeit, Ihre Doppelhaushälfte beim Aussuchen von Badewanne/Dusche, Waschbecken, WC, Türstöcke/Türe und Stiegengeländer für einen schlüsselfertigen AUFPREIS sowie auch die Küche mitzugestalten!!!



Diese Doppelhaushälfte ist ideal für kleinere und größere Familien, die modernes Wohnen mit hoher Lebensqualität verbinden möchten.

Die andere Hälfte des Doppelhauses ist bereits verkauft!



Beschreibung/Aufteilung



Die moderne Architektur verleiht dem Doppelhaus einen zeitgemäßen ästhetischen Charakter.

Die großzügig konzipierte Doppelhaushälfte mit Freifläche und viel Platz zum Wohlfühlen ist ausschließlich gartenseitig ausgerichtet; mit einer guten Infrastruktur in der näheren Umgebung.

Die Immobilie wird belagsfertig übergeben - eine schlüsselfertige Übergabe ist gegen Aufpreis möglich.



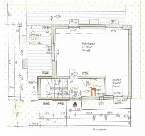
Im Erdgeschoß befinden sich ein großzügiger Wohnraum mit offener Wohnküche, sowie ein WC mit Gästehandwaschbecken und ein direkter Zugang vom Wohnraum zur Terrasse und zum Eigengarten.



Im Obergeschoss und Dachgeschoß sind jeweils 2 Zimmer und je 1 Badezimmer mit WC (Bad im OG mit Wanne, Bad im DG mit Dusche). 

Im Badezimmer im OG sind Anschlüsse für Waschmaschine und Trockner vorhanden.

Alle Badezimmer und WCs sind mit Fenster versehen.



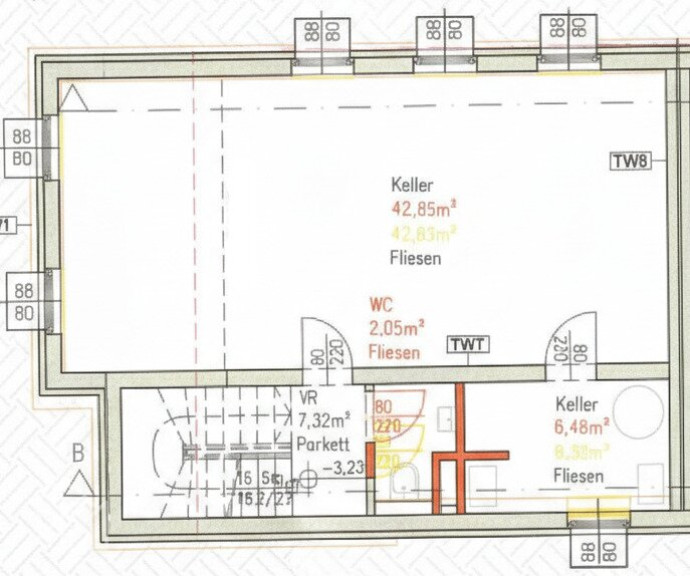
Ein Highlight ist der 58 m² große auch mit Fußbodenheizung ausgestattete Keller, welcher sich außer für Stauraum hervorragend für Hobbyraum, Fitnessbereich oder auch Homeoffice eignet.



H2 Doppelhaushälfte - 5 Zimmer
Lage gartenseitig, DG unter Flachdach



Erdgeschoß
Vorraum                          4,39 m2

Wohnküche                 31,68 m2

Küchenteil                      4,93 m2

WC                                    1,71 m2

Nutzfläche:                42,71 m2
+ Terrasse EG              23,55 m2

Eigengarten               106,29 m2

Vorgarten                        5,06 m2

Zugang EG                    10,01 m2





Obergeschoß
Vorraum                          5,70 m2

1 Zimmer                      14,29 m2

1 Zimmer                      15,63 m2

Bad/WC                           6,25 m2

Nutzfläche:                41,87 m2



Dachgeschoß
Vorraum                          5,76 m2

1 Zimmer                      15,28 m2

1 Zimmer                      10,29 m2

Bad/WC                           4,80 m2

Nutzfläche:                36,13 m2
+ Terrasse DG                      4,83 m2



Kellergeschoß
Vorraum                          7,32 m2

WC                                    2,05 m2

Keller/Hobbyraum     42,85 m2

Keller/Abstellraum       6,48 m2

Nutzfläche                 58,70 m2



Summe Nutzfläche ohne KG:     120,71 m2
Summe Nutzfläche mit KG:            179,41 m2



Ausstattung & Details



  • Neubau mit Erstbezug
  • Doppelhaushälfte mit 2 Terrassen und Eigengarten
  • 5 Zimmer auf 3 Wohnebenen plus 2 Bäder und 3 WCs
  • Großer Keller mit Extra-WC, vielseitig nutzbar
  • Entschleunigte Wohngegend
  • Sehr beliebte Stadtlage gleich neben Natur pur
  • Belagsfertiger Kaufpreis
  • Übergabe schlüsselfertig mit Aufpreis
  • Moderne Ausstattung
  • Hochwertige Kunststofffenster
  • Böden Parkett, Fliesen in Nassräumen
  • Heizung mit Luftwärmepumpe
  • Fußbodenheizung (auch im Keller)
  • Klimavorbereitung im DG
  • Müllraum, Kinderwagen-/Fahrradabstellraum im EG Wohnhaus
  • Garage im EG/KG Wohnhaus mit Kaufoption
  • Gute Infrastruktur und öffentliche Anbindung
  • Grüne Oase Nationalpark Donauauen in unmittelbarer Umgebung
  • Energieausweis vorhanden


Lage & Infrastruktur



Das Doppelhaus befindet sich im Hoftrakt der Wohnanlage in Eßling - direkt an der Grenze zu Niederösterreich zu Groß Enzersdorf, unweit der Stadler Furt, einem Badesee, wo das Landschaftsschutzgebiet Lobau Nature Reserve beginnt – mit der Donau und dem Nationalpark Donau-Auen.

Die ruhige Lage in Eßling bietet nicht nur Erholung, sondern auch eine hervorragende Infrastruktur: Schulen, Einkaufsmöglichkeiten und öffentliche Verkehrsmittel sind in wenigen Minuten erreichbar.

Eßling steht für moderne Entwicklung, Wachstum und steter Verbesserung der Infrastruktur mit urban-ländlicher Identität als attraktiver und beliebter Wohnort in der Nähe der Donau in der Natur pur. Ein Naturjuwel bei der Großstadt inmitten der Natur zur Erholung vom Alltag - für Ausflüge, Spazierengehen und Radfahren, Badebereich im Sommer, Eisbaden und Eislaufen im Winter uvm.

Besuchen Sie die Badebucht am Stadler Furt Teich, Großenzersdorfer Arm Zugang zum Nationalpark Donauauen , Lobau; das Autokino Großenzersdorf sowie in unmittelbarer Nähe das Einkaufszentrum Marchfeldcenter Groß Enzersdorf, wo Sie alles für den täglichen Bedarf bekommen.

Die attraktive Lage in Wien Donaustadt bietet neben Grünraum auch eine perfekte Verkehrsanbindung in die Wiener Innenstadt.

Naturnahe Lage am Rande Wiens, in Wien Donaustadt, mit bester Infrastruktur und kurzen Wegen zu allen Geschäften des täglichen Bedarfs.





Lassen Sie sich von diesem einmaligen Angebot begeistern und vereinbaren Sie noch heute einen Besichtigungstermin für diese einmalige Doppelhaushälfte unmittelbar neben der grünen Oase Donauauen. Ich freue mich auf Ihren Anruf!
------------------------------------------------



Wir bitten um Verständnis dafür, dass auf Grund der Nachweispflicht gegenüber dem Eigentümer nur Anfragen mit vollständigen Kontaktdaten (Name, Adresse, Telefonnummer, Email) beantwortet werden können.



Allgemeines: Objektinformationen lt. Angaben des Abgebers; für die Richtigkeit wird keine Gewähr geleistet. Anbot ist unverbindlich und freibleibend.




Der Vermittler ist als Doppelmakler tätig.

Infrastruktur / Entfernungen

Gesundheit
Arzt <750m
Apotheke <1.000m
Klinik <3.000m
Krankenhaus <5.500m

Kinder & Schulen
Schule <1.000m
Kindergarten <750m
Universität <1.000m
Höhere Schule <2.500m

Nahversorgung
Supermarkt <750m
Bäckerei <1.250m
Einkaufszentrum <1.250m

Sonstige
Geldautomat <1.750m
Bank <1.000m
Post <1.000m
Polizei <1.250m

Verkehr
Bus <250m
U-Bahn <2.750m
Straßenbahn <3.500m
Bahnhof <2.750m
Autobahnanschluss <6.500m

Angaben Entfernung Luftlinie / Quelle: OpenStreetMap

Eckdaten Objektnr. 206

Art: Haus - Doppelhaushälfte
Land: Österreich
Baujahr: 2025
Zustand: Erstbezug
Alter: Neubau
Kaufpreis: 640.000,00
Provision: 3% des Kaufpreises zzgl. 20% USt.
Wohnfläche: 120,71 m²
Nutzfläche: 179,41 m²
Zimmer: 5
Bäder: 2
WC: 4
Terrassen: 2
Garten: 111,35 m²
Keller: 58,70 m²
Heizwärmebedarf:  B  34,40 kWh/m²a
fGEE:  A  0,69
Immobilie merken Exposé

Ausstattung

Parkett, Fliesen, Fußbodenheizung, Wohnküche / offene Küche, Garage


Immobilie anfragen


Ihre persönliche Beratung

Chalets & More Immobilien, Unternehmensmarke der Nisibe Handels GmbH

Kurt Mach

Chalets & More Immobilien, Unternehmensmarke der Nisibe Handels GmbH

T +43 676 672 78 28