Eingereichtes Wohnbauprojekt in ruhiger Lage in Bad Vöslau

Grundstück , 2540 Bad Vöslau


Die Liegenschaft befindet sich in attraktiver Wohnlage in der Wolfstraße 18 in Bad Vöslau, einer beliebten Kur- und Weinstadt am Rande des Wienerwalds im Bezirk Baden. Die Umgebung ist geprägt von gepflegten Einfamilienhäusern, viel Grün und einer ruhigen, familienfreundlichen Atmosphäre. Die Infrastruktur ist hervorragend: Geschäfte des täglichen Bedarfs, Schulen, Kindergärten, Ärzte sowie gastronomische Einrichtungen sind in wenigen Minuten fußläufig oder mit dem Fahrrad erreichbar. Das Stadtzentrum von Bad Vöslau mit seinen charmanten Geschäften, Cafés und dem bekannten Thermalbad liegt nur etwa 5 Autominuten entfernt. Die verkehrstechnische Anbindung ist ebenfalls sehr gut: Über die A2 Südautobahn (Auffahrt Bad Vöslau) erreicht man Wien in rund 30 Minuten und Baden in etwa 10 Minuten. Zudem steht mit dem Bahnhof Bad Vöslau eine direkte Zugverbindung Richtung Wien Hauptbahnhof und Wiener Neustadt zur Verfügung. Die reizvolle Naturlage rund um den nahegelegenen Wienerwald, die Weinberge sowie zahlreiche Rad- und Wanderwege bieten einen hohen Freizeit- und Erholungswert. Auch der beliebte Schlosspark, das Thermalbad und die umliegenden Heurigenbetriebe tragen zur besonderen Lebensqualität dieser Gegend bei.

Beschreibung der Immobilie

Eingereichtes Wohnbauprojekt in ruhiger Lage in Bad Vöslau

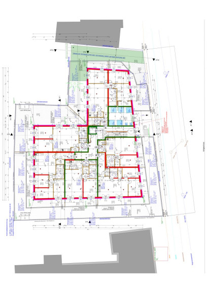
Zum Angebot gelangt ein Grundstück mit eingereichter Planung für ein Wohnbauprojekt in Bad Vöslau in einer ruhigen Straße (30er Zone) und perfekter Infrastruktur. 





Das Wohnbauprojekt mit gesamt ca 1332 m2 Wohnfläche umfasst 17 Einheiten zwischen 58,99m2 - 109,57m2.



Top 1-6 hat jeweils einen Garten in der Größe von 4,28m2 - 95,07m2. Die gesamte Gartenfläche umfasst ca 219 m2.



Alle Tops (ausgenommen: Top 7 & Top 13) haben eine Terrasse in der Größe von 5,07m2 - 69,34m2. Die gesamte Terrassenfläche umfasst ca 360 m2.



Das Wohnhaus ist voll unterkellert - im Kellergeschoß befinden sich 19 KFZ-Stellplätze, sowie die Fahrrad- und Kinderwagen Stellplätze, ein Technikraum, und ein Lagerraum.





Das Projekt besticht durch moderne Grundrisse, sowie die ruhige Wohnlage kombiniert mit der ausgezeichneten Verkehrsanbindung. 





Straßenanbindung



Autobahnen: Die Wolfstraße 18 ist gut an die A2 (Südautobahn) angebunden, welche die Hauptverkehrsader zwischen Wien und Graz darstellt. Diese Autobahn ist in wenigen Minuten mit dem Auto erreichbar und bietet eine schnelle Verbindung in Richtung Norden nach Wien und in Richtung Süden nach Wiener Neustadt und Graz.



Bundesstraßen: Die Liegenschaft ist über die B210 (Leobersdorfer Straße) und die B212 (Badener Straße) erreichbar. Diese Bundesstraßen bieten eine direkte Anbindung an die umliegenden Städte und Ortschaften.





Öffentlicher Verkehr



Busanbindung: Die Wolfstraße wird durch lokale Buslinien, wie die Buslinie 303, erschlossen, die eine Verbindung innerhalb von Bad Vöslau sowie zu nahegelegenen Orten bietet. Die Haltestellen in der Nähe bieten eine regelmäßige und zuverlässige Anbindung.



Bahnanbindung: Der Bahnhof Bad Vöslau ist nur etwa 5 Minuten zu Fuß entfernt. Von dort aus gibt es regelmäßige Zugverbindungen nach Wien und in andere Städte, was die Anbindung an den öffentlichen Nah- und Fernverkehr hervorragend macht.





Bad Vöslau wird neu belebt:




Zwischen Bahnhof und Badner-Straße spannt sich ein differenziert ausgestalteter Freiraum auf, welcher als „urbane Gasse“ eine attraktive Durchwegung für Fuß- und Radverkehr bietet. Entlang dieser Raumsequenz bilden zwei neu geschaffene Quartiere vielfältige Impulse für Urbanität & Diversität sowie abwechslungsreiche Angebote für Wohnen, Arbeiten, Konsum und Freizeit:



  • Im Osten das als Kultur & Kreativ-Hotspot konzipierte „Kammgarnquartier“,
  • im Westen der „Heilquellenplatz“, welcher im Vis-à-Vis zur Kulisse des Thermalbads einen formaleren Raum als Pendant zum Badplatz bildet.



Planungen der Gemeinde im Freiraum/ öffentlicher Raum:



  • Kombination öffentlicher und halböffentlicher Freiräume
  • verschiedene Grade der Öffentlichkeit von Freiräumen durch Bebauung und Niveau der Freiräume 
  • „Vöslauer Platz“ als räumliche Verknüpfung zum Schlosspark
  • Alleen, Fassadenbegrünung, Rasenfugen an „urbaner Gasse“
  • Wasserelemente am „Heilquellenplatz“ gegenüber des Badplatzes
  • Urban Gardening
  • Sickermulden
  • MIV-freie Begegnungszone in der „urbanen Gasse“
  • fünf Garagen an Gebietsrändern - Verlagerung der P+R Anlage Richtung Süden
  • Mobilitätshub auf neugestalteten Bahnhofsareal
  • Fuß- und Radbrücke über Bahngleise zur „Remise“

Wir weisen darauf hin, dass zwischen dem Vermittler und dem zu vermittelnden Dritten ein familiäres oder wirtschaftliches Naheverhältnis besteht.


Der Vermittler ist als Doppelmakler tätig.

Infrastruktur / Entfernungen

Gesundheit
Arzt <500m
Apotheke <1.000m
Klinik <4.000m
Krankenhaus <4.500m

Kinder & Schulen
Kindergarten <500m
Schule <500m

Nahversorgung
Supermarkt <500m
Bäckerei <1.000m
Einkaufszentrum <5.000m

Sonstige
Bank <1.000m
Geldautomat <1.000m
Post <1.000m
Polizei <1.500m

Verkehr
Bus <500m
Bahnhof <500m
Straßenbahn <4.000m
Autobahnanschluss <1.500m
Flughafen <3.000m

Angaben Entfernung Luftlinie / Quelle: OpenStreetMap

Eckdaten Objektnr. 7464/279

Art: Grundstück
Land: Österreich
Alter: Neubau
Kaufpreis: 945.000,00
Kaufpreis / m²: 709,46 €
Wohnfläche: 1.332,00 m²
Grundstücksfl.: 1.317,00 m²
Garten: 219,00 m²
Immobilie merken Exposé

Immobilie anfragen


Ihre persönliche Beratung

Mag. (FH) Michael Böhm

Estoria Real Estate GmbH

H +43 676 612 56 87