Möblierte Wohnung mit separater Dachterrasse wenige Meter von der Alten Donau entfernt

Wohnung - Etage, 1220 Wien


Beschreibung der Immobilie

Möblierte Wohnung mit separater Dachterrasse wenige Meter von der Alten Donau entfernt

Zu vermieten: Einmalige möblierte Wohnung mit separater Dachterrasse wenige Meter von der Alten Donau!



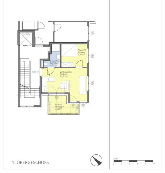
Diese charmante Wohnung im ersten Stock bietet ca. 34 m² Wohnfläche mit 8,06 m2 Balkon sowie eine abgetrennte Dachterrasse zur alleinigen Nutzung von ca. 80 m², die bequem per Aufzug erreichbar ist. Genießen Sie absolute Ruhe zwischen Alter Donau und Donauzentrum. Ein Garagenplatz kann angemietet werden. Die Vermietung erfolgt exkl Whirlpool. Das Aufstellen eines eigenen Whirlpool ist möglich.



Diese seltene Gelegenheit vereint Top-Lage und Komfort. Vereinbaren Sie noch heute Ihren Besichtigungstermin!


Hinweis gemäß Energieausweisvorlagegesetz: Ein Energieausweis wurde vom Eigentümer bzw. Verkäufer, nach unserer Aufklärung über die generell geltende Vorlagepflicht, sowie Aufforderung zu seiner Erstellung noch nicht vorgelegt. Daher gilt zumindest eine dem Alter und der Art des Gebäudes entsprechende Gesamtenergieeffizienz als vereinbart. Wir übernehmen keinerlei Gewähr oder Haftung für die tatsächliche Energieeffizienz der angebotenen Immobilie.


Der Immobilienmakler erklärt, dass er – entgegen dem in der Immobilienwirtschaft üblichen Geschäftsgebrauch des Doppelmaklers – einseitig nur für den Vermieter tätig ist.

Infrastruktur / Entfernungen

Gesundheit
Arzt <500m
Apotheke <1.000m
Klinik <2.500m
Krankenhaus <3.500m

Kinder & Schulen
Schule <500m
Kindergarten <500m
Universität <2.000m
Höhere Schule <1.500m

Nahversorgung
Supermarkt <500m
Bäckerei <1.000m
Einkaufszentrum <500m

Sonstige
Geldautomat <1.000m
Bank <1.000m
Post <1.000m
Polizei <1.000m

Verkehr
Bus <500m
U-Bahn <500m
Straßenbahn <500m
Bahnhof <500m
Autobahnanschluss <2.000m

Angaben Entfernung Luftlinie / Quelle: OpenStreetMap

Eckdaten Objektnr. 1507

Art: Wohnung - Etage
Land: Österreich
Alter: Neubau
Gesamtmiete: 1.750,00
Kaltmiete (netto): 1.750,00 €
Kaltmiete: 1.750,00 €
Provision: Gemäß Erstauftraggeberprinzip bezahlt der Abgeber die Provision.
Wohnfläche: 34,00 m²
Zimmer: 2
Bäder: 1
WC: 1
Balkone: 1
Terrassen: 1
Immobilie merken Exposé

Immobilie anfragen


Ihre persönliche Beratung

3ES Immobilien KG

Mag. Katja Gálffy

3ES Immobilien KG

T +43 676 504 35 37