Helle 3-Zi-Wohnung in 1100 Wien, 85m², Balkon, Lift, Einbauküche, Top Preis!

Wohnung , 1100 Wien,Favoriten


Direkt auf der Favoritenstraße gelegen, bietet diese Lage alles was das Herz begehrt, Gastronomie, Lebensmittelhandel, Banken, Apotheken, Ärzte und natürlich die öffentliche Anbindung. Man erreicht alles was man zum Leben braucht in 2-3 Minuten zu Fuß! Mit dem Auto ist man in 5 Minuten auf der A23, am Gürtel oder bei sonstiger wichtiger Anbindung des Individualverkehrs.

Beschreibung der Immobilie

Helle 3-Zi-Wohnung in 1100 Wien, 85m², Balkon, Lift, Einbauküche, Top Preis!

Herzlich willkommen in Ihrem neuen Zuhause im 10. Wiener Gemeindebezirk!



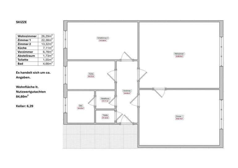
Diese attraktive Wohnung in der 5. Etage bietet Ihnen auf großzügigen 84,6 m² Wohnfläche viel Platz zum Wohlfühlen und Entspannen. Mit insgesamt 3 Zimmern und separater Küche ist die Wohnung ideal für Paare, kleine Familien oder auch als stilvolle Single-Wohnung mit großzügigem Raumangebot geeignet.



Den Halbstock oberhalb der 5 Etage sowie auch das Kellergeschoß erreicht man bequem mit dem Aufzug. So sind Getränke und der Einkauf schnell in der Wohnung und die Ski oder das Fahrrad schnell im großzügigen Keller verstaut.



Die gepflegte Immobilie besticht durch eine gute Raumaufteilung und zentral begehbare Zimmer. Parkettböden verleihen den Wohnräumen ein behagliches Ambiente. Die zentrale Gas-Zentralheizung sorgt für wohlige Wärme auch an kalten Tagen. Der im Wohnzimmer platzierte Ofen dient nur noch dekorativen Zwecken, wäre aber voraussichtlich auch zu reaktivieren. 



Die Einbauküche lädt dazu ein, kulinarische Köstlichkeiten zu zaubern und durch die separate Lage den Gästen den Blick auf Teller und Co zu ersparen .



Das Tageslichtbad mit Fenster in den weitläufigen Innenhof bietet Ihnen täglich einen hellen und freundlichen Ort der Erholung. 



Ein weiterer Pluspunkt sind die hervorragenden Verkehrsanbindungen: Bus, U-Bahn und Straßenbahn befinden sich in unmittelbarer Nähe, sodass Sie schnell und unkompliziert in ganz Wien unterwegs sind. Auch der Bahnhof und der Autobahnanschluss sind gut erreichbar, was die Mobilität zusätzlich erhöht. Die U-Bahn erreichen sie in 3 Gehminuten! 





Nutzen Sie die derzeit noch gültige Gebührenbefreiung bei Hauptwohnsitzbegründung und sparen Sie sich die Eintragungsgebühren sowie die Pfandrechtseintragung bei Finanzierung. 



Der Kaufpreis von 329.000,00 € bietet Ihnen eine hervorragende Gelegenheit, in eine gut gelegene und gepflegte Wohnung in einem dynamischen und lebendigen Stadtteil Wiens zu investieren. Lassen Sie sich diese Chance nicht entgehen und vereinbaren Sie noch heute einen Besichtigungstermin. Ihr neues Zuhause in 1100 Wien wartet auf Sie!





Highlights



  • Personenlift vorhanden
  • Zentral begehbare Zimmer
  • 2 Schlafzimmer
  • Separate Küche
  • Querlüften möglich (1 Seite Innenhof, eine Seite Straßenseitig)
  • Große Distanzflächen zu den Nachbarhäusern
  • Tageslichtbad
  • Bad und Wc getrennt
  • Großes Kellerabteil von Rd. 6,3m²
  • Top Verkehrsanbindung
  • FÜR INVESTOREN: Freier Mietzins!




Mehr Fotos finden Sie im Expose, einfach anfragen wir senden Ihnen umgehend alle Informationen.


Der Vermittler ist als Doppelmakler tätig.

Infrastruktur / Entfernungen

Gesundheit
Arzt <500m
Apotheke <500m
Klinik <1.000m
Krankenhaus <2.500m

Kinder & Schulen
Schule <500m
Kindergarten <500m
Universität <1.000m
Höhere Schule <3.000m

Nahversorgung
Supermarkt <500m
Bäckerei <500m
Einkaufszentrum <1.500m

Sonstige
Geldautomat <500m
Bank <500m
Post <500m
Polizei <1.000m

Verkehr
Bus <500m
U-Bahn <500m
Straßenbahn <500m
Bahnhof <500m
Autobahnanschluss <1.000m

Angaben Entfernung Luftlinie / Quelle: OpenStreetMap

Eckdaten Objektnr. 7191/239

Art: Wohnung
Land: Österreich
Baujahr: 1958
Zustand: Gepflegt
Möbliert: Teil
Alter: Neubau
Kaufpreis: 329.000,00
Kaufpreis / m²: 3.888,89 €
Provision: 3% des Kaufpreises zzgl. 20% USt.
Betriebskosten: 195,98 €
MwSt Gesamt: 25,16 €
Wohnfläche: 84,60 m²
Zimmer: 3
Bäder: 1
WC: 1
Keller: 6,29 m²
Heizwärmebedarf:  E  176,00 kWh/m²a
fGEE:  F  3,39
Immobilie merken Exposé

Ausstattung

Parkett, Fliesen, Parkettboden, Gas, Zentralheizung, Einbauküche, Personenaufzug, Bad mit Fenster, Dusche


Immobilie anfragen


Ihre persönliche Beratung

Hillinger Immobilien GmbH

Robert Holzmann

Hillinger Immobilien GmbH

T +4366499960996