46,75 m² | Sofortbezug | Durchdachter Grundriss

Wohnung , 3100 St. Pölten , Wiener Strasse


Inmitten der Fußgängerzone 2 Minuten vom Rathausplatz und Domplatz gelegen 4 Minuten vom Hauptbahnhof & P+R ÖBB entfernt 8 Minuten zum Universitätsklinikum St. Pölten 27 Minuten mit dem Zug zum Wien Hauptbahnhof 55 Minuten mit dem Zug zum Flughafen Wien

Beschreibung der Immobilie

46,75 m² | Sofortbezug | Durchdachter Grundriss

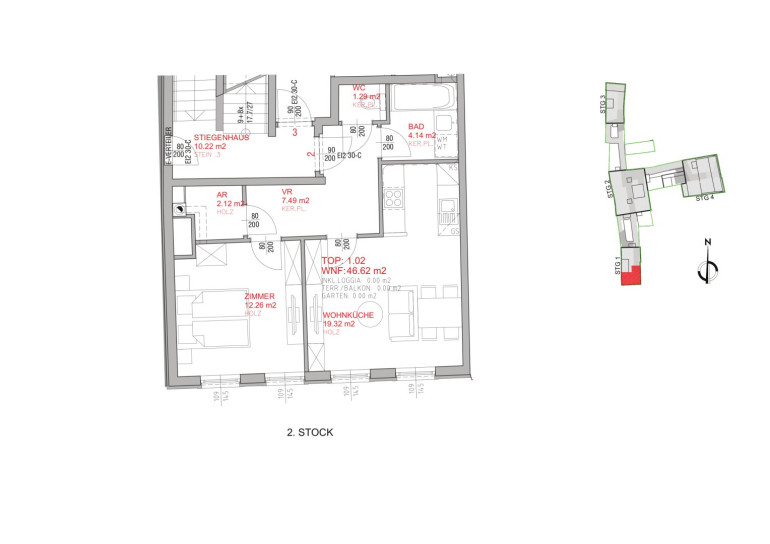
46,75 m² Wohnfläche 
2. OG ohne Lift – Sofortbezug 



Raumaufteilung: Vorraum, Wohnküche, Schlafzimmer, Bad, WC, Abstellraum



Miete gesamt: € 649,- inkl. BK/USt.



Kaution: 4 BMM 




Wir weisen darauf hin, dass zwischen dem Vermittler und dem zu vermittelnden Dritten ein familiäres oder wirtschaftliches Naheverhältnis besteht.


Der Immobilienmakler erklärt, dass er – entgegen dem in der Immobilienwirtschaft üblichen Geschäftsgebrauch des Doppelmaklers – einseitig nur für den Vermieter tätig ist.

Infrastruktur / Entfernungen

Gesundheit
Arzt <250m
Apotheke <250m
Klinik <1.000m
Krankenhaus <1.250m

Kinder & Schulen
Schule <250m
Kindergarten <250m
Universität <1.250m
Höhere Schule <250m

Nahversorgung
Supermarkt <250m
Bäckerei <250m
Einkaufszentrum <250m

Sonstige
Bank <250m
Geldautomat <250m
Polizei <250m
Post <250m

Verkehr
Bus <250m
Bahnhof <500m
Autobahnanschluss <3.000m
Flughafen <5.750m

Angaben Entfernung Luftlinie / Quelle: OpenStreetMap

Eckdaten Objektnr. 5864

Art: Wohnung
Land: Österreich
Zustand: Neuwertig
Alter: Neubau
Gesamtmiete: 649,00
Kaltmiete (netto): 395,52 €
Kaltmiete: 590,00 €
Provision: Gemäß Erstauftraggeberprinzip bezahlt der Abgeber die Provision.
Betriebskosten: 175,31 €
MwSt Gesamt: 59,00 €
Wohnfläche: 46,75 m²
Zimmer: 2
Bäder: 1
WC: 1
Keller: 1,00 m²
Heizwärmebedarf:  C  60,10 kWh/m²a
fGEE:  C  1,12
Immobilie merken Exposé

Ausstattung

Parkett, Fliesen, Zentralheizung, Wohnküche / offene Küche, Personenaufzug, Badewanne, Kabel/Satelliten-TV, Rampe, Sicherheitskamera


Immobilie anfragen


Ihre persönliche Beratung

IMMOCENTRAL Immobilientreuhand GmbH

Marion Kleebinder

IMMOCENTRAL Immobilientreuhand GmbH

T 02742/ 318 60-31

H 0664/ 8839 7297

F 02742/ 318 60-50