Haus inkl. Grundstück - zwischen Aich und Limmersdorf

Haus - Einfamilienhaus, 9020 Klagenfurt am Wörthersee


an der alten Völkermarkter Straße

Beschreibung der Immobilie

Haus inkl. Grundstück - zwischen Aich und Limmersdorf

Wir bauen für Sie Ihr neues Zuhause in Massivbauweise !



Zwischen Aich und Limmersdorf, Busanbindung fast vor der Haustüre, bieten wir Ihnen



wie folgt an:  



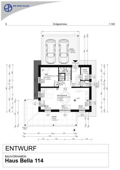
Wir errichten Ihnen inkl. Grundstück mit 600 m² um € 455.190,-- z. B. das Haus "Bella 114" in schlüsselfertiger Ausführung inkl. Fundamentplatte



Aufstellung Ihrer Investition: 



Grundstück € 127.000,--



+ Kaufnebenkosten von 3,5% Grunderwerbssteuer € 4.445,--, 1,1% Eintragungsgebühr € 1.397,--, 3,6% Vermittlungshonorar - nur für das Grundstück - € 4.572,--



Haus schlüsselfertig lt. BLB € 317.776,--



Variante: Grundstück mit 665 m² = Kaufpreis Grundstück € 145.000,-- 



Gerne senden wir Ihnen weitere Grundrisse für unsere Häuser zu.



lt. der Bau- und Leistungsbeschreibung.  



Sie wollen nur das Grundstück kaufen ! Ersuche um Ihre Kontaktaufnahme, Sie erhalten alle



Unterlagen. 



Das Grundstück ist noch nicht geteilt und es kann auch das gesamte Grundstück mit 1.265 m² gekauft werden.





Es ist natürlich möglich Änderungen beim Grundriss durchzuführen.



Gerne erstellen wir Ihnen ein Angebot wenn Sie bereits einen Plan erarbeitet haben.



Auch belagsfertig ist möglich.



Die angefügten Bilder sind mit Sonderausstattung, der Angebotspreis bezieht sich nur auf das Haus 



lt. unserer Bau- und Leistungsbeschreibung





Carport, Nebengebäude, Terrassen, Garagen sind im Kaufpreis nicht enthalten.



Nach einem Informationsgespräch können wir Ihnen gerne ein Angebot mit Ihren Änderungen erstellen.





Anschlussgebühren für Kanal, Wasser und Strom sind im Kaufpreis nicht enthalten 



Wasser, Strom und Kanal ist noch nicht am Grundstück aber in unmittelbarer Nähe vorhanden.





Für ein persönliches Gespräche stehe ich Ihnen gerne zur Verfügung, 0676/6330370 Hugo Ebner


Der Vermittler ist als Doppelmakler tätig.

Eckdaten Objektnr. 896

Art: Haus - Einfamilienhaus
Land: Österreich
Kaufpreis: 455.160,00
Wohnfläche: 114,00 m²
Grundstücksfl.: 600,00 m²
Immobilie merken Exposé

Immobilie anfragen


Ihre persönliche Beratung

Hugo Ebner Immobilien

Hugo Ebner

Hugo Ebner Immobilien

H 0676 6330370