Sonnenbeschienenes Grundstück mit Blick auf die Hohe Wand - ein ländliches Mehrfamilienhaus und ein Einfamilienhaus

Haus , 2753 Markt Piesting


Markt Piesting Nähe Wiener Neustadt

Beschreibung der Immobilie

Sonnenbeschienenes Grundstück mit Blick auf die Hohe Wand - ein ländliches Mehrfamilienhaus und ein Einfamilienhaus

Sonniges Grundstück - 2 Häuser - eine exklusive Immobilie, die keine Wünsche offenlässt. Dieses beeindruckende Mehrfamilienhaus und Einfamilienhaus bietet auf großzügigen 256,82  und 195 m² Wohnfläche ein Höchstmaß an Komfort und Stil.

Zum Kaufpreis von 1.390.000,00 € erhalten Sie hier nicht nur 2 Häuser, sondern auch einen großen Garten mit Gartenhäuschen und einem Teich. 



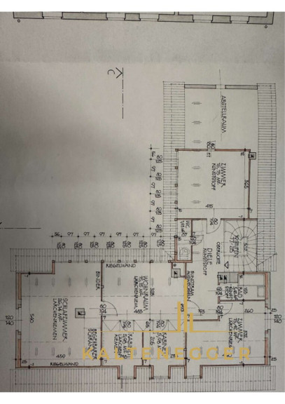
Mit insgesamt 10 Zimmern im Haupthaus bietet diese Immobilie ausreichend Platz für die ganze Familie, kreative Arbeitsbereiche oder Gästezimmer.



Das große Indoorpool im Untergeschoss des Haupthauses bietet Platz für mehrere Personen.



Eine eigene kleine Wohnung im Haupthaus, die mit Gas beheizt wird, steht ebenso zur Verfügung. Das Haupthaus wird mit Öl beheizt.



Jedes Zimmer besticht durch helle, freundliche Räume, die mit hochwertigen Parkett- und Fliesenböden ausgestattet sind und für eine angenehme Wohnatmosphäre sorgen.



Die 4 Bäder, jeweils mit Fenster, Badewanne und Dusche ausgestattet, garantieren Ihnen morgendliche Frische und entspannende Momente. Insgesamt stehen Ihnen 12 WCs zur Verfügung, die den Alltag komfortabel gestalten. Die Kombination aus Gas- und Ölheizung sorgt für wohlige Wärme und effiziente Energienutzung.

Zusätzlich kann man das Nebenhaus auch mit Holz beheizen.



Das Nebenhaus/ Einfamilienhaus/ Praxis/ Büro ist sanierungsbedürftig und verfügt über 4 Zimmer sowie 2 Bäder und 2 WCs. 



Beide Dächer und die Fassade wurden 2006 erneuert.



Der großzügige Garten mit 1480 m² und die große sonnige Terrasse laden zu entspannten Stunden im Freien ein. Hier genießen Sie nicht nur die Ruhe, das Plätschern der Piesting, sondern auch den atemberaubenden Ausblick auf die umliegenden Berge und die Hohe Wand- das grüne Umland und die weite Fernsicht – eine perfekte Kulisse für Ihr neues Zuhause.



Für Ihre Fahrzeuge stehen gleich fünf Garagen zur Verfügung – ideal für Autofamilien, Hobbyfahrer oder als zusätzlicher Stauraum. Die praktische Verbindung zwischen Garage und Haus macht den Alltag noch komfortabler.



Dieses Haus vereint hochwertiges Wohnen mit einer traumhaften Lage in Markt Piesting. Überzeugen Sie sich selbst von der Einzigartigkeit dieser Immobilie und freuen Sie sich auf ein Zuhause, das Ihnen Lebensqualität auf höchstem Niveau bietet. 


Der Vermittler ist als Doppelmakler tätig.

Eckdaten Objektnr. 5556

Art: Haus
Land: Österreich
Baujahr: 1978
Kaufpreis: 1.390.000,00
Provision: 3% des Kaufpreises zzgl. 20% USt.
Betriebskosten: 631,04 €
Wohnfläche: 452,00 m²
Nutzfläche: 500,00 m²
Grundstücksfl.: 3.200,00 m²
Zimmer: 10
Bäder: 6
WC: 12
Terrassen: 1
Garten: 1.477,00 m²
Heizwärmebedarf:  C  78,00 kWh/m²a
fGEE:  C  1,33
Immobilie merken Exposé

Ausstattung

Parkett, Fliesen, Gas, Öl, Bad mit Fenster, Badewanne, Dusche, Garage, Sauna, Swimmingpool


Immobilie anfragen


Ihre persönliche Beratung

Kaltenegger Realitäten GmbH

Viktoria Wurmbrand

Kaltenegger Realitäten GmbH

H +43 676 7508206