++ Geplant. Gebaut. GlĂĽcklich. I MB IMMOBILIEN ++

Haus - Doppelhaushälfte, 2392 Sulz im Wienerwald , Raitlstraße


am Waldrand gelegen im SpeckgĂĽrtel von Wien, nah Rodaun, Kalksburg

Beschreibung der Immobilie

++ Geplant. Gebaut. GlĂĽcklich. I MB IMMOBILIEN ++

🌿 NEUE sonnige DHH im Wienerwald – Schlüsselfertig, energieeffizient & naturnah!



Diese 2 hochwertig geplanten Doppelhaushälften in Holzmassivbauweise verbindet modernes Wohnen, energieeffiziente Bauqualität und eine traumhafte Lage direkt am Waldrand. Nur 10 Fahrminuten von Wien entfernt genießen Sie hier Ruhe, Natur und ein Zuhause mit Wohlfühlfaktor. Ums Eck befindet sich die Busstation zum BHF Mödling und BHF Liesing. Autobahnanschluss ist A21 Heiligenkreuz oder Hinterbrühl.



🌞 Highlights auf einen Blick:




  • Ca. 132 m² Wohnfläche auf zwei optimal geplanten Etagen (2 Abstellräume, 2 separate WC)



  • SĂĽdseitiger Garten mit Rollrasen, Terrasse mit Wasseranschluss



  • Energieeffiziente Ausstattung: FuĂźbodenheizung im ganzen Haus, elektrische AuĂźenjalousien, 3-fach Isolierverglasung mit Sonnenschutz



  • Hochwertige Materialien: Feinsteinzeug in allen Nassräumen, Sicherheits-EingangstĂĽre



  • Top Preis-Leistungs-Verhältnis in begehrter Wienerwaldlage



  • FERTIGSTELLUNG im Juli 2026!




🏡 Raumaufteilung – durchdacht & familienfreundlich:



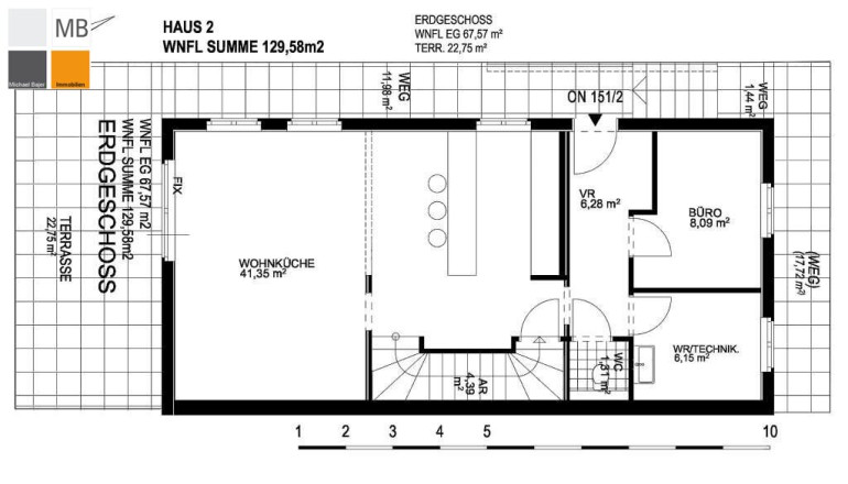
Erdgeschoss:




  • Offener Wohn‑/Ess-/Kochbereich mit direktem Zugang in den SĂĽdgarten



  • Gästezimmer oder Homeoffice



  • WC



  • Technikraum



  • Abstellraum




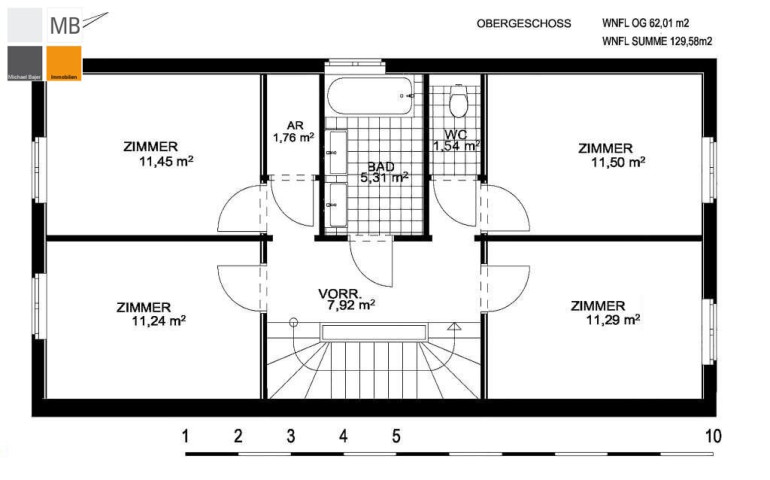
Obergeschoss:




  • 4 helle, ruhige Schlafzimmer



  • Badezimmer mit Wanne



  • Separates WC



  • Vorraum



  • Abstellraum




🌳 Lage & Infrastruktur – Wohnen im Biosphärenpark:



Die Immobilie befindet sich in einer verkehrsberuhigten Ruhelage im Herzen des Biosphärenparks Wienerwald – ideal für Familien, Naturliebhaber und alle, die Erholung suchen.



Alles für den täglichen Bedarf ist bequem erreichbar:




  • Nah&Frisch, Arzt, Apotheke, Post, Bank, Cafe, Friseur, Restaurants, Spielplatz, Tennisplätze, Reitställe



  • Busstation Richtung Bahnhof Mödling & Wien-Liesing nur wenige Schritte entfernt



  • A21-Anschluss Heiligenkreuz/HinterbrĂĽhl ca. 2 km entfernt





Haus 1: verkauft!



Haus 2: verkauft!



Haus 3: verfĂĽgbar



Haus 4: verfĂĽgbar





📞 Jetzt Besichtigung vereinbaren und Ihr neues Zuhause im Wienerwald sichern!


Roswitha Adler

0676/4554 267
adler@mb-immobilien.at
Bin (fast) jederzeit erreichbar! Einzelbesichtigung flexibel und spontan möglich.





Wir weisen auf unser wirtschaftliches Nahverhältnis mit dem Abgeber und auf unsere Vermittlungstätigkeit als Doppelmakler hin.


Alle Angaben basieren auf Informationen des Eigentümers und wurden mit größter Sorgfalt zusammengestellt.

Für die Richtigkeit, Vollständigkeit und Aktualität dieser Angaben wird keine Gewähr übernommen. Änderungen, Irrtümer und Zwischenverkauf bleiben ausdrücklich vorbehalten. Maßangaben sind Circa-Angaben.

Das Exposé stellt kein verbindliches Angebot dar.

Bei erfolgreichem Abschlussfall fällt eine Käuferprovision in Höhe von 3 % des Kaufpreises zzgl. 20 % USt. an - gemäß Immobilienmaklerverordnung BGBI. 262 und 297/1996.



Infrastruktur / Entfernungen

Gesundheit
Arzt <500m
Apotheke <5.750m
Klinik <6.250m
Krankenhaus <9.500m

Kinder & Schulen
Schule <3.750m
Kindergarten <2.750m
Höhere Schule <5.000m
Universität <5.000m

Nahversorgung
Supermarkt <500m
Bäckerei <6.000m

Sonstige
Bank <500m
Geldautomat <500m
Post <5.000m
Polizei <6.250m

Verkehr
Bus <500m
Autobahnanschluss <4.000m
Bahnhof <10.000m

Angaben Entfernung Luftlinie / Quelle: OpenStreetMap

Eckdaten Objektnr. 4578

Art: Haus - Doppelhaushälfte
Land: Ă–sterreich
Baujahr: 2026
Zustand: Erstbezug
Alter: Neubau
Kaufpreis: 550.000,00 €
Provision: 3% des Kaufpreises zzgl. 20% USt.
Wohnfläche: 131,00 m²
Grundstücksfl.: 363,41 m²
Zimmer: 6
Bäder: 1
WC: 2
Terrassen: 1
Stellplätze: 2
Garten: 200,00 m²
Heizwärmebedarf:  B  37,30 kWh/m²a
Immobilie merken Exposé

Ausstattung

Steinboden, Parkett, FuĂźbodenheizung, WohnkĂĽche / offene KĂĽche, SĂĽdbalkon, Bad mit Fenster, Badewanne, Dusche, Kabel/Satelliten-TV, Parkplatz


Immobilie anfragen


Ihre persönliche Beratung

Michael Bajer Immobilien

Roswitha Adler

Michael Bajer Immobilien

H +43 676 45 54 267