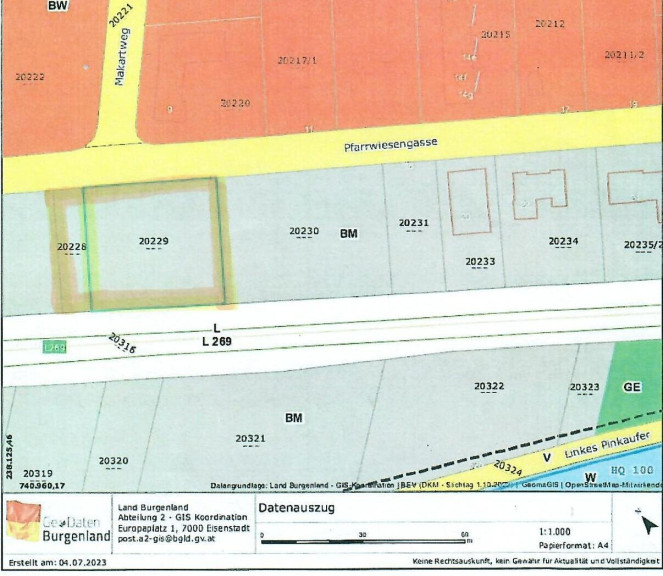
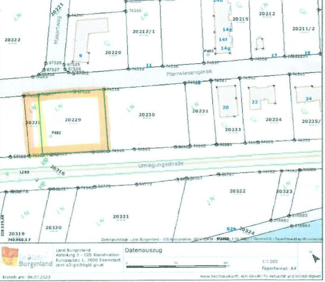
894 m² BAUGRUNDSTÜCK IN OBERWART!

Grundstück , 7400 Oberwart , Pfarrwiesengasse


Beschreibung der Immobilie

894 m² BAUGRUNDSTÜCK IN OBERWART!

Dieses interessante Baugrundstück mit 894 m² Fläche liegt in einer ruhigen Seitengasse inmitten der Stadtgemeinde Oberwart.



Es eignet sich ideal für die Errichtung eines Einfamilienhauses. 



Das Grundstück ist leer und BEREITS AUFGESCHLOSSEN!

 



BREITE: 24 m

TIEFE:    37 m



Widmung: BM Bauland - gemischtes Baugebiet E+1 (einstöckiges Gebäude)

Verbauung: 50 % --> 447 m² verbaubar!
 



(Insgesamt sind 2 Grundstücke mit je 894 m² verfügbar!)

Durch die gute und ruhige Lage, sowie die großzügige Bebaubarkeit und Seltenheit solcher Grundstücke bietet sich diese Liegenschaft ideal für Familien mit Hausbauplänen an!



Bei Interesse freuen wir uns auf Ihre Anfrage!


Der Vermittler ist als Doppelmakler tätig.

Eckdaten Objektnr. 4832/1580

Art: Grundstück
Land: Österreich
Kaufpreis: 98.000,00
Provision: 3.528,00 € inkl. 20% USt.
Grundstücksfl.: 894,00 m²
Immobilie merken Exposé

Immobilie anfragen


Ihre persönliche Beratung

S+R KERN Immobilien GmbH

Robert W. Pabisch

Kern Immobilien

H +43 699 16 007 007