154 m² LUXURIÖSE DACHGESCHOSS-WOHNUNG -- TERRASSE -- KLIMA -- EXTRA STUDIO/BÜRO -- 2 EINGÄNGE!

Wohnung , 1010 Wien , Gonzagagasse


Beschreibung der Immobilie

154 m² LUXURIÖSE DACHGESCHOSS-WOHNUNG -- TERRASSE -- KLIMA -- EXTRA STUDIO/BÜRO -- 2 EINGÄNGE!

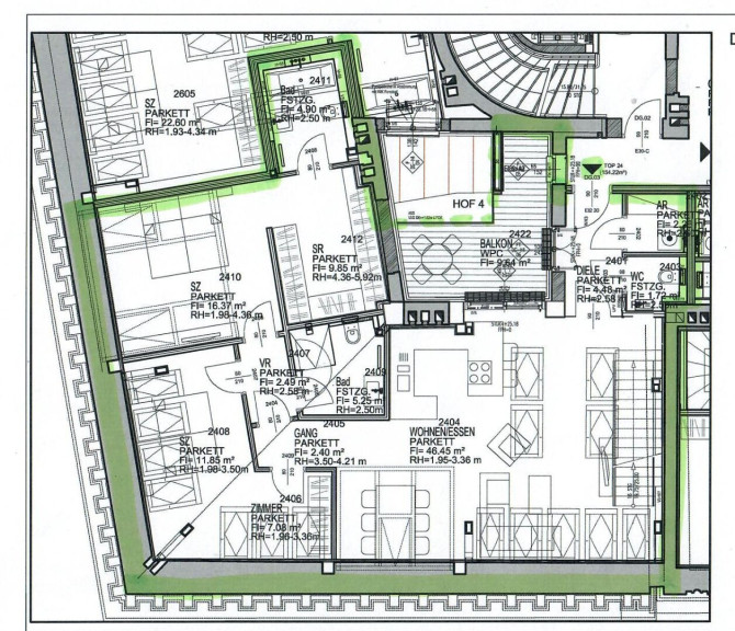
Diese eindrucksvolle 5-Zimmer-Wohnung mit 10 m² Terrasse ist 2024 komplett neu und hochwertig gebaut worden.

Sie liegt als Maisonette im Dachgeschoß eines altehrwürdigen Wohnhauses in Top-Lage am Rudolfsplatz, nähe Schwedenplatz.



Vom unteren Eingangsbereich mit Abstellraum und WC gelangt man in den großzügigen Wohn-Salon mit offener Küche (46,45 m²), sowie zu den 3 Schlafzimmern (7,08/11,83/16,37 m²), 2 Bädern sowie einem Schrankraum (9,85 m²).

Neben dem Wohn-Salon liegt die hofseitige Terrasse (9,54 m²).



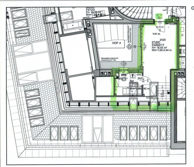
Im Obergeschoß gelangt man vom 2. Eingang in einen großzügigen Galerie-Raum/Studio (18,43 m²) mit eigenem Bad - ideal als Büro oder Gäste/Personal-Wohnung (kann auch zur Wohnun abgetrennt werden!).



Insgesamt findet man:

- 5,5 Zimmer

- 3 Bäder

- 4 WC



Diese Top-Wohnung eignet sich ideal als City-Apartment für Paare und Familien - mit extra Studio/Büro.



Bei Interesse freuen wir uns über Ihre Kontaktaufnahme unter 0699 16 007 007!


Der Immobilienmakler erklärt, dass er – entgegen dem in der Immobilienwirtschaft üblichen Geschäftsgebrauch des Doppelmaklers – einseitig nur für den Vermieter tätig ist.

Eckdaten Objektnr. 4832/1589

Art: Wohnung
Land: Österreich
Baujahr: 1880
Zustand: Teil_vollrenoviert
Gesamtmiete: 4.555,63
Kaltmiete (netto): 3.300,00 €
Kaltmiete: 3.731,87 €
Provision: Gemäß Erstauftraggeberprinzip bezahlt der Abgeber die Provision.
Betriebskosten: 431,87 €
Heizkosten: 381,90 €
MwSt Gesamt: 441,86 €
Wohnfläche: 154,23 m²
Zimmer: 4,50
Bäder: 3
WC: 4
Terrassen: 1
Heizwärmebedarf:  B  37,94 kWh/m²a
Immobilie merken Exposé

Ausstattung

Parkett, Fliesen, Zentralheizung, Wohnküche / offene Küche, Einbauküche, Personenaufzug


Immobilie anfragen


Ihre persönliche Beratung

S+R KERN Immobilien GmbH

Robert W. Pabisch

Kern Immobilien

H +43 699 16 007 007