Geschäftslokal am Südtiroler Platz

Büro / Praxis , 8010 Graz,01.Bez.:Innere Stadt


Feuerbachgasse/ Ecke Südtirolerplatz

Beschreibung der Immobilie

Geschäftslokal am Südtiroler Platz

Geschäftslokal mit Lagerkeller in der Feuerbachgasse 6 und damit direkt beim Südtiroler Platz zu vermieten!



Die Räumlichkeiten stehen ab sofort zur Vermietung und liegen in gut frequentierter Lage inmitten der Altstadt und sind sowohl mit öffentlichen Verkehrsmitteln als auch dem Auto erreichbar. Kurzparkzone direkt vor dem Haus, Straßenhanhaltestelle ca 50m entfernt.



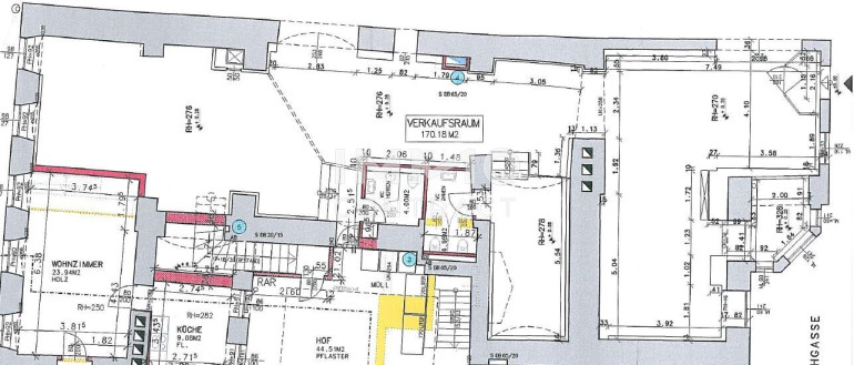
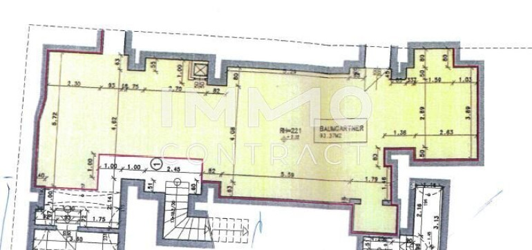
Das ebenerdige Geschäft ist von der Feuerbachgasse und der Andrägasse zu betreten und wird mit einem großen Lagerkeller vermietet. Sanitärräumlichkeinten sind bereits vorhanden.



+ Innenstadtlage neben dem Kunsthaus

+ sehr gute Verkehrsanbindung

+ Auslagenfront

+ großer Lagerkeller



Für weitere Details und Besichtigungen stehe ich gerne zur Verfügung!

Infrastruktur / Entfernungen

Gesundheit
Arzt <500m
Apotheke <1.000m
Klinik <500m
Krankenhaus <500m

Kinder & Schulen
Schule <500m
Kindergarten <1.000m
Universität <500m
Höhere Schule <500m

Nahversorgung
Supermarkt <500m
Bäckerei <1.000m
Einkaufszentrum <2.000m

Sonstige
Geldautomat <1.000m
Bank <1.000m
Post <1.000m
Polizei <1.500m

Verkehr
Bus <500m
Straßenbahn <1.000m
Bahnhof <1.500m
Autobahnanschluss <6.500m

Angaben Entfernung Luftlinie / Quelle: OpenStreetMap

Eckdaten Objektnr. 1939/126565

Art: Büro / Praxis
Land: Österreich
Kaltmiete (netto): 1.677,97 €
Kaltmiete: 1.999,52 €
Miete / m²: 7,64 €
Provision: 3 Bruttomonatsmieten zzgl. 20% USt.
Betriebskosten: 321,55 €
MwSt Gesamt: 399,90 €
Lagerfläche: 93,37 m²
Heizwärmebedarf:  C  58,70 kWh/m²a
fGEE:  C  1,24
Immobilie merken Exposé

Immobilie anfragen


Ihre persönliche Beratung

IMMOcontract Immobilien Vermittlung GmbH

Richard Böhm

IMMOcontract Immobilien Vermittlung GmbH

T +43 664 60008254

H +43 664 60008254