Wunderbar helle und günstige Büroräume bestens angebunden - in 4020 Linz zu mieten
Büro / Praxis
- Bürofläche,
4020
Linz
,
Wiener Straße 48
Die Liegenschaft befindet sich in zentraler Stadtlage entlang der Wiener Straße, einer der wichtigsten Verkehrs- und Geschäftsachsen von Linz. Das Umfeld zeichnet sich durch eine sehr gute Nahversorgung mit zahlreichen Einkaufsmöglichkeiten, Gastronomiebetrieben sowie Dienstleistungsangeboten aus. Die Anbindung an den öffentlichen Verkehr ist ausgezeichnet: Straßenbahn- und Bushaltestellen befinden sich in unmittelbarer Nähe und ermöglichen eine rasche Verbindung in die Linzer Innenstadt sowie zum Hauptbahnhof.
Beschreibung der Immobilie
Wunderbar helle und günstige Büroräume bestens angebunden - in 4020 Linz zu mieten
Sehr gut gelegene Büroflächen nahe Herz-Jesu-Kirche!Diese hellen und angenehmen Büros liegen in bester Infrastruktur nahe der Herz-Jesu-Kirche.
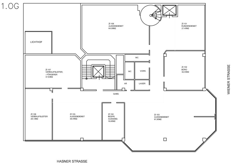
Die aktuelle Aufteilung bietet 8 Räume, die teilweise noch weiter unterteilt werden können, sowie eine kleine Teeküche und Sanitärräume.
Derzeit ist die Fläche mit dem EG und 2.OG mittels einer Wendeltreppe verbunden, die entfernt werden kann. Optional können aber auch die EG-Fläche oder das Büro im 2.OG mit ca. 400 m² zusätzlich angemietet werden.
Alternativ sind alle Einheiten über das allgemeine Stiegenhaus und den Lift erreichbar.
BESTENS ANGEBUNDEN - fußläufig erreichbar sind:
Straßenbahnhaltestelle 1 Minute entfernt, Autobahnanschluß Wiener Straße 1 Minute entfernt, Nahversorger wie z.B. BILLA und Bäckerei ebenfalls nur 2 Minuten entfernt.
Fragen Sie jetzt an und sichern Sie sich Ihre günstigen Büroräume!
Eckdaten Objektnr. 505260223_2
| Art: | Büro / Praxis - Bürofläche |
| Land: | Österreich |
| Baujahr: | 1977 |
| Zustand: | Gepflegt |
| Gesamtmiete: | 4.767,14 € |
| Kaltmiete (netto): | 3.972,62 € |
| Miete / m²: | 9,50 € |
| Provision: | 3 BMM zzgl. 20% USt. |
| Gesamtfläche: | 418,17 m² |
| Bürofläche: | 418,17 m² |
Ausstattung
Zentralheizung
Ihre persönliche Beratung
Dieser Makler ist ein offizielles Mitglied des IR – ir.at Mehr Erfahren
