Hofseitige 2-Zimmer Wohnung mit Balkon in der Wielandgasse

Wohnung , 1100 Wien


Wielandgasse 5 , sehr nahe zum Keplermarkt zur Fußgängerzone Favoritenstraße und zur U1 Keplerplatz oder Reumannplatz

Beschreibung der Immobilie

Hofseitige 2-Zimmer Wohnung mit Balkon in der Wielandgasse

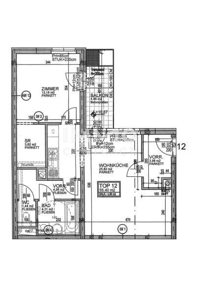
Diese nette, helle 2-Zimmer-Wohnung befindet sich im 3.Liftstock und bietet eine ruhige, hofseitige Lage.



Sie bietet Vorraum, Wohnküche, einen zweiten Vorraum zu Bad und WC, ein Schlafzimmer und einen Balkon , der sowohl vom Schlafzimmer als auch von der Wohnküche aus begehbar ist. Geheizt wird mit Fernwärme.



Ein Kellerabteil ist zur Wohnung zugeordnet.



In der hauseigenen Garage gibt es Stellplätze um 95€ monatlich zu mieten.



Bitte senden Sie ausschließlich schriftliche Anfragen. 



Sie erhalten dann einen Besichtigungstermin!


Der Immobilienmakler erklärt, dass er – entgegen dem in der Immobilienwirtschaft üblichen Geschäftsgebrauch des Doppelmaklers – einseitig nur für den Vermieter tätig ist.

Infrastruktur / Entfernungen

Gesundheit
Arzt <500m
Apotheke <500m
Klinik <500m
Krankenhaus <2.000m

Kinder & Schulen
Schule <500m
Kindergarten <500m
Universität <1.000m
Höhere Schule <2.500m

Nahversorgung
Supermarkt <500m
Bäckerei <500m
Einkaufszentrum <1.000m

Sonstige
Geldautomat <500m
Bank <500m
Post <500m
Polizei <500m

Verkehr
Bus <500m
U-Bahn <500m
Straßenbahn <500m
Bahnhof <500m
Autobahnanschluss <1.500m

Angaben Entfernung Luftlinie / Quelle: OpenStreetMap

Eckdaten Objektnr. 1939/214925

Art: Wohnung
Land: Österreich
Gesamtmiete: 850,30
Kaltmiete (netto): 651,50 €
Kaltmiete: 773,00 €
Provision: Gemäß Erstauftraggeberprinzip bezahlt der Abgeber die Provision.
Betriebskosten: 121,50 €
MwSt Gesamt: 77,30 €
Wohnfläche: 55,40 m²
Zimmer: 2
Bäder: 1
WC: 1
Balkone: 1
Heizwärmebedarf:  B  35,20 kWh/m²a
fGEE:  C  1,12
Immobilie merken Exposé

Ausstattung

Parkettboden, Einbauküche, Personenaufzug, Dusche


Immobilie anfragen


Ihre persönliche Beratung

IMMOcontract Immobilien Vermittlung GmbH

Martina Abiodun-Regenfelder

IMMOcontract Immobilien Vermittlung GmbH

T +43 50450 541

H +43 676 841 420 541