Helle 3-Zimmer-Wohnung mit GARTEN und GARAGE in Pasching
Wohnung
,
4061
Pasching
,
Kramlehnerweg 8 b / OG
Die Wohnung am Kramlehnerweg in 4061 Pasching besticht durch ihre zentrale Lage. In unmittelbarer Nähe finden Sie Apotheke, Kindergarten, Schule sowie Supermarkt und Bäckerei. Auch Einkaufszentrum, Bank, Geldautomat, Post sowie Bus- und Straßenbahnanschlüsse sind bequem erreichbar – ideal für eine perfekte Anbindung und hohe Lebensqualität.
Beschreibung der Immobilie
Helle 3-Zimmer-Wohnung mit GARTEN und GARAGE in Pasching
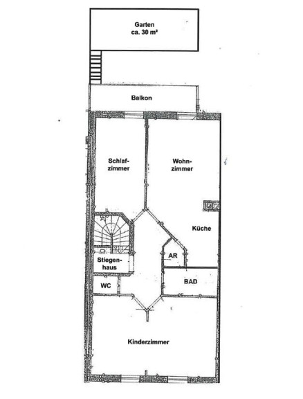
Zum Vermieten steht eine liebevoll gepflegte und großzügig geschnittene 3-Zimmer-Wohnung in ruhiger und begehrter Lage in Pasching, Kramlehnerweg 8. Schon beim Betreten spürt man die helle und freundliche Atmosphäre, die diese Wohnung so besonders macht. Der Balkon und der direkte Zugang zum eigenen Garten laden dazu ein, sonnige Stunden im Freien zu genießen – perfekt für entspannte Nachmittage, gemeinsame Grillabende oder einfach zum Seele baumeln lassen.
Die große, bereits möblierte Küche bietet viel Platz für kulinarische Experimente und geselliges Beisammensein. Das Bad ist mit einer Wanne ausgestattet, ideal für ein entspannendes Bad nach einem langen Tag, während das separate WC zusätzlichen Komfort für die Bewohner bietet. Die Böden in warmem Holzfarbton schaffen eine gemütliche und harmonische Wohnatmosphäre, die zum Wohlfühlen einlädt. Eine Garage steht ebenfalls zur Verfügung und rundet dieses attraktive Wohnangebot perfekt ab.
Wir weisen darauf hin, dass zwischen dem Vermittler und dem zu vermittelnden Dritten ein familiäres oder wirtschaftliches Naheverhältnis besteht.
Der Immobilienmakler erklärt, dass er – entgegen dem in der Immobilienwirtschaft üblichen Geschäftsgebrauch des Doppelmaklers – einseitig nur für den Vermieter tätig ist.
Infrastruktur / Entfernungen
Gesundheit
Arzt <1.125m
Apotheke <400m
Krankenhaus <6.000m
Klinik <1.875m
Kinder & Schulen
Kindergarten <600m
Schule <625m
Universität <3.475m
Höhere Schule <7.625m
Nahversorgung
Supermarkt <400m
Bäckerei <375m
Einkaufszentrum <400m
Sonstige
Bank <375m
Geldautomat <375m
Post <375m
Polizei <2.850m
Verkehr
Bus <300m
Straßenbahn <475m
Bahnhof <2.225m
Autobahnanschluss <4.700m
Flughafen <3.400m
Angaben Entfernung Luftlinie / Quelle: OpenStreetMap
Eckdaten Objektnr. 1937/7646071
| Art: | Wohnung |
| Land: | Österreich |
| Gesamtmiete: | 1.218,55 € |
| Kaltmiete (netto): | 765,00 € |
| Kaltmiete: | 1.025,30 € |
| Provision: | Gemäß Erstauftraggeberprinzip bezahlt der Abgeber die Provision. |
| Betriebskosten: | 200,00 € |
| Heizkosten: | 75,60 € |
| MwSt Gesamt: | 117,65 € |
| Wohnfläche: | 90,00 m² |
| Zimmer: | 3 |
| Terrassen: | 1 |
| Heizwärmebedarf: | 191,10 kWh/m²a |
| fGEE: | 2,67 |
Ihre persönliche Beratung
Silvia Loizenbauer
AREV Immobilien GmbH
T +43 732 605533 364
H +43 664 8185330