Getreidemarkt - Repräsentative Lage mit Sternparkett

Büro / Praxis , 1060 Wien,Mariahilf , Getreidemarkt


Beschreibung der Immobilie

Getreidemarkt - Repräsentative Lage mit Sternparkett

Stilvolles Büro mit Altbaucharme am Getreidemarkt in 1060 Wien.





In repräsentativer Innenstadtlage bietet dieses Büro die ideale Adresse für Unternehmen, Freiberufler, Kanzleien, Praxen oder Agenturen, die Wert auf ein professionelles Umfeld und einen starken ersten Eindruck legen.



Klassische Wiener Architektur, eleganter Sternparkettboden und ein gepflegtes Gesamtbild verleihen der Fläche Charakter, Wiedererkennungswert und eine angenehme Arbeitsatmosphäre.



Die zentrale Lage in Wien sorgt für beste Einbindung in das urbane Leben und macht den Standort besonders attraktiv für anspruchsvolle Mieter mit Fokus auf Sichtbarkeit, Stil und Erreichbarkeit.





Nähere Details erhalten Sie gerne auf Anfrage.

Herr Manuel Plachner, MSc MRICS, Mobil: , Mail: m.plachner@advanta.at, steht für ein persönliches Gespräch sowie für einen Besichtigungstermin gerne zur Verfügung.

Infrastruktur / Entfernungen

Gesundheit
Arzt <250m
Apotheke <250m
Klinik <500m
Krankenhaus <1.500m

Kinder & Schulen
Schule <500m
Kindergarten <500m
Universität <250m
Höhere Schule <1.000m

Nahversorgung
Supermarkt <250m
Bäckerei <250m
Einkaufszentrum <500m

Sonstige
Geldautomat <250m
Bank <250m
Post <250m
Polizei <500m

Verkehr
Bus <250m
U-Bahn <250m
Straßenbahn <500m
Bahnhof <250m
Autobahnanschluss <3.500m

Angaben Entfernung Luftlinie / Quelle: OpenStreetMap

Eckdaten Objektnr. 6655

Art: Büro / Praxis
Land: Österreich
Zustand: Gepflegt
Alter: Altbau
Kaltmiete (netto): 2.275,53 €
Kaltmiete: 2.495,00 €
Provision: 3 Bruttomonatsmieten zzgl. 20% USt.
Betriebskosten: 219,47 €
MwSt Gesamt: 499,00 €
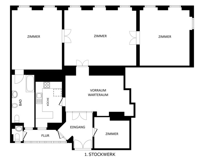
Nutzfläche: 130,47 m²
Zimmer: 4
Bäder: 1
WC: 2
Heizwärmebedarf:  C  84,00 kWh/m²a
fGEE:  C  1,29
Immobilie merken Exposé

Ausstattung

Parkett, Fliesen, Gas, Etagenheizung, Einbauküche, Personenaufzug, Badewanne, Dusche


Immobilie anfragen


Ihre persönliche Beratung

ADVANTA – Immobilienvermittlungs GmbH

Manuel Plachner

ADVANTA – Immobilienvermittlungs GmbH

T +43 1 409 84 00

H +43 699 12 55 87 28

F +43 1 409 84 00 33