Möbliertes Designer-Doppelhaus mit Spa & Pool nahe Wien

Haus - Doppelhaushälfte, 2380 Perchtoldsdorf


Im mondänen und zugleich naturnahen sowie historisch geprägten Perchtoldsdorf, einer der exklusivsten und gefragtesten Wohnlagen im Bezirk Mödling, vereint diese Liegenschaft auf einzigartige Weise urbanen Komfort mit idyllischer Lebensqualität. Die Immobilie befindet sich in einer gehobenen Wohngegend mit hoher Lebensqualität, in attraktiver Hochlage auf rund 328 Metern Seehöhe, am begehrten Bergrücken des Parapluiebergs. Diese besondere Positionierung sorgt nicht nur für ein angenehmes Mikroklima, sondern unterstreicht auch den exklusiven Charakter der Umgebung. Zudem liegt das Objekt nicht direkt an einer Straße, was zusätzliche Ruhe und Privatsphäre gewährleistet. In unmittelbarer Nähe erstreckt sich das renommierte Naherholungsgebiet Perchtoldsdorfer Heide, das mit weitläufigen Grünflächen, Wanderwegen und beeindruckenden Ausblicken zu erholsamen Stunden in der Natur einlädt. Gleichzeitig profitieren Sie von einer ausgezeichneten Infrastruktur: Das charmante Zentrum von Perchtoldsdorf mit seiner historischen Altstadt ist rasch erreichbar und bietet vielfältige Einkaufsmöglichkeiten, Gastronomie sowie sämtliche Einrichtungen des täglichen Bedarfs. Schulen und renommierte Privatschulen befinden sich ebenfalls in unmittelbarer Umgebung. Die Anbindung an Wien ist hervorragend: Die Straßenbahnlinie 60 (Endstation Wien) sowie eine Autobusstation in Gehweite ermöglichen eine komfortable öffentliche Verbindung. Auch die nahegelegene Autobahnanbindung sorgt für eine schnelle Erreichbarkeit der Wiener Innenstadt sowie des Umlandes.

Beschreibung der Immobilie

Möbliertes Designer-Doppelhaus mit Spa & Pool nahe Wien

Superurban. Naturnah. Smart. Vollendet möbliert.



Aus der RealGoodLiving Signature Collection präsentiert DI Ljupka Zanoni:



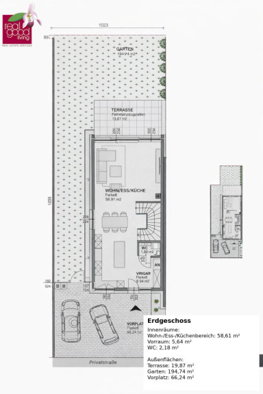
Diese exklusive Designer-Doppelhaushälfte in Perchtoldsdorf vereint moderne Architektur, durchdachte Raumplanung und naturnahes Wohnen – nur wenige Minuten von Wien entfernt.



Auf rund 230 m² Wohnnutzfläche entfaltet sich ein offenes, klar strukturiertes Wohnkonzept mit fließenden Übergängen zwischen Innen- und Außenbereich.



Besonderes Highlight:



Die Immobilie wird inklusive einiger hochwertiger  Möbelstücke übergeben – ein stimmiges Gesamtkonzept, sofort bezugsfertig.




Highlights




  • Offener Wohnbereich mit Designküche, Essplatz & stilvoller Wohnzone



  • Panorama-Kaminofen als architektonisches Statement



  • Großzügige Terrassen und Balkone mit Zugang aus nahezu allen Räumen



  • Harmonische Blickachsen ins Grüne, in die Umgebung und auf Wien



  • Pool (ca. 4 × 7 m) mit Gegenstromanlage, Solardusche und grossem Gartenhaus



  • Separate Ebene für Kinder, Gäste oder Homeoffice – mit eigenem Bad und Ausblick



  • Klimatisierter Masterbereich Ebene mit Garderobe, Terrasse & hochwertigem Bad 



  • Privater Wellnessbereich im Untergeschoss: Glassauna, Ruhezone & Glasdusche



  • Maßgefertigte Einbauten & durchdachte Stauraumlösungen



  • Solar- & Photovoltaikanlage



  • Fußbodenheizung und -kühlung





Außenbereich



Klar gestalteter Außenraum mit Pool, großzügigen Terrassenflächen und ausgewählter Bepflanzung.

Ruhige, leicht erhöhte Lage mit naturnahem Umfeld und gleichzeitig schneller Anbindung an Wien.




Ideal für



Anspruchsvolle Käufer, die ein voll ausgestattetes, hochwertiges Zuhause mit sofortiger Bezugsfähigkeit und außergewöhnlicher Wohnqualität suchen.




Eine werthaltige Entscheidung



Die Verbindung aus erstklassiger Lage, architektonischer Klarheit und hochwertiger technischer Ausstattung schafft eine Immobilie von nachhaltigem Wert und zeitloser Qualität.



Sowohl zur Eigennutzung als auch als langfristige Wertanlage bestens geeignet.




Signature Service



Als Käufer profitieren Sie von einer persönlichen architektonischen und innenarchitektonischen Erstberatung durch

Dipl.-Ing. der Architektur Ljupka Zanoni.



Individuelle Anpassungen können präzise auf Ihre Wünsche und Ihren Lebensstil abgestimmt werden.




Exklusiver Zugang



Besichtigungen erfolgen ausschließlich nach persönlicher Terminvereinbarung und für ausgewählte, qualifizierte Interessenten.




Dipl.-Ing. Ljupka Zanoni
RealGoodLiving – Signature Collection



📞 +43 664 103 6005




Hinweise



Energieausweis:
Wird gemäß EAVG vorgelegt.



Haftungsausschluss:
Alle Angaben basieren auf Informationen des Eigentümers. Änderungen vorbehalten.



Ausstattung & Bildmaterial:
Die Immobilie wird mit einige von bestehender Möblierung wie abgebildet übergeben. Geringfügige Abweichungen sind möglich.

Maßgeblich ist der Zustand bei Besichtigung.

Kunstwerke und Dekoration sind nicht Bestandteil des Kaufpreises.


Wir weisen darauf hin, dass zwischen dem Vermittler und dem zu vermittelnden Dritten ein familiäres oder wirtschaftliches Naheverhältnis besteht.


Der Vermittler ist als Doppelmakler tätig.

Infrastruktur / Entfernungen

Gesundheit
Arzt <1.500m
Apotheke <1.500m
Klinik <2.500m
Krankenhaus <2.000m

Kinder & Schulen
Schule <1.000m
Kindergarten <1.500m
Höhere Schule <5.000m
Universität <8.500m

Nahversorgung
Supermarkt <1.500m
Bäckerei <1.500m
Einkaufszentrum <3.500m

Sonstige
Bank <1.500m
Geldautomat <1.500m
Post <1.500m
Polizei <1.500m

Verkehr
Bus <500m
U-Bahn <5.000m
Straßenbahn <3.000m
Bahnhof <2.500m
Autobahnanschluss <1.000m

Angaben Entfernung Luftlinie / Quelle: OpenStreetMap

Eckdaten Objektnr. 4356/431

Art: Haus - Doppelhaushälfte
Land: Österreich
Baujahr: 2023
Zustand: Neuwertig
Möbliert: Voll
Alter: Neubau
Kaufpreis: 1.690.000,00
Kaufpreis / m²: 7.342,72 €
Provision: 60.840,00 € inkl. 20% USt.
Nutzfläche: 230,16 m²
Grundstücksfl.: 350,00 m²
Lagerfläche: 12,00 m²
Zimmer: 5
Bäder: 3
WC: 3
Balkone: 1
Terrassen: 3
Stellplätze: 2
Garten: 194,74 m²
Keller: 66,09 m²
Heizwärmebedarf:  B  28,00 kWh/m²a
fGEE:  A+  0,68
Immobilie merken Exposé

Ausstattung

Parkett, Fliesen, Solarenergie, Kamin, Zentralheizung, Fußbodenheizung, Heizofen, Einbauküche, Wohnküche / offene Küche, Bad mit Fenster, Badewanne, Dusche, Parkplatz, Alarmanlage, Sauna, Sicherheitskamera


Immobilie anfragen


Ihre persönliche Beratung

RealGoodLiving Real Estate Services GmbH

Dipl.-Ing. Ljupka Zanoni

RealGoodLiving Real Estate Services GmbH

T +43 664 103 60 05

H +43 664 103 60 05