Lebenswert wohnen mitten in Ohlsdorf (Top 6) - „Picknick am Bauplatz“ am 10.April

Wohnung , 4694 Ohlsdorf


Beschreibung der Immobilie

Lebenswert wohnen mitten in Ohlsdorf (Top 6) - „Picknick am Bauplatz“ am 10.April

Zentral. Zeitgemäß. Zuhause. – 12 Neubauwohnungen in Ohlsdorf, Angerweg 2
 



Einladung zum „Picknick am Bauplatz“



Bevor die Bagger rollen und das Fundament für Ihr neues Zuhause in Ohlsdorf gelegt wird, laden wir Sie herzlich zu einem Infotag ein. Besuchen Sie uns direkt auf der grünen Wiese – dort, wo bald modernes Wohnen entsteht.



  • WANN: Freitag, 10. April 2026
  • ZEIT: 15:00 bis 17:00 Uhr
  • WO: Bauplatz-Wiese (Zufahrt über den Angerweg 2, 4694 Ohlsdorf)


Wir sind persönlich für Sie da: Haben Sie Fragen zum Projekt, zu den Grundrissen oder zum Bauablauf? Wir beantworten sie Ihnen gerne am 10.4. direkt vor Ort in ungezwungener Atmosphäre.





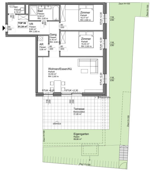
Zur Wohnung:



Top 6 ist eine großzügige 3-Zimmer-Wohnung im Erdgeschoss, die mit einem großen Garten und einer großzügigen Terrasse punktet. Der offene Wohn-Küchenbereich schafft eine moderne und lichtdurchflutete Atmosphäre. Mit einer attraktiven Ost-West-Ausrichtung profitieren Sie von optimaler Belichtung. Das Badezimmer ist mit sowohl einer Dusche als auch einer Badewanne ausgestattet, das WC ist separat. Ein Abstellraum mit Waschmaschinenanschluss bietet praktischen Stauraum.



Zum Projekt:



Wer zeitgemäßes Wohnen in Gehweite zum Ohlsdorfer Zentrum sucht, wird am Angerweg fündig. Das Projekt umfasst 12 hochwertige Wohnungen, die durch ihre intelligente Raumaufteilung und die ruhige, aber dennoch zentrale Lage überzeugen. Ein ideales Zuhause für alle, die kurze Wege im Alltag lieben.



Was Sie erwartet:
• Zentrale Lage: In wenigen Gehminuten mitten im Ortskern – Einkauf, Schule, Nahversorger direkt ums Eck

• Moderne Ausstattung: Edle Parkettböden, stilvolle Fliesen



• Fußbodenheizung & energieeffiziente Luftwärmepumpe

• Wohnkomfort für jeden Anspruch: Von 42 m² bis 110 m² – ideal für Singles, Paare oder Familien

• Großzügige Terrassen oder Eigengärten für entspannte Stunden im Grünen

• Komfortabel & barrierefrei: Lift in alle Etagen, Tiefgarage für stressfreies Parken

• Gestaltungsfreiraum: Jetzt noch mitplanen und Ihre Wünsche einbringen

• Baustart bei 50 % Verkaufsquote – jetzt vor Baustart sichern und noch mitgestalten!



Lebenswert wohnen – mitten in Ohlsdorf

Wohnen Sie naturnah und dennoch bestens angebunden: Die Autobahn erreichen Sie in wenigen Minuten, Erholung bieten Traunsee, Traunstein und zahlreiche Freizeitangebote der Region.



Direkt vom Bauträger – provisionsfrei für Käufer

Jetzt informieren und Wohntraum sichern:

📞 Persönlich berät Sie Sabine Wenzel (0676 300 40 62) und Christian Sammer (0650 31 71 003)

🌐 Alle Details unter: www.angerweg-zwei.at



Zuhause ankommen. Im Herzen von Ohlsdorf.

Infrastruktur / Entfernungen

Gesundheit
Arzt <500m
Apotheke <2.500m
Krankenhaus <5.500m
Klinik <3.000m

Kinder & Schulen
Schule <500m
Kindergarten <500m

Nahversorgung
Supermarkt <500m
Bäckerei <500m
Einkaufszentrum <4.500m

Sonstige
Bank <500m
Geldautomat <500m
Post <500m
Polizei <3.000m

Verkehr
Bus <500m
Straßenbahn <4.500m
Bahnhof <4.000m
Autobahnanschluss <4.000m
Flughafen <5.500m

Angaben Entfernung Luftlinie / Quelle: OpenStreetMap

Eckdaten Objektnr. 1068/4960

Art: Wohnung
Land: Österreich
Baujahr: 2025
Zustand: Erstbezug
Kaufpreis: 495.900,00
Wohnfläche: 91,54 m²
Zimmer: 3
Bäder: 1
WC: 1
Terrassen: 1
Garten: 89,86 m²
Keller: 3,86 m²
Heizwärmebedarf: 40,00 kWh/m²a
Immobilie merken Exposé

Ausstattung

Erdwärme, Personenaufzug


Immobilie anfragen


Ihre persönliche Beratung

Traunsee Immobilien

Christian Sammer

Traunsee Immobilien

T +43 7612 89 232

H +43 650 31 71 003

F +43 7612 89 232-30