Niedrigenergie-Ziegelmassiv Doppelhaus | LWP, PV-Anlage | 4 Zimmer | Terrasse, Eigengarten & 2 Parkplätzen

Haus - Doppelhaushälfte, 2540 Bad Vöslau , Kottingbrunner Straße


Bad Vöslau liegt südlich von Wien im Bezirk Baden und vereint genau das, was Familien im Alltag schätzen: einen schönen Ortskern, ein gewachsenes Umfeld und ein Landschaftsbild, das von Wiesen- und Waldflächen geprägt ist. Hier fühlt sich Wohnen angenehm entspannt an – mit viel Grün- und Freiraumgefühl und gleichzeitig der Sicherheit, dass das tägliche Leben gut organisiert werden kann. Das Projekt befindet sich in der Liliengasse/Kornblumengasse in 2540 Bad Vöslau – in einer Wohnlage, die Ruhe und praktische Nähe zu den wichtigen Dingen verbindet. Für Familien ist besonders angenehm, dass Einkaufsmöglichkeiten, Kindergarten, Volksschule und auch eine Sport-Mittelschule in der Nähe liegen. Das spart Zeit, reduziert Fahrstress und macht spontane Nachmittage leichter – ob Spielplatz, Training oder einfach noch schnell etwas erledigen, bevor der Abend beginnt. Auch für die Gesundheit ist gut vorgesorgt: In Bad Vöslau und im Bezirk Baden stehen Apotheken und ärztliche Angebote zur Verfügung, und für weiterführende Versorgung profitieren Sie von der starken regionalen Struktur rund um Baden. Pendler freuen sich über echte Flexibilität. Mit dem Auto erreichen Sie Bad Vöslau über die Bundesstraße B17 sowie die A2 Südautobahn ab Wien-Stadtgrenze in rund 18 Minuten, je nach Verkehr. Wenn Sie auf das Auto verzichten möchten, bringt Sie der Regionalzug direkt nach Wien Hauptbahnhof in etwa 32 Minuten (mit S-Bahn- und U1-Anschluss) und nach Wien Meidling in etwa 26 Minuten (U6-Anschluss). Von Ihrem Famosahaus-Projekt gehen Sie zur Bahnstation circa 16 Minuten oder fahren rund 4 Minuten mit dem Auto – ideal, wenn Sie morgens schnell losmüssen und abends trotzdem ohne Umwege zuhause ankommen wollen. Und das Beste: Nach einem Arbeitstag wartet hier nicht nur „daheim“, sondern auch Freizeit vor der Haustür. Bad Vöslau ist ein guter Ausgangspunkt für Bewegung im Grünen und kleine Auszeiten zwischendurch – mit dem Wienerwald ganz nah, Spazier- und Wanderwegen sowie Zielen wie dem Harzberg und der Ruine Merkenstein, die sich perfekt für Familienausflüge eignen. Im Sommer sorgt das Thermalbad Bad Vöslau für Urlaubsgefühl im Alltag – kurz hin, abtauchen, durchatmen. So verbindet die Liliengasse in Bad Vöslau das, was man sich fürs Familienleben wünscht: kurze Wege, gute Anbindung und echte Naherholung – damit mehr Zeit bleibt für das, was wirklich zählt.

Beschreibung der Immobilie

Niedrigenergie-Ziegelmassiv Doppelhaus | LWP, PV-Anlage | 4 Zimmer | Terrasse, Eigengarten & 2 Parkplätzen

Wohnen am Rande des Wienerwalds



In der Kottingbrunnerstraße werden 8 Doppelhäuser für Familien errichtet, die draußen aufatmen und drinnen ankommen wollen. Für Nachmittage im Eigengarten, für Spielen unter freiem Himmel und für ruhige Abende auf der Terrasse. Massiv aus Ziegel gebaut, wohngesund und wertbeständig – ein Zuhause, das heute begeistert und dauerhaft Wert behält. Verwirklichen Sie hier Ihre Wohnträume!



Auf einen Blick:



  • 8 Doppelhäuser, kurz vor Bau – schnell Wunscheinheit sichern!
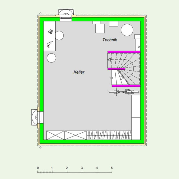
  • Bis zu 163 m² Nutzfläche auf 2-3 Ebenen (96 – 123 m² Wohnnutzfläche + bis zu 58 m² Vollunterkellerung beim Haustyp SKY²- technisch dicht)
  • Eigengarten mit Terrasse (ca. 12 m²) + 2 PKW-Abstellplätze
  • Niedrige Energiekosten: PV-Anlage, Luftwärmepumpe (Heizen & Kühlen), Fußbodenheizung, Fenster mit 3-fach Verglasung, Außenbeschattung mit Rollläden und Raffstores
  • Hochwertige Ziegelmassivbauweise & TÜV AUSTRIA Baubegleitung
  • Zusammenarbeit mit namhaften regionalen Partnerbetrieben (u.a. Leitl, Rekord, Vaillant, Bramac, Knauf, Wienerberger)  
  • Fixpreis & Finanzierungshilfe, Wohnbauförderung möglich
  • Direkt vom Bauträger, ohne Maklerkosten, ohne Grundbuch-Eintragungsgebühr (bis 01.07.2026 lt. Befreiung von der Grundbuch-Eintragungsgebühr bei Erwerb von Wohnraum - BMJ)
  • Strom-, Wasser- & Kanalanschlussgebühren sowie Aufschließungsabgabe im Kaufpreis inkludiert
  • 3 Jahren Gewährleistung ab Schlüsselübergabe
  • Preise ab € 569.900




Der Haustyp „Sky²“ steht für kompaktes Wohnen mit großzügigem Gefühl: Auf drei Ebenen verteilen sich rund 104 m² Wohnfläche und 58 m³ Kellerfläche – durchdacht geplant und angenehm offen. Mittelpunkt des Hauses ist die helle Wohnküche, die direkt auf die 12 m² große Terrasse und in den sonnigen Garten führt. Ein Ort für gemeinsames Kochen, Spielen, Ankommen – und für Tage, die sich nach Zuhause anfühlen.



Die Vollunterkellerung schafft wertvollen Raum für alles, was im Familienalltag Platz braucht: Stauraum, Vorräte, Hobby oder Fitness. Drei Schlafzimmer bieten Rückzugsmöglichkeiten für jedes Familienmitglied. Im Obergeschoss sorgt eine Raumhöhe von bis zu 3,50 m für spürbare Weite und ein besonders luftiges Wohngefühl. Massiv in Ziegelbauweise errichtet und ausgestattet mit Luftwärmepumpe, Fußbodenheizung und PV-Anlage, verbindet „Sky²“ nachhaltigen Komfort mit niedrigeren Energiekosten. Zwei Parkplätze sind inklusive – weil ich besser wohnen will.



Das Haus wird belagsfertig übergeben – die Fertigstellung kann in Eigenregie erfolgen oder nach Übergabe durch professionelle Handwerksbetriebe. Eine Firmenliste ist auf Anfrage bei der Kaufberatung erhältlich.



Jetzt unverbindlich informieren und Finanzierungsmöglichkeiten für den Weg ins Eigenheim entdecken!







Famosahaus - Qualität und Erfahrung seit mehr als 25 Jahren.

Einziehen & Wohlfühlen! Provisionsfrei, direkt vom Bauträger!





Disclaimer – Visualisierungen / KI-bearbeitete Fotos:
Die dargestellten Schaubilder wurden teilweise digital bearbeitet bzw. mithilfe künstlicher Intelligenz visualisiert. Sie dienen ausschließlich der beispielhaften Darstellung von Einrichtungs- und Gestaltungsmöglichkeiten und stellen keinen verbindlichen Ausführungs- oder Lieferumfang dar. Maßgeblich für die tatsächliche Ausführung sind ausschließlich die vertraglichen Vereinbarungen, Bau- und Ausstattungsbeschreibungen sowie die genehmigten Pläne. Abweichungen in Ausstattung, Materialien, Farben, Möblierung oder Bepflanzung sind möglich.

Infrastruktur / Entfernungen

Gesundheit
Arzt <750m
Apotheke <750m
Klinik <5.500m
Krankenhaus <6.000m

Kinder & Schulen
Schule <250m
Kindergarten <750m

Nahversorgung
Supermarkt <1.000m
Bäckerei <750m
Einkaufszentrum <3.500m

Sonstige
Bank <750m
Geldautomat <750m
Post <750m
Polizei <750m

Verkehr
Bus <250m
Bahnhof <2.000m
Autobahnanschluss <1.500m
Straßenbahn <5.750m
Flughafen <4.000m

Angaben Entfernung Luftlinie / Quelle: OpenStreetMap

Eckdaten Objektnr. 2165/57

Art: Haus - Doppelhaushälfte
Land: Österreich
Baujahr: 2026
Zustand: Erstbezug
Alter: Neubau
Kaufpreis: 619.900,00
Wohnfläche: 104,00 m²
Grundstücksfl.: 270,00 m²
Zimmer: 4
Bäder: 1
WC: 2
Terrassen: 1
Stellplätze: 2
Garten: 160,00 m²
Keller: 58,00 m²
Heizwärmebedarf:  B  29,50 kWh/m²a
fGEE:  A+  0,58
Immobilie merken Exposé

Ausstattung

Fußbodenheizung, Parkplatz


Immobilie anfragen


Ihre persönliche Beratung

Famosahaus Bauträger GmbH

Famosahaus Bauträger GmbH

Famosahaus Bauträger GmbH

T +43 1 817 18 07