Telfs: Traumhaftes Wohnhaus in begehrtester Lage

Haus , 6410 Telfs


Der Bungalow in einer der besten Lagen von Telfs beeindruckt mit einem traumhaften Ausblick und einer außergewöhnlich ruhigen Wohnumgebung. Dennoch profitieren Sie von einer hervorragenden Infrastruktur: Einrichtungen des täglichen Bedarfs wie Arzt, Apotheke, Schule und Kindergarten befinden sich in unmittelbarer Nähe und sind schnell erreichbar. Diese ideale Kombination aus Ruhe, Komfort und bester Versorgung macht die Lage besonders attraktiv.

Beschreibung der Immobilie

Telfs: Traumhaftes Wohnhaus in begehrtester Lage

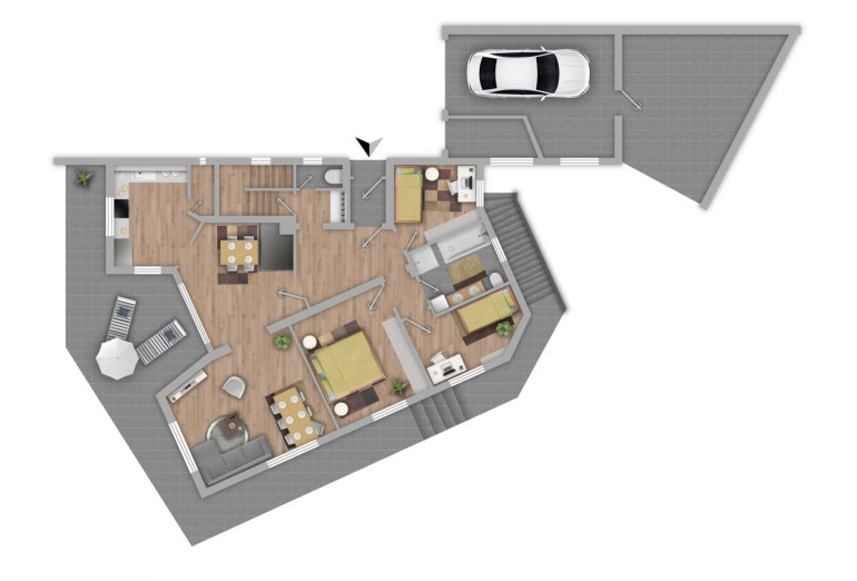
Dieses attraktive Einfamilienhaus begeistert durch seine durchdachte Raumaufteilung und die hochwertige Ausstattung. Parkettböden, pflegeleichte Fliesen und Kunststoffböden verleihen den Wohnräumen ein harmonisches und einladendes Ambiente. Die praktische Einbauküche lädt zum gemeinsamen Kochen ein, während das Badezimmer mit Fenster und Badewanne wohltuenden Komfort bietet.



Mit nur wenigen Handgriffen lässt sich das Haus wieder zum Strahlen bringen. Besonders hervorzuheben ist der großzügige Keller, der ideal für alle ist, die viel Stauraum benötigen oder zusätzlichen Platz für Hobby und Lagerung schätzen.



Die sonnige Terrasse sowie der liebevoll angelegte Garten bieten den perfekten Rahmen für entspannte Stunden im Freien. Eine Garage und drei weitere Stellplätze sorgen dafür, dass Ihre Fahrzeuge sicher und bequem untergebracht sind. Der herrliche Berg- und Fernblick verleiht dieser Immobilie einen ganz besonderen Wohlfühlcharakter.



Das Grundstück ist bereits grenzvermessen und im Grenzkataster eingetragen.

Widmung: Wohngebiet §38(1).

 




Der Vermittler ist als Doppelmakler tätig.

Infrastruktur / Entfernungen

Gesundheit
Arzt <1.000m
Apotheke <500m

Kinder & Schulen
Schule <1.000m
Kindergarten <1.000m
Höhere Schule <8.000m

Nahversorgung
Supermarkt <500m
Bäckerei <500m
Einkaufszentrum <1.500m

Sonstige
Bank <500m
Geldautomat <500m
Post <1.500m
Polizei <1.500m

Verkehr
Bus <500m
Bahnhof <1.500m
Autobahnanschluss <1.500m

Angaben Entfernung Luftlinie / Quelle: OpenStreetMap

Eckdaten Objektnr. 1729/91

Art: Haus
Land: Österreich
Baujahr: 1991
Zustand: Gepflegt
Kaufpreis: 885.000,00
Provision: 3% des Kaufpreises zzgl. 20% USt.
Wohnfläche: 106,80 m²
Nutzfläche: 223,80 m²
Grundstücksfl.: 628,00 m²
Bäder: 1
WC: 2
Terrassen: 1
Stellplätze: 3
Keller: 117,00 m²
Heizwärmebedarf:  F  220,40 kWh/m²a
fGEE:  E  2,64
Immobilie merken Exposé

Ausstattung

Kunststoffboden, Parkett, Fliesen, Öl, Zentralheizung, Einbauküche, Bad mit Fenster, Badewanne, Dusche, Garage, Parkplatz


Immobilie anfragen


Ihre persönliche Beratung

Tirol Trend Immobilien

Ing. Lukas Felbermayer

Tirol Trend Immobilien

T +43 664 149 31 22