Provisionsfrei: Renovierter 74m² Altbau mit Einbauküche - 1020 Wien

Wohnung , 1020 Wien


Große Mohrengasse

Beschreibung der Immobilie

Provisionsfrei: Renovierter 74m² Altbau mit Einbauküche - 1020 Wien

Schöner 74m² Altbau mit Einbauküche und 2 Zimmern in Toplage! 



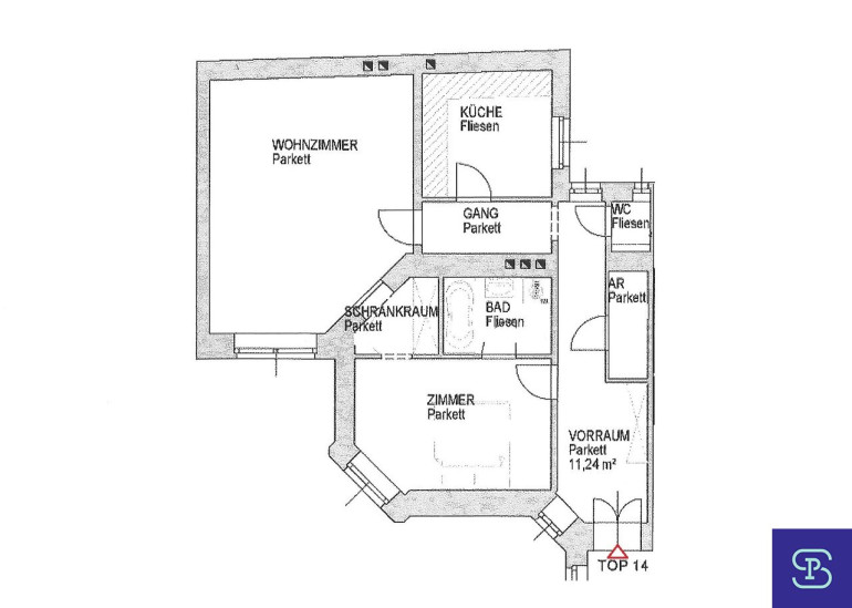
Diese schöne Wohnung befindet sich im 2. Liftstock (nicht barrierefrei!) eines renovierten Altbaus in zentrumsnaher Ruhelage in der Großen Mohrengasse. Die Wohnung ist zu den ruhigen Innenhöfen ausgerichtet und besteht aus Wohnzimmer, Schlafzimmer mit Schrankraum, Küche, zentralem Vorraum, Badezimmer, Abstellraum und WC,. 



Achtung: Die Wohnung ist NICHT WG-tauglich!



Ausstattung: Vor einigen Jahren aufwendig renovierter Altbau mit Einbauküche inkl. Geräten, Echtholz-Parketten, Gasetagenheizung, Fliesenbad mit Badewanne, Waschmaschinenanschluss, Kunststofffenster mit Mehrfachverglasung, Lift (nicht barrierefrei!), Kabel-TV- und Internet-Vorbereitung, Sprechanlage,.



Sehr gute und zentrale Lage in der Großen Mohrengasse, in Gehdistanz zum Karmelitermarkt, zum Augarten und zum Nestroyplatz. Auch die Innenstadt und der Prater sind fußläufig sehr gut erreichbar. Ausgezeichnete Infrastruktur durch zahlreiche Einkaufsmöglichkeiten in unmittelbarer Umgebung und gute öffentliche Verkehrsanbindung. In Gehdistanz erreichbar sind u.a. die U-Bahnlinien U2, U1, die Straßenbahnlinie 2 und Autobus 5A, 5B,.



Die Wohnung wird ab sofort in befristeter Hauptmiete (5 Jahre) vermietet.

Gesamtmiete inkl. Bk, Lift und 10% USt. € 1.217,48 
(HMZ € 888,12 + IM € 50,- + Bk € 143,58 + Lift € 24,19 + 10% USt. € 110,59 + Manip. € 1,-)

Kaution € 3.660,-



KONTAKT: Anfragen bitte nur per Email-Anfragefunktion. Keine telefonische Terminvergabe!



Besuchen Sie für unsere weiteren Angebote bitte auch unsere Homepage: www.sitarz.at



Wichtige Information: Es handelt sich hier um ein unverbindliches und für Wohnungssuchende völlig kostenfreies Angebot! Wir bedanken uns für Ihre Anfrage, weisen jedoch darauf hin, dass durch Ihre Anfrage kein Anspruch auf eine Dienstleistung durch unser Unternehmen besteht. Wir ersuchen ausdrücklich um Verständnis, dass wir aufgrund überbordender Anfragen für Mietwohnungen nur dann antworten können, wenn für das angefragte Mietobjekt noch freie Besichtigungstermine verfügbar sind. Erhalten Sie keine Antwort, stehen für das angefragte Mietobjekt keine Besichtigungsmöglichkeiten mehr zur Verfügung, oder es liegen bereits ausreichend viele verbindliche Bewerbungen vor.  



Optional zur kostenlosen Variante, haben Wohnungssuchende gemäß aktuell geltender Gesetzesbestimmung (Bestellerprinzip) auch die Möglichkeit, ein Maklerunternehmen kostenpflichtig (2MM zuzügl. 20% Ust.) mit der Objektsuche zu beauftragen, um in Folge eine zu bezahlende, individuelle Dienstleistung zu erhalten, sofern vom Immobilienmakler ein den Suchkriterien entsprechendes Mietobjekt gefunden wird.


Wir weisen darauf hin, dass zwischen dem Vermittler und dem zu vermittelnden Dritten ein familiäres oder wirtschaftliches Naheverhältnis besteht.


Der Immobilienmakler erklärt, dass er – entgegen dem in der Immobilienwirtschaft üblichen Geschäftsgebrauch des Doppelmaklers – einseitig nur für den Vermieter tätig ist.

Infrastruktur / Entfernungen

Gesundheit
Arzt <500m
Apotheke <500m
Klinik <500m
Krankenhaus <500m

Kinder & Schulen
Schule <500m
Kindergarten <500m
Universität <500m
Höhere Schule <1.000m

Nahversorgung
Supermarkt <500m
Bäckerei <500m
Einkaufszentrum <1.500m

Sonstige
Geldautomat <500m
Bank <500m
Post <500m
Polizei <1.000m

Verkehr
Bus <500m
U-Bahn <500m
Straßenbahn <500m
Bahnhof <500m
Autobahnanschluss <3.000m

Angaben Entfernung Luftlinie / Quelle: OpenStreetMap

Eckdaten Objektnr. 7775

Art: Wohnung
Land: Österreich
Baujahr: 1900
Zustand: Teil_vollrenoviert
Alter: Altbau
Gesamtmiete: 1.217,48
Kaltmiete (netto): 938,12 €
Kaltmiete: 1.106,89 €
Provision: Gemäß Erstauftraggeberprinzip bezahlt der Abgeber die Provision.
Betriebskosten: 143,58 €
MwSt Gesamt: 110,59 €
Wohnfläche: 74,00 m²
Zimmer: 2
Bäder: 1
WC: 1
Heizwärmebedarf:  E  157,90 kWh/m²a
fGEE:  E  3,18
Immobilie merken Exposé

Ausstattung

Parkett, Fliesen, Gas, Etagenheizung, Einbauküche, Personenaufzug, Badewanne, Kabel/Satelliten-TV


Immobilie anfragen


Ihre persönliche Beratung

Sitarz & Partner Immobilien GmbH

Anna Sitarz

Sitarz & Partner Immobilien GmbH

T +43 664 403 83 83