Günstige Bürofläche in Urfahr - hell & offen mit bester Infrastruktur!
Büro / Praxis
- Bürofläche,
4040
Linz
,
Hauptstraße 4
Das Donaucenter liegt zentral im Linzer Stadtteil Urfahr an der Hauptstraße, einer belebten Einkaufs- und Geschäftsstraße. In unmittelbarer Umgebung befinden sich zahlreiche Einzelhandelsgeschäfte, Gastronomiebetriebe und Dienstleister. Die Straßenbahnlinien 1, 2, 3 und 4 sowie mehrere Buslinien halten in direkter Nähe und bieten eine schnelle Anbindung an die Innenstadt. Für den Individualverkehr ist das Donaucenter über die A7 in nur 10 Minuten erreichbar, Parkmöglichkeiten finden sich in der Umgebung sowie in der nahegelegenen Lentia-City-Tiefgarage. Durch diese zentrale Lage und die ausgezeichnete Verkehrsanbindung stellt das Donaucenter einen attraktiven Standort für gewerbliche Nutzungen dar.
Beschreibung der Immobilie
Günstige Bürofläche in Urfahr - hell & offen mit bester Infrastruktur!
Gut angebundene & sehr günstige Bürofläche nahe Nibelungenbrücke / Neues RathausDas Büro befindet sich im Donau Center und ist somit der ideale ruhige Ort zum arbeiten, und dennoch nur 50m Gehweite von der Rudolfstraße entfernt bestens erreichbar.
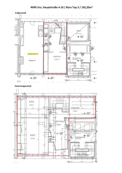
Die Gesamtfläche von 192,20 m² teilt sich auf auf ca. 46 m² im EG und ca. 146 m² im 1.OG - eine interne Treppe verbindet die beiden Etagen, sodaß Sie ungestört von einer Ebene zur anderen gelangen.
Das Donau Center ist ein ansprechender Businesspark mit ausgezeichneter Verkehrsanbindung. Nahversorger und Gastronomie befinden sich in unmittelbarer Nähe, eine Bäckerei sogar im gleichen Objekt.
Profitieren Sie von der Infrastruktur, der Nähe zum AEC sowie der Linzer Innenstadt und mieten Sie jetzt an!
Eckdaten Objektnr. 505250153_6
| Art: | Büro / Praxis - Bürofläche |
| Land: | Österreich |
| Baujahr: | 1990 |
| Gesamtmiete: | 2.578,56 € |
| Kaltmiete (netto): | 1.345,40 € |
| Miete / m²: | 7,00 € |
| Provision: | 3 BMM zzgl. 20% USt. |
| Betriebskosten: | 803,40 € |
| Bürofläche: | 192,20 m² |
Ausstattung
Fernwärme
Ihre persönliche Beratung
Dieser Makler ist ein offizielles Mitglied des IR – ir.at Mehr Erfahren
