Charmantes Stadthaus mit Innenhöfen in Köflach
Haus
,
8580
Köflach
Beschreibung der Immobilie
Charmantes Stadthaus mit Innenhöfen in Köflach
In der schönen Stadtgemeinde Köflach präsentiert sich dieses Stadthaus mit einer Nutzfläche von ca. 220 m² auf einer Grundfläche von 305 m². Die Liegenschaft überzeugt durch ihren besonderen Charakter sowie vielseitige Nutzungsmöglichkeiten.
Bereits beim Betreten des Anwesens gelangt man in einen geschützten Innenhof mit Nebengebäude und Parkmöglichkeit. Von dort führt der Weg um die Ecke in einen zweiten Innenhofbereich, der sich hervorragend als gemütlicher Sitz- oder Gartenbereich gestalten lässt und dem Haus eine besonders private Atmosphäre verleiht.
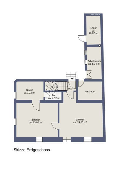
Vom Innenhof aus sind mehrere Bereiche direkt zugänglich: ein Lagerraum, ein Arbeitsraum, der Heizraum sowie der Eingang zum Wohnhaus.
Im Erdgeschoss befindet sich ein besonders charaktervoller Wohnbereich mit zwei großen Wohnzimmern (jeweils ca. 24 m²), die durch ihre schönen Gewölbedecken einen einzigartigen Charme ausstrahlen. Zusätzlich gibt es eine Küche sowie ein kleines Badezimmer.
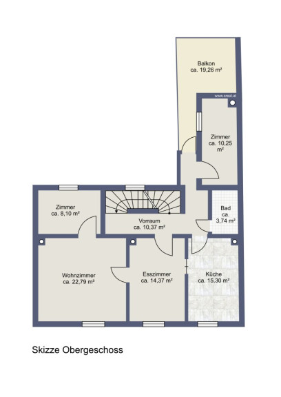
Das erste Obergeschoss bietet eine großzügige Küche mit etwa 15 m², ein Esszimmer, ein Wohnzimmer, ein Badezimmer sowie zwei weitere Zimmer, die flexibel als Schlaf-, Kinder-, Gäste- oder Arbeitszimmer genutzt werden können. Von dieser Etage aus gelangt man außerdem auf den überdachten ca. 19 m² großen Balkon, der zusätzlichen Freiraum im Außenbereich bietet.
Im Dachgeschoss befinden sich vier weitere Zimmer, die vielfältige Nutzungsmöglichkeiten bieten. Ergänzt wird diese Etage durch ein Badezimmer mit Dusche und WC.
Sanierungen und Modernisierungen:
Generalsanierung des Hauses: 1990
Erneuerung Wasser- und Abwassersystem: 2014
Neues Dach: 2014
Neue Fenster im Dachgeschoss: 2014
Diese Immobilie eignet sich ideal für große Familien, Wohnen und Arbeiten unter einem Dach oder kreative Wohnkonzepte. Die Kombination aus historischem Charakter, großzügiger Raumaufteilung und geschützten Innenhöfen macht dieses Haus zu einer besonderen Gelegenheit in Köflach.
Infrastruktur / Entfernungen
Gesundheit
Arzt <500m
Apotheke <500m
Klinik <3.000m
Krankenhaus <5.000m
Kinder & Schulen
Schule <500m
Kindergarten <500m
Nahversorgung
Supermarkt <500m
Bäckerei <500m
Einkaufszentrum <4.000m
Sonstige
Geldautomat <500m
Bank <500m
Post <500m
Polizei <500m
Verkehr
Bus <500m
Bahnhof <500m
Angaben Entfernung Luftlinie / Quelle: OpenStreetMap
Eckdaten Objektnr. 961/35964
| Art: | Haus |
| Land: | Österreich |
| Baujahr: | 1900 |
| Kaufpreis: | 330.000,00 € |
| Provision: | 3% des Kaufpreises zzgl. 20% USt. |
| Heizkosten: | 325,00 € |
| Nutzfläche: | 220,00 m² |
| Grundstücksfl.: | 305,00 m² |
| Bäder: | 3 |
| WC: | 3 |
| Balkone: | 1 |
| Heizwärmebedarf: | E 160,00 kWh/m²a |
| fGEE: | D 2,00 |
Ausstattung
Zentralheizung, Einbauküche, Ostbalkon, Dusche, Parkplatz
Ihre persönliche Beratung
Dieser Makler ist ein offizielles Mitglied des IR – ir.at Mehr Erfahren

