Unbefristet vermietete 3-Zimmer-Wohnung in Wien-Währing

Wohnung , 1180 Wien


Diese Wohnung befindet sich in der Nähe des AKH Wien.

Beschreibung der Immobilie

Unbefristet vermietete 3-Zimmer-Wohnung in Wien-Währing

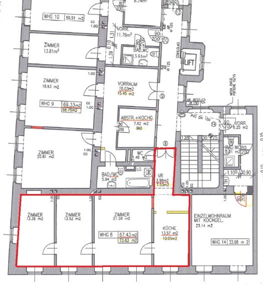
Diese 3-Zimmer-Wohnung im 18. Bezirk ist unbefristet vermietet. Die Nettomiete beträgt ca. 330 Euro. Der Mieter ist ca. 70 Jahre alt.



Die Wohnung verfügt über einen Vorraum, eine Küche, einem WC, ein Wohnzimmer sowie zwei Schlafzimmer. Ein Badezimmer gibt es nicht, eine Duschgelegenheit befindet sich in der Küche. Ein eigenes Kellerabteil ist der Wohnung zugewiesen.

Noch nichts gefunden? Wir informieren Sie über geeignete Immobilienangebote noch vor allen anderen.
Legen Sie jetzt Ihren individuellen Suchagenten unter folgendem Link an. Wir schicken Ihnen passende Immobilien exklusiv vorab zu.

Suchagent anlegen - https://levanto.service.immo/registrieren/de


Wir weisen darauf hin, dass zwischen dem Vermittler und dem zu vermittelnden Dritten ein familiäres oder wirtschaftliches Naheverhältnis besteht.

Infrastruktur / Entfernungen

Gesundheit
Arzt <500m
Apotheke <500m
Klinik <500m
Krankenhaus <1.000m

Kinder & Schulen
Schule <500m
Kindergarten <500m
Universität <1.000m
Höhere Schule <500m

Nahversorgung
Supermarkt <500m
Bäckerei <500m
Einkaufszentrum <1.000m

Sonstige
Geldautomat <500m
Bank <500m
Post <500m
Polizei <500m

Verkehr
Bus <500m
U-Bahn <1.000m
Straßenbahn <500m
Bahnhof <1.000m
Autobahnanschluss <2.500m

Angaben Entfernung Luftlinie / Quelle: OpenStreetMap

Eckdaten Objektnr. 2189/46

Art: Wohnung
Land: Österreich
Alter: Altbau
Kaufpreis: 375.000,00
Kaufpreis / m²: 5.561,32 €
Provision: 3% des Kaufpreises zzgl. 20% USt.
Wohnfläche: 67,43 m²
Zimmer: 3
WC: 1
Heizwärmebedarf:  C  54,00 kWh/m²a
Immobilie merken Exposé

Ausstattung

Parkett, Gas, Etagenheizung, Personenaufzug


Immobilie anfragen


Ihre persönliche Beratung

Levanto Immobilien GmbH & Co KG

Florian Enner

Levanto Immobilien GmbH & Co KG

T +43 676 552 47 52

H +43 676 552 47 52