CLOUD 9 | Eigentumswohnungen im 19. Bezirk.

Wohnung - Etage, 1190 Wien,Döbling , Agnesgasse


Beschreibung der Immobilie

CLOUD 9 | Eigentumswohnungen im 19. Bezirk.

Ein unbeschwertes Leben führen. In luxuriösen Eigentumswohnungen etwas über der Stadt. Im grünen Sievering. Wo Heurige zum Genuss verführen und Weingärten zum Spazieren einladen. Der Wienerwald ist nicht weit. Und die Aussicht über Wien ist einfach himmlisch.



Zu Hause im grünen Wien-Sievering:

Cloud 9 liegt an einem sanften Hang in der Agnesgasse 9 in WienSievering. Zwischen gepflegten Villen und exquisiten Gärten. Die Wiener Innenstadt ist nur 6 km entfernt. Und die nächste Bushaltestelle liegt gleich ums Eck. Die 11 Neubauwohnungen mit Flächen von ca. 60 bis 170 m² sind großzügige Wohnoasen, die viel Individualität zulassen. Jede Wohnung hat ihren eigenen Bereich unter freiem Himmel – einen Eigengarten, eine Terrasse oder einen Balkon. Die automatische Kennzeichenerkennung öffnet das Tor zur hauseigenen Tiefgarage, in der sich 11 Pkw-Stellplätze befinden, die auf Wunsch mit ELadestationen versehen werden können.



Ökologisch wertvoll gebaut:

Cloud 9 verbindet Nachhaltigkeit, Wohnkomfort und niedrige Energiekosten. Die hauseigene Photovoltaikanlage produziert umweltfreundlichen Sonnenstrom. Geheizt wird mit einer Luftwärmepumpe. Die Deckenkühlung sorgt für angenehme Temperaturen im Sommer. Und für die Gartenbewässerung gibt es eine eigene Regenwasserzisterne. So wird jede Wohnung zu einer sinnvollen Investition in die Zukunft.



Wohnen auf höchstem Niveau:

Wer mehr vom Leben erwartet, wird in Cloud 9 fündig. Das barrierefreie Gebäude ist hochwertig ausgestattet und bietet viele Wohlfühlextras. Vom einladenden und freundlichen Eingangsbereich über die Yoga- und Fitnesslounge mit einer eigenen Infrarotkabine bis hin zum Kneippbecken im Gemeinschaftsgarten. Der digitale Concierge organisiert gerne Massagen oder Personal Trainer, besorgt aber auch Lebensmittel, Karten für Veranstaltungen etc. – ein Anruf genügt. Außerdem sind Sie in nur ein paar Schritten mitten im Grünen. Der Stadtwanderweg 2, Fahrradwege und idyllische Laufstrecken erschließen wunderschöne Naturschauplätze. Im Wienerwald, auf dem Cobenzl und Am Himmel.

Infrastruktur / Entfernungen

Gesundheit
Arzt <1.000m
Apotheke <1.000m
Klinik <2.500m
Krankenhaus <2.750m

Kinder & Schulen
Schule <1.000m
Kindergarten <750m
Universität <2.250m
Höhere Schule <2.250m

Nahversorgung
Supermarkt <750m
Bäckerei <1.250m
Einkaufszentrum <4.000m

Sonstige
Geldautomat <1.250m
Bank <1.250m
Post <1.000m
Polizei <1.750m

Verkehr
Bus <250m
U-Bahn <3.500m
Straßenbahn <1.500m
Bahnhof <2.500m
Autobahnanschluss <4.000m

Angaben Entfernung Luftlinie / Quelle: OpenStreetMap

Eckdaten Objektnr. 2150/583153

Art: Wohnung - Etage
Land: Österreich
Kaufpreis: 997.000,00
Provision: Provision bezahlt der Abgeber.
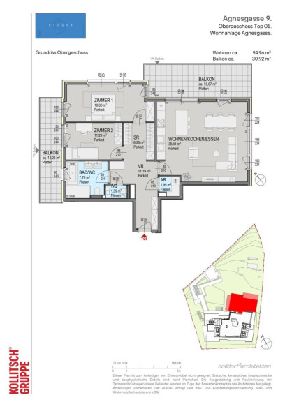
Wohnfläche: 94,96 m²
Zimmer: 3
Balkone: 2
Keller: 8,94 m²
Heizwärmebedarf:  B  27,09 kWh/m²a
fGEE:  A+  0,61
Immobilie merken Exposé

Ausstattung

Parkett, Fußbodenheizung, Personenaufzug, Kabel/Satelliten-TV, Tiefgarage, Sauna, Sporteinrichtungen


Immobilie anfragen


Ihre persönliche Beratung

Kollitsch Immobilien NW GmbH

KOLLITSCH Immobilien NW GmbH Ingo Zuzan

Kollitsch Immobilien NW GmbH

T +43 664 78 000 505