*71m² Praxis/Büro im Ärztezentrum in Feldkirchen b. Graz provisionsfreie Anmietung

Büro / Praxis , 8073 Feldkirchen bei Graz


Beschreibung der Immobilie

*71m² Praxis/Büro im Ärztezentrum in Feldkirchen b. Graz provisionsfreie Anmietung

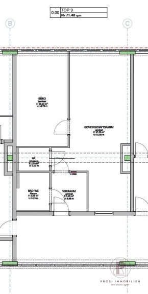
Die Top 9 im Obergeschoss des Ärztezentrums in Feldkirchen bei Graz bietet eine vielseitig nutzbare Praxis- oder Bürofläche mit ca. 71 m². Die zentrale Lage nahe dem Ortszentrum sorgt für eine gute Erreichbarkeit für Kunden, Patienten und Mitarbeiter. Besucherparkplätze stehen direkt beim Gebäude frei zur Verfügung.



Raumaufteilung:




  • Büro / Behandlungsraum ca. 20 m²



  • Gemeinschaftsraum ca. 38 m²



  • Abstellraum ca. 7 m²



  • Bad/WC ca. 5 m²



  • Vorraum ca. 6 m²




Gesamt netto: € 1.214,77 inkl. BK/HZ exkl. Ust. 




  • Kaution: 3 BMM



  • Mieter Provisionsfrei





✅ Ideal für Praxis, Therapie, Gesundheitsberufe oder Büro.




Kontakt & Besichtigung:
Haben wir Ihr Interesse geweckt?

Kontaktieren Sie uns gerne für weitere Informationen oder zur Vereinbarung eines Besichtigungstermins:



Kerstin Prosi



📞 +43 664 43 77 087
📧 office@prosi-immobilien.at
🌐 www.prosi-immobilien.at





Die bereitgestellten Informationen stammen vom Eigentümer und/oder dritten Personen und wurden sorgfältig zusammengetragen.

Für die Richtigkeit und Vollständigkeit wird jedoch keine Haftung übernommen. Angaben können gerundet oder geschätzt sein.

Dieses Angebot ist freibleibend und unverbindlich; Irrtümer sowie Änderungen bleiben vorbehalten. Eine Weitergabe oder Vervielfältigung

ist nur mit ausdrücklicher Zustimmung der Prosi Immobilien e.U. zulässig.



Um Immobilien bestmöglich darzustellen, nutzen wir bei ausgewählten Bildern KI-Optimierungen.

Diese dienen ausschließlich der visuellen Aufbereitung und können geringfügig vom realen Erscheinungsbild abweichen.





Infrastruktur / Entfernungen

Gesundheit
Arzt <500m
Apotheke <500m
Klinik <6.000m
Krankenhaus <4.000m

Kinder & Schulen
Schule <500m
Kindergarten <1.500m
Universität <5.500m
Höhere Schule <6.000m

Nahversorgung
Supermarkt <500m
Bäckerei <500m
Einkaufszentrum <2.500m

Sonstige
Geldautomat <500m
Bank <500m
Post <500m
Polizei <500m

Verkehr
Bus <500m
Straßenbahn <2.500m
Autobahnanschluss <500m
Bahnhof <500m
Flughafen <3.000m

Angaben Entfernung Luftlinie / Quelle: OpenStreetMap

Eckdaten Objektnr. 1830/306

Art: Büro / Praxis
Land: Österreich
Alter: Neubau
Kaltmiete (netto): 771,98 €
Kaltmiete: 1.121,28 €
Betriebskosten: 349,30 €
Heizkosten: 93,49 €
Bürofläche: 71,48 m²
Zimmer: 2
Bäder: 1
WC: 1
Heizwärmebedarf: 72,80 kWh/m²a
Immobilie merken Exposé

Ausstattung

Parkplatz


Immobilie anfragen


Ihre persönliche Beratung

Prosi Immobilien e.U.

Kerstin Prosi

Prosi Immobilien e.U.

H +43 664 43 77 087