KFZ Werkstatt im Industriegebiet Liesing

Halle / Lager / Produktion - Werkstatt, 1230 Wien


Lage und Infrastruktur: Das Industriezentrum Liesing zählt zu den wichtigsten Wirtschaftsstandorten im Süden Wiens. Die Werkstatt ist sowohl mit dem Auto als auch öffentlich optimal erreichbar (Anbindung an A2, A23, S1, B17 Buslinien in der Nähe). In unmittelbarer Umgebung befinden sich zahlreiche Gewerbebetriebe, Zulieferer und potenzielle Geschäftspartner.

Beschreibung der Immobilie

KFZ Werkstatt im Industriegebiet Liesing

Moderne KFZ-Werkstatt in erstklassiger Lage – Industriezentrum Wien Liesing



Objektbeschreibung:

Zur Vermietung gelangt eine voll ausgestattete KFZ-Werkstatt im begehrten Industriezentrum Wien Liesing. Die Immobilie bietet ideale Voraussetzungen für den sofortigen Start oder die Erweiterung eines bestehenden KFZ-Betriebs. Die Werkstatt befindet sich in einem etablierten Gewerbegebiet mit hervorragender Infrastruktur und ausgezeichneter Verkehrsanbindung.



Highlights der Immobilie:



Top-Lage im Industriezentrum Wien Liesing



Gute Sichtbarkeit und frequentierte Umgebung



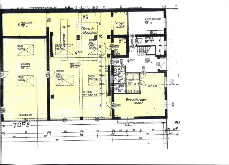
Ca. 540 m² Nutzfläche



Mehrere Einfahrtstore, auch für LKW geeignet



Hebebühnen und Werkstatteinrichtung (optional – je nach Vereinbarung)



Lackierhalle am Gelände vorhanden



Sanitär- und Sozialräume vorhanden



Verkaufsflächen integriert



10 Parkplätze auf Eigengrund



Mietkonditionen:



Miete: 9.000.- netto



Betriebskosten: 500.- netto



Kaution: 3 Brutto Monatsmieten



Verfügbar ab: Sofort



Besichtigung und Kontakt:

Überzeugen Sie sich selbst von dieser attraktiven Gewerbeimmobilie. Gerne stehen wir für eine persönliche Besichtigung zur Verfügung.



Herr Martin MELCHER 0677 617 324 39

Der Vermittler ist als Doppelmakler tätig.

Infrastruktur / Entfernungen

Gesundheit
Arzt <1.500m
Apotheke <1.000m
Klinik <1.500m
Krankenhaus <2.500m

Kinder & Schulen
Schule <1.500m
Kindergarten <500m
Universität <3.500m
Höhere Schule <4.500m

Nahversorgung
Supermarkt <500m
Bäckerei <2.000m
Einkaufszentrum <1.000m

Sonstige
Geldautomat <1.000m
Bank <1.000m
Post <500m
Polizei <1.500m

Verkehr
Bus <500m
U-Bahn <2.500m
Straßenbahn <2.000m
Bahnhof <1.500m
Autobahnanschluss <1.000m

Angaben Entfernung Luftlinie / Quelle: OpenStreetMap

Eckdaten Objektnr. 1939/131573

Art: Halle / Lager / Produktion - Werkstatt
Land: Österreich
Baujahr: 1990
Zustand: Gepflegt
Kaltmiete (netto): 9.000,00 €
Kaltmiete: 9.500,00 €
Provision: 3 Bruttomonatsmieten zzgl. 20% USt.
Betriebskosten: 500,00 €
MwSt Gesamt: 1.900,00 €
Heizwärmebedarf:  D  114,00 kWh/m²a
fGEE:  D  1,65
Immobilie merken Exposé

Ausstattung

Hebebühne


Immobilie anfragen


Ihre persönliche Beratung

IMMOcontract Immobilien Vermittlung GmbH

Martin Melcher

IMMOcontract Immobilien Vermittlung GmbH

T +43 677 6173 2439

H +43 677 6173 2439