Neuvermietung nach Generalsanierung | Lager

Halle / Lager / Produktion - Lager, 1030 Wien


Nähe Rotundenbrücke, Erdberger Lände

Beschreibung der Immobilie

Neuvermietung nach Generalsanierung | Lager

Lagerfläche in Top-Zustand und sehr hell an der Erdberger Lände zu vermieten!



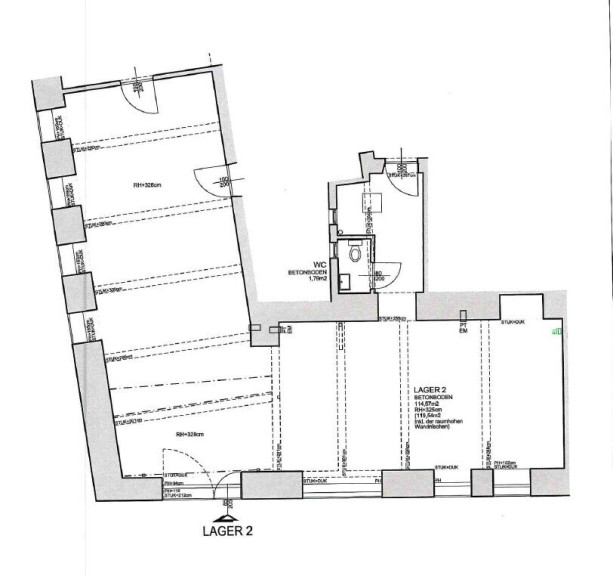
Zur Vermietung gelangt eine generalsanierte und sehr helle Lagerfläche im Souterrain in ausgezeichneter Lage an der Erdberger Lände.



Das Objekt präsentiert sich in einem sehr guten Zustand und eignet sich ideal als Lager- oder Abstellfläche. 



Wichtige Informationen:




  • Starkstromanschluss vorhanden



  • Eine Vermietung erfolgt ausschließlich an vorsteuerabzugsberechtigte Unternehmen (unecht steuerbefreite Interessenten können nicht berücksichtigt werden).



  • Es ist keine Heizmöglichkeit vorhanden.




Für weitere Details oder zur Vereinbarung eines Besichtigungstermins stehe ich Ihnen jederzeit gerne zur Verfügung.



Bernhard Friedrich, MSc
+43 660 117 9020

bf@finallyhome.at
www.finallyhome.at


Hinweis gemäß Energieausweisvorlagegesetz: Ein Energieausweis wurde vom Eigentümer bzw. Verkäufer, nach unserer Aufklärung über die generell geltende Vorlagepflicht, sowie Aufforderung zu seiner Erstellung noch nicht vorgelegt. Daher gilt zumindest eine dem Alter und der Art des Gebäudes entsprechende Gesamtenergieeffizienz als vereinbart. Wir übernehmen keinerlei Gewähr oder Haftung für die tatsächliche Energieeffizienz der angebotenen Immobilie.


Wir weisen darauf hin, dass zwischen dem Vermittler und dem zu vermittelnden Dritten ein familiäres oder wirtschaftliches Naheverhältnis besteht.


Der Vermittler ist als Doppelmakler tätig.

Infrastruktur / Entfernungen

Gesundheit
Arzt <500m
Apotheke <500m
Klinik <500m
Krankenhaus <1.000m

Kinder & Schulen
Schule <500m
Kindergarten <500m
Universität <1.000m
Höhere Schule <500m

Nahversorgung
Supermarkt <500m
Bäckerei <500m
Einkaufszentrum <500m

Sonstige
Geldautomat <500m
Bank <500m
Post <500m
Polizei <500m

Verkehr
Bus <500m
U-Bahn <500m
Straßenbahn <500m
Bahnhof <500m
Autobahnanschluss <1.500m

Angaben Entfernung Luftlinie / Quelle: OpenStreetMap

Eckdaten Objektnr. 1819/77

Art: Halle / Lager / Produktion - Lager
Land: Österreich
Zustand: Voll_saniert
Kaltmiete (netto): 1.091,97 €
Kaltmiete: 1.328,13 €
Miete / m²: 9,00 €
Provision: 3 Bruttomonatsmieten zzgl. 20% USt.
Betriebskosten: 236,16 €
MwSt Gesamt: 265,62 €
Nutzfläche: 121,33 m²
Immobilie merken Exposé

Immobilie anfragen


Ihre persönliche Beratung

Bernhard Friedrich

finallyHOMEreal GmbH

T +43 660 117 9020