PROVISIONSFREI! LAUDONGASSE 22A!

Wohnung , 8020 Graz , Laudongasse 22a


Beschreibung der Immobilie

PROVISIONSFREI! LAUDONGASSE 22A!

PROVISIONSFREIE MIETWOHNUNG - LAUDONGASSE 22A!



MIETE INKLUSIVE BETRIEBSKOSTEN, HEIZKOSTEN UND WARMWASSER!



FOTOS FOLGEN!




Hinweis gemäß Energieausweisvorlagegesetz: Ein Energieausweis wurde vom Eigentümer bzw. Verkäufer, nach unserer Aufklärung über die generell geltende Vorlagepflicht, sowie Aufforderung zu seiner Erstellung noch nicht vorgelegt. Daher gilt zumindest eine dem Alter und der Art des Gebäudes entsprechende Gesamtenergieeffizienz als vereinbart. Wir übernehmen keinerlei Gewähr oder Haftung für die tatsächliche Energieeffizienz der angebotenen Immobilie.


Der Immobilienmakler erklärt, dass er – entgegen dem in der Immobilienwirtschaft üblichen Geschäftsgebrauch des Doppelmaklers – einseitig nur für den Vermieter tätig ist.

Infrastruktur / Entfernungen

Gesundheit
Arzt <50m
Apotheke <350m
Klinik <950m
Krankenhaus <875m

Kinder & Schulen
Schule <200m
Kindergarten <250m
Universität <400m
Höhere Schule <450m

Nahversorgung
Supermarkt <100m
Bäckerei <475m
Einkaufszentrum <825m

Sonstige
Geldautomat <325m
Bank <325m
Post <550m
Polizei <625m

Verkehr
Bus <25m
Straßenbahn <50m
Autobahnanschluss <4.475m
Bahnhof <625m
Flughafen <9.775m

Angaben Entfernung Luftlinie / Quelle: OpenStreetMap

Eckdaten Objektnr. 3024

Art: Wohnung
Land: Österreich
Gesamtmiete: 842,69
Kaltmiete (netto): 385,01 €
Kaltmiete: 614,73 €
Provision: Gemäß Erstauftraggeberprinzip bezahlt der Abgeber die Provision.
Betriebskosten: 229,72 €
Heizkosten: 143,49 €
MwSt Gesamt: 84,47 €
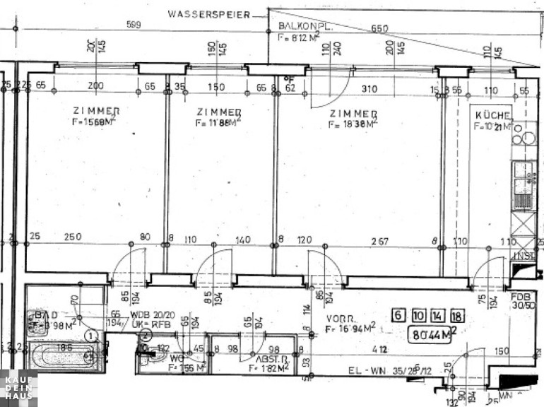
Wohnfläche: 86,44 m²
Zimmer: 3
Immobilie merken Exposé

Immobilie anfragen


Ihre persönliche Beratung

KDH Immobilien GmbH

Markus Unger-Ullmann

KDH Immobilien GmbH

T +43 660 32 13 992