Seltene Gelegenheit! Attraktives Wohnungsangebot mitten im Andräviertel
Wohnung
,
5020
Salzburg
Im charmanten Andräviertel wohnen Sie nur einen Katzensprung von der Innenstadt entfernt, und alles für den täglichen Bedarf befindet sich in unmittelbarer Umgebung. Die Linzergasse, die mit zahlreichen Einkaufsmöglichkeiten zum Flanieren und Shoppen einlädt, liegt ums Eck, in die Altstadt mit ihren traditionsreichen Kaffeehäusern, Restaurants und Geschäften spazieren Sie gemütlich zu Fuß. Die vielen Gründerzeithäuser verleihen dem Viertel ein besonderes Flair, jeden Donnerstag lockt die Schranne vor der Andräkirche zum Bummeln und Einkaufen an den bunten Marktständen.
Beschreibung der Immobilie
Seltene Gelegenheit! Attraktives Wohnungsangebot mitten im Andräviertel
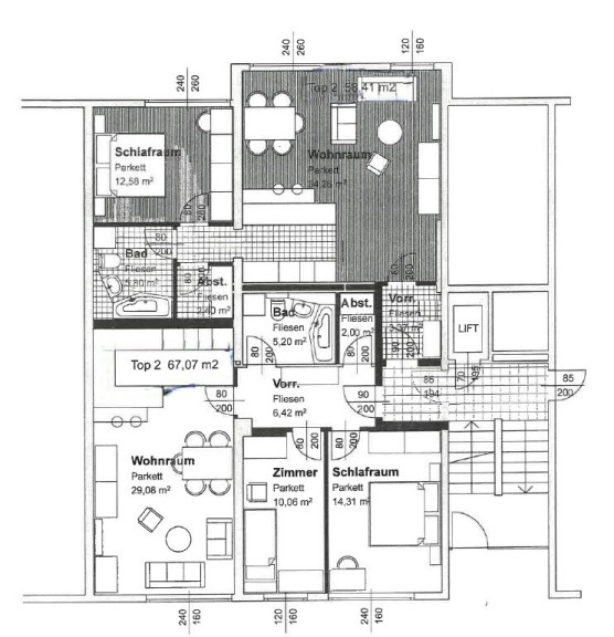
Mitten im beliebten Andräviertel erwartet Sie dieses überaus attraktive Wohnungsangebot. Eine ehemals genutzte Büroeinheit wurde 2014 umgewidmet und in zwei Wohnungen geteilt. Es entstanden dabei eine 2- und eine 3-Zimmer-Wohnung, wobei letztere bis Ende April 2026 vermietet ist. Die 2-Zimmer-Wohnung ist ab sofort bezieh- bzw. vermietbar.
Eckdaten & Ausstattung:
- Wohnfläche gesamt: ca. 122 m² (2-Zi. Whg.: ca. 57,25 m²/3-Zi. Whg.: ca. 64,78 m²)
- 2. OG mit Lift
- Zimmer: gesamt 5 Zimmer
- Bäder: 2, Badewanne, Waschbecken, Handtuchtrockner, WC
- 2 Abstellräume
- Parkettböden
- Top 14 (2-Zimmer-Wohnung): ab sofort beziehbar
- Top 13 (3-Zimmer-Wohnung): bis Ende April vermietet, mtl. Netto-Miete: € 859,35
Der Vermittler ist als Doppelmakler tätig.
Infrastruktur / Entfernungen
Gesundheit
Arzt <500m
Apotheke <500m
Klinik <500m
Krankenhaus <1.000m
Kinder & Schulen
Schule <500m
Kindergarten <1.000m
Universität <500m
Höhere Schule <500m
Nahversorgung
Supermarkt <500m
Bäckerei <500m
Einkaufszentrum <500m
Sonstige
Bank <500m
Geldautomat <500m
Post <500m
Polizei <1.000m
Verkehr
Bus <500m
Bahnhof <1.000m
Autobahnanschluss <3.000m
Flughafen <3.500m
Angaben Entfernung Luftlinie / Quelle: OpenStreetMap
Eckdaten Objektnr. 536/2119
| Art: | Wohnung |
| Land: | Österreich |
| Baujahr: | 1967 |
| Zustand: | Gepflegt |
| Kaufpreis: | 695.000,00 € |
| Provision: | 3% des Kaufpreises zzgl. 20% USt. |
| Betriebskosten: | 298,13 € |
| Heizkosten: | 199,01 € |
| MwSt Gesamt: | 69,61 € |
| Wohnfläche: | 122,03 m² |
| Nutzfläche: | 128,52 m² |
| Zimmer: | 5 |
| Bäder: | 2 |
Ausstattung
Parkett, Fernwärme, Einbauküche, Personenaufzug, Badewanne
Ihre persönliche Beratung
Dieser Makler ist ein offizielles Mitglied des IR – ir.at Mehr Erfahren
