67,11 m² Gartenwohnung mit Loggia & Wintergarten | Miete € 799,- | verfügbar ab 01.05.2026

Wohnung , 3100 St. Pölten , Spratzerner Kirchenweg


1 Minute zum Fachmarktzentrum, Media Mark, BILLA PLUS 2 Minuten vom Seminarzentrum Schwaighof entfernt 4 Minuten von der Park & Ride Porschestrasse entfernt 5 Minuten von der Traisen Promenade gelegen 5 Minuten zum Kindergarten 5 Minuten zum Gymnasium 27 Minuten mit dem Zug zum Wien Hauptbahnhof

Beschreibung der Immobilie

67,11 m² Gartenwohnung mit Loggia & Wintergarten | Miete € 799,- | verfügbar ab 01.05.2026

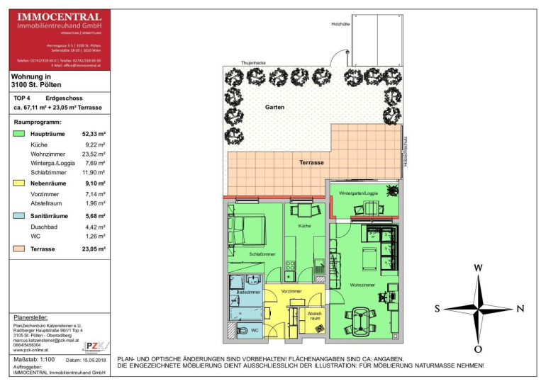
67,11 m² Wohnfläche inkl. Loggia / Wintergarten
Erdgeschoss mit Lift – 01.05.2026 



Raumaufteilung: Vorraum, Wohnzimmer, Loggia, Terrasse, Garten, Schlafzimmer, Bad, WC, Abstellraum



Miete gesamt: € 799,- inkl. BK/USt.



Heizkosten / Warmwasser: € 109,79 inkl. USt.



Kaution: € 3.000,-  




Wir weisen darauf hin, dass zwischen dem Vermittler und dem zu vermittelnden Dritten ein familiäres oder wirtschaftliches Naheverhältnis besteht.


Der Immobilienmakler erklärt, dass er – entgegen dem in der Immobilienwirtschaft üblichen Geschäftsgebrauch des Doppelmaklers – einseitig nur für den Vermieter tätig ist.

Infrastruktur / Entfernungen

Gesundheit
Arzt <750m
Apotheke <500m
Klinik <1.500m
Krankenhaus <3.750m

Kinder & Schulen
Schule <500m
Kindergarten <500m
Universität <3.500m
Höhere Schule <750m

Nahversorgung
Supermarkt <500m
Bäckerei <500m
Einkaufszentrum <2.250m

Sonstige
Bank <500m
Geldautomat <1.500m
Polizei <500m
Post <1.500m

Verkehr
Bus <250m
Bahnhof <750m
Autobahnanschluss <1.000m
Flughafen <4.000m

Angaben Entfernung Luftlinie / Quelle: OpenStreetMap

Eckdaten Objektnr. 5810

Art: Wohnung
Land: Österreich
Zustand: Gepflegt
Möbliert: Teil
Alter: Neubau
Gesamtmiete: 799,00
Kaltmiete (netto): 626,49 €
Kaltmiete: 799,00 €
Provision: Gemäß Erstauftraggeberprinzip bezahlt der Abgeber die Provision.
Betriebskosten: 172,51 €
Wohnfläche: 67,11 m²
Zimmer: 2
Bäder: 1
WC: 1
Terrassen: 1
Stellplätze: 1
Garten: 56,00 m²
Heizwärmebedarf:  C  66,90 kWh/m²a
fGEE:  C  1,75
Immobilie merken Exposé

Ausstattung

Fliesen, Laminatboden, Zentralheizung, Einbauküche, Personenaufzug, Westbalkon, Badewanne, Dusche, Kabel/Satelliten-TV, Parkplatz, Wasch/Trockenraum


Immobilie anfragen


Ihre persönliche Beratung

IMMOCENTRAL Immobilientreuhand GmbH

Richard Abdel-Asis

IMMOCENTRAL Immobilientreuhand GmbH

T 02742/ 318 60-14

F 02742/ 318 60-50