Wohnung im Zentrum von Linz - Nähe Bahnhof, ausgezeichnete öffentliche Anbindung mit Bus und Straßenbahn

Wohnung , 4020 Linz


Beschreibung der Immobilie

Wohnung im Zentrum von Linz - Nähe Bahnhof, ausgezeichnete öffentliche Anbindung mit Bus und Straßenbahn

Linz / Makartviertel / Raimundstraße 40b:



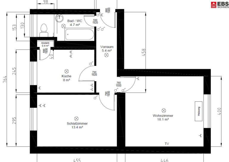
In zentraler Lage von Linz (Raimundstraße 40b) gelangt diese gut aufgeteilte 2-Raum-Wohnung mit einer Wohnfläche von 51,36 m² zur Vermietung.



Die Wohnung befindet sich im 3. Obergeschoss Top 12 eines gepflegten Wohnhauses und ist bequem mit dem Aufzug erreichbar.

Die Raimundstraße überzeugt durch ihre hervorragende Anbindung an öffentliche Verkehrsmittel sowie die Nähe zu Einkaufsmöglichkeiten, Gastronomie und Naherholungsbereichen.

 



Die Wohnung wird unmöbliert übergeben und bietet somit die ideale Grundlage für Ihre individuelle Einrichtung und persönliche Gestaltung.



Raumaufteilung



  • Vorraum
  • Küche
  • Schlafzimmer
  • Wohnzimmer
  • Badezimmer inkl. WC und Badewanne
  • Wohnfläche: 51,3 m²



Mietkonditionen:
Miete inkl. Betriebskosten und MwSt.: € 418,23

Die Strom- und Heizkosten sind nicht inkludiert.

Kaution/Baukostenzuschuss: € 1672,92

Sie sind an weiteren Wohnungsangeboten interessiert?

Ein vielfältiges Angebot finden Sie auf unserer EBS Website.

Zur EBS Immobiliensuche: EBS Wohnungsanlagen Gesellschaft m.b.H - EBS (ebs-linz.at)
Zur EBS Wohnungsanmeldung: Wohnungsanmeldung - EBS (ebs-linz.at)

Gerne beraten wir Sie persönlich über unser vielfältiges Angebot, rufen Sie uns einfach an! Und das natürlich ohne Vermittlungsgebühren und provisionsfrei!

Angaben sind ohne Gewähr auf Richtigkeit und Vollständigkeit. Druckfehler vorbehalten!

Infrastruktur / Entfernungen

Gesundheit
Arzt <500m
Apotheke <500m
Krankenhaus <1.500m
Klinik <500m

Kinder & Schulen
Kindergarten <500m
Schule <500m
Universität <1.500m
Höhere Schule <2.000m

Nahversorgung
Supermarkt <500m
Bäckerei <500m
Einkaufszentrum <2.000m

Sonstige
Bank <500m
Geldautomat <500m
Post <500m
Polizei <500m

Verkehr
Bus <500m
Straßenbahn <1.000m
Bahnhof <1.000m
Autobahnanschluss <1.000m
Flughafen <2.500m

Angaben Entfernung Luftlinie / Quelle: OpenStreetMap

Eckdaten Objektnr. 7062/518

Art: Wohnung
Land: Österreich
Zustand: Gepflegt
Gesamtmiete: 418,23
Kaltmiete (netto): 228,67 €
Kaltmiete: 380,21 €
Betriebskosten: 151,54 €
MwSt Gesamt: 38,02 €
Wohnfläche: 51,36 m²
Zimmer: 2
Bäder: 1
WC: 1
Heizwärmebedarf:  D  101,60 kWh/m²a
fGEE:  C  1,74
Immobilie merken Exposé

Ausstattung

Fliesen, Parkett, Zentralheizung, Personenaufzug, Badewanne, Kabel/Satelliten-TV, Wasch/Trockenraum


Immobilie anfragen


Ihre persönliche Beratung

Team Vermietung & Verkauf EBS

EBS Wohnungsgesellschaft mbH Linz

T +43 50 338 6016