RARITÄT- Zweitwohnsitze möglich "Carinthia Living" Sonnenresort I-St. Kanzian am Klopeiner See-Anlageobjekte mit Rendite oder neues Zuhause-Provisionsfreier Kauf-NUR 12 Wohneinheiten

Wohnung , 9122 St. Kanzian am Klopeiner See


Beschreibung der Immobilie

RARITÄT- Zweitwohnsitze möglich "Carinthia Living" Sonnenresort I-St. Kanzian am Klopeiner See-Anlageobjekte mit Rendite oder neues Zuhause-Provisionsfreier Kauf-NUR 12 Wohneinheiten

Sonnenresort I St. Kanzian – Anlageobjekt mit Rendite und - oder Eigennutzung, oder Zweitwohnsitz möglich!



Diese außergewöhnliche Wohnanlage stellt eine der letzten Gelegenheiten an den Kärntner Seen dar,



eine Immobilie mit gültiger Zweitwohnsitzgenehmigung zu erwerben.



Exklusive Eigentumswohnungen | Erstbezug bis Herbst/Winter 2026



In der bekannten und äußerst beliebten Tourismusgemeinde St. Kanzian am Klopeiner See entsteht bis Herbst/Winter 2026 das exklusive Sonnenresort



ein Wohnprojekt für Menschen, die höchste Lebensqualität suchen oder in eine wertstabile Immobilie investieren möchten.



Der Klopeiner See, einer der wärmsten Badeseen Europas, bietet gemeinsam mit der hervorragenden Infrastruktur ein einzigartiges Wohn- und Freizeitgefühl.



Hotels, Pensionen, Restaurants, Cafés und Bars prägen das lebendige Umfeld und sorgen für mediterranes Flair – das ganze Jahr über.



Ihr Platz an der Sonne



Ob als Hauptwohnsitz, Feriendomizil oder attraktive Anlageimmobilie – das Sonnenresort St. Kanzian vereint erstklassige Lage und nachhaltige Wohnqualität.



Fertigstellung & Erstbezug: bis Herbst/Winter 2026





Wohnkonzept & Ausstattung



Die Wohnanlage umfasst 12 exklusive Wohneinheiten mit modernen, durchdachten Grundrisslösungen und hochwertiger Ausstattung.




  • Erdgeschosswohnungen mit Eigengärten und großzügigen Terrassen



  • Wohnungen im 1. und 2. Obergeschoss mit großen Balkonen bzw. Terrassen



  • Wohnungen im 1. und 2.  Obergeschoss bequem mit dem Etagenlift erreichbar



  • Jede Einheit mit Abstellraum (Kellerabteil)



  • KFZ-Stellplätze, Besucherparkplätze



  • 1 Carport



  • 1 Müllraum



  • 1 Überdachter, absperrbarer Fahrradabstellplatz






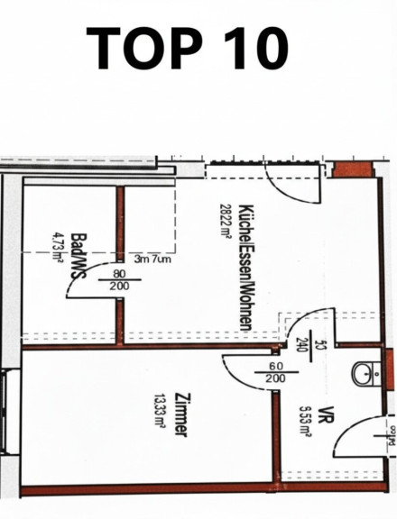
Top 10 Dachgeschosswohnung



Kaufpreis: € 236.740,-



Diese Wohnung besticht durch Ihre großzügige Dachterrasse und ein offenes, modernes Raumkonzept.



Raumaufteilung / Flächen: Wohnfläche 38,77 m² + Dachterrasse 19,98 m²




  • Vorraum: 5,03 m²



  • Kochen/Wohnen: 15,99 m²



  • Schlafzimmer: 12,00 m²



  • Bad/WC: 5,75 m²



  • Kellerabteil: 6,63 m²



  • Dachterrasse: 19,98 m²




Parken & Zubehör:




  • PKW-Abstellplatz für 2 PKWs



  • Carport inkl. Fahrradabstellplatz 24,98 m²






Weitere verfügbare Wohneinheiten 



Top 11 Dachgeschosswohnung



Kaufpreis: € 249.980,-



Diese Wohnung besticht durch Ihre großzügige Dachterrasse und ein offenes, modernes Raumkonzept.



Raumaufteilung / Flächen: Wohnfläche 41,66 m² + Terrasse 24,00 m²




  • Vorraum: 7,28 m²



  • Kochen/Wohnen: 15,99 m²



  • Schlafzimmer: 11,91 m²



  • Bad/WC: 6,48 m²



  • Kellerabteil: 6,83 m²



  • Terrasse: 24,00 m²




Parken & Zubehör:




  • PKW-Abstellplatz für 2 PKWs



  • Carport inkl. Fahrradabstellplatz 24,98 m²






Top 12 Dachgeschosswohnung



Kaufpreis: € 232.960,-



Diese Wohnung besticht durch Ihren, sonnigen Balkon und ein offenes, modernes Raumkonzept.



Raumaufteilung / Flächen: Wohnfläche 39,13 m² + Balkon 9,75 m²




  • Vorraum: 3,24 m²



  • Kochen/Wohnen: 16,07 m²



  • Schlafzimmer: 12,60 m²



  • Bad/WC: 7,22 m²



  • Kellerabteil: 6,83 m²



  • Balkon: 9,75 m²




Parken & Zubehör:




  • PKW-Abstellplatz für 2 PKWs



  • Carport inkl. Fahrradabstellplatz 24,98 m²






Nähere Informationen zu allen weiteren verfügbaren Wohneinheiten entnehmen Sie bitte dem beigefügten Exposé.



Für Rückfragen stehen wir Ihnen gerne auch telefonisch oder per E-Mail zu Ihrer Verfügung.

Infrastruktur / Entfernungen

Gesundheit
Arzt <7.000m
Apotheke <500m
Krankenhaus <8.500m

Kinder & Schulen
Schule <500m
Kindergarten <8.000m

Nahversorgung
Supermarkt <500m
Bäckerei <1.500m

Sonstige
Bank <500m
Geldautomat <500m
Post <500m
Polizei <500m

Verkehr
Bus <500m
Autobahnanschluss <4.500m
Bahnhof <2.000m

Angaben Entfernung Luftlinie / Quelle: OpenStreetMap

Eckdaten Objektnr. 2056/82

Art: Wohnung
Land: Österreich
Zustand: Erstbezug
Alter: Neubau
Kaufpreis: 236.740,00
Kaufpreis / m²: 5.533,33 €
Wohnfläche: 38,77 m²
Nutzfläche: 57,22 m²
Zimmer: 2
Bäder: 1
WC: 1
Balkone: 1
Stellplätze: 2
Immobilie merken Exposé

Ausstattung

Fliesen, Parkett, Fernwärme, Fußbodenheizung, Personenaufzug, Dusche, Carport


Immobilie anfragen


Ihre persönliche Beratung

WD Immobilien GmbH

Walpurga Dreher

WD Immobilien GmbH

T +43 650 621 65 42