Moderne Doppelhaushälfte in Grünlage – belagsfertig & flexibel gestaltbar

Haus - Doppelhaushälfte, 4064 Oftering


Die Liegenschaft befindet sich in Oftering, einer beliebten Gemeinde im Bezirk Linz-Land. Die Umgebung ist geprägt von Einfamilienhäusern, landwirtschaftlichen Flächen und viel Grünraum – ideal für Familien, die dennoch eine sehr gute Anbindung schätzen. Die Infrastruktur überzeugt durch kurze Wege: • Schule und Nahversorgung • Busanbindung in unmittelbarer Nähe • Bahnhof sowie Autobahnanschluss rasch erreichbar • Linz ist in kurzer Fahrzeit erreichbar • Flughafen Hörsching Die Lage bietet eine gelungene Kombination aus ländlicher Ruhe und urbaner Erreichbarkeit.

Beschreibung der Immobilie

Moderne Doppelhaushälfte in Grünlage – belagsfertig & flexibel gestaltbar

Zum Verkauf steht Haus 4 eines modernen Doppelhausprojekts in hochwertiger Massivbauweise. Gleichzeitig wird auch die benachbarte Einheit Haus 3 angeboten, wodurch es sich um ein Doppelhaus mit zwei eigenständigen Wohneinheiten handelt, die jeweils separat erworben werden können.





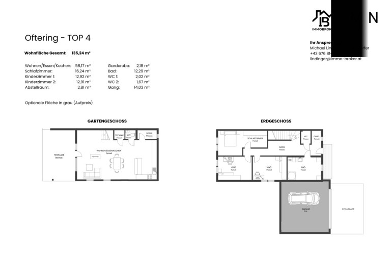
Das Haus überzeugt durch eine zeitgemäße Architektur mit Flachdach, klaren Linien und einem durchdachten Wohnkonzept über zwei Ebenen. Die Erschließung erfolgt über das Erdgeschoss, welches als Schlafebene konzipiert ist. Hier befinden sich das Schlafzimmer, zwei Kinderzimmer, ein Badezimmer mit Fenster, ein separates WC sowie Garderobe und Gangbereich. Über eine innenliegende Treppe gelangt man in das darunterliegende Gartengeschoß, das den großzügigen Wohn-/Ess-/Kochbereich beherbergt. Von hier aus besteht ein direkter Zugang zur Terrasse und in den Garten. Ergänzend sind auf dieser Ebene ein Technikraum, eine Speis sowie ein weiteres WC vorgesehen.





Das Objekt wird belagsfertig angeboten und bietet somit größtmöglichen Gestaltungsspielraum bei der individuellen Innenausstattung. Gegen einen Aufpreis von € 38.000,- kann die schlüsselfertige Ausführung hergestellt werden. Darüber hinaus bestehen vielfältige Erweiterungs- und Anpassungsmöglichkeiten. Optional können beispielsweise eine Garage, ein Carport, Stützmauern oder auch ein Keller errichtet werden. Auch Anpassungen der Flächen oder Grundrissänderungen sind grundsätzlich in Abstimmung mit dem Bauträger möglich, wodurch individuelle Wohnbedürfnisse bestmöglich berücksichtigt werden können.





Die veröffentlichten Fotos zeigen bereits realisierte Häuser des Bauträgers in unmittelbarer Umgebung und dienen der Veranschaulichung. Die tatsächliche Ausführung von Haus 4 kann in Details abweichen. Maßgeblich sind die Verkaufspläne sowie die jeweilige vertragliche Vereinbarung mit dem Bauträger.


Hinweis gemäß Energieausweisvorlagegesetz: Ein Energieausweis wurde vom Eigentümer bzw. Verkäufer, nach unserer Aufklärung über die generell geltende Vorlagepflicht, sowie Aufforderung zu seiner Erstellung noch nicht vorgelegt. Daher gilt zumindest eine dem Alter und der Art des Gebäudes entsprechende Gesamtenergieeffizienz als vereinbart. Wir übernehmen keinerlei Gewähr oder Haftung für die tatsächliche Energieeffizienz der angebotenen Immobilie.


Wir weisen darauf hin, dass zwischen dem Vermittler und dem zu vermittelnden Dritten ein familiäres oder wirtschaftliches Naheverhältnis besteht.


Der Vermittler ist als Doppelmakler tätig.

Infrastruktur / Entfernungen

Gesundheit
Arzt <2.500m
Apotheke <5.000m
Klinik <5.500m

Kinder & Schulen
Schule <1.000m
Kindergarten <4.000m

Nahversorgung
Supermarkt <4.000m
Bäckerei <5.000m
Einkaufszentrum <8.000m

Sonstige
Bank <1.500m
Geldautomat <3.000m
Post <5.000m
Polizei <5.000m

Verkehr
Bus <500m
Bahnhof <3.000m
Straßenbahn <8.500m
Autobahnanschluss <6.500m
Flughafen <5.500m

Angaben Entfernung Luftlinie / Quelle: OpenStreetMap

Eckdaten Objektnr. 7834/345

Art: Haus - Doppelhaushälfte
Land: Österreich
Zustand: Projektiert
Alter: Neubau
Kaufpreis: 567.500,00
Provision: 3% des Kaufpreises zzgl. 20% USt.
Wohnfläche: 135,24 m²
Grundstücksfl.: 402,00 m²
Zimmer: 4
Bäder: 1
WC: 2
Terrassen: 1
Immobilie merken Exposé

Ausstattung

Fußbodenheizung, Westbalkon, Bad mit Fenster, Parkplatz


Immobilie anfragen


Ihre persönliche Beratung

BL Immobroker GmbH

Ing. Michael Lindinger-Pesendorfer, BSc

LP Immobilien GmbH

T +43 732 29 99 27

H +43 676 81419652