Top Lage - 2-Zimmer-Wohnung in 1070 Wien

Wohnung , 1070 Wien , Neubaugasse


Beschreibung der Immobilie

Top Lage - 2-Zimmer-Wohnung in 1070 Wien

Die zum Verkauf stehende 2 Zimmer Wohnung befindet sich im 1. Stockwerk. Hervorzuheben ist die begehrte Lage der Liegenschaft. Der verkehrsberuhigte und modernisierte Abschnitt der Straße sowie die Nähe zur Mariahilfer Straße garantieren eine Vielzahl an Annehmlichkeiten in unmittelbarer Nähe.



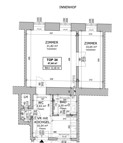
Die sanierungsbedürftige Wohnung besticht ebenfalls durch eine gute Anbindung an den öffentlichen Personennahverkehr. Die Einheit ist wie folgt aufgeteilt:



  • Vorraum mit Kochgelegenheit
  • Bad
  • WC
  • Zimmer
  • Kabinett


Genießen Sie die Vorzüge des urbanen Lebens, ohne auf die Ruhe und Gemütlichkeit eines eigenen Zuhauses verzichten zu müssen. Diese Wohnung ist nicht nur ein Ort zum Wohnen, sondern ein Lebensraum, der Ihnen die Möglichkeit gibt, das pulsierende Leben in Wien in vollen Zügen zu genießen.




Der Vermittler ist als Doppelmakler tätig.

Infrastruktur / Entfernungen

Gesundheit
Arzt <250m
Apotheke <250m
Klinik <500m
Krankenhaus <1.250m

Kinder & Schulen
Schule <250m
Kindergarten <500m
Universität <500m
Höhere Schule <500m

Nahversorgung
Supermarkt <250m
Bäckerei <250m
Einkaufszentrum <500m

Sonstige
Geldautomat <250m
Bank <500m
Post <500m
Polizei <250m

Verkehr
Bus <250m
U-Bahn <500m
Straßenbahn <250m
Bahnhof <750m
Autobahnanschluss <4.250m

Angaben Entfernung Luftlinie / Quelle: OpenStreetMap

Eckdaten Objektnr. 6346/389

Art: Wohnung
Land: Österreich
Alter: Altbau
Kaufpreis: 275.000,00
Provision: 3% des Kaufpreises zzgl. 20% USt.
Betriebskosten: 114,42 €
MwSt Gesamt: 11,44 €
Wohnfläche: 47,44 m²
Zimmer: 2
Bäder: 1
WC: 1
Heizwärmebedarf:  C  77,70 kWh/m²a
fGEE:  C  1,69
Immobilie merken Exposé

Immobilie anfragen


Ihre persönliche Beratung

Brucer Immobilen e.U.

Florian Brucer, MA

Brucer Immobilen e.U.

T +43 (0) 676 56 11 783