Beschreibung der Immobilie
Verkaufseinheit in zentraler Lage
Die Geschäftsfläche befindet sich in gut sichtbarer Position innerhalb des innerstädtischen Handelsumfelds und verfügt über eine markante Schaufensterfront, die eine hohe Kundenfrequenz sowie eine nachhaltige Werbewirksamkeit gewährleistet. Die Liegenschaft eignet sich für Einzelhandel, Dienstleistung oder alternative gewerbliche Nutzungskonzepte, sofern diese baurechtlich zulässig sind.
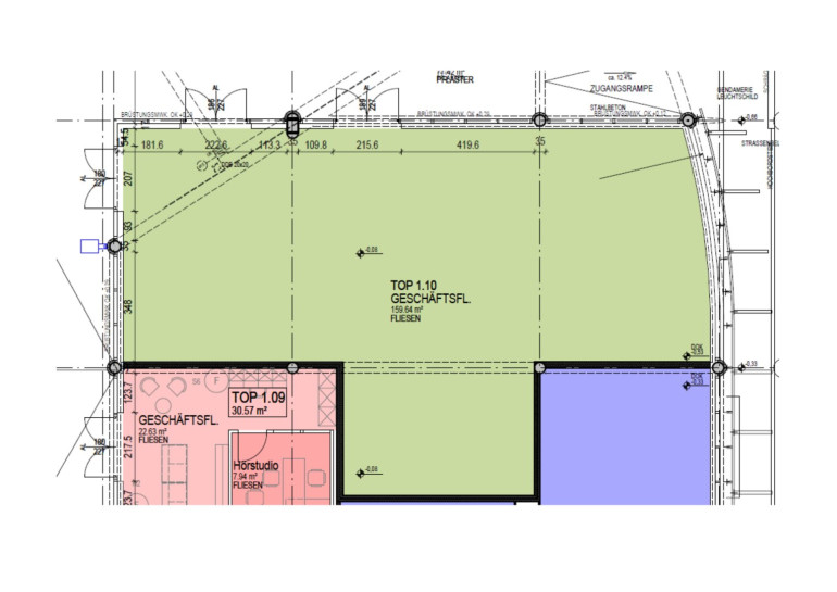
Die Fläche präsentiert sich als großzügig geschnittenes Erdgeschoßlokal mit offener Grundrissstruktur, wodurch flexible Raumkonzepte sowie auch eine Trennung in zwei eigenständige Geschäftsräumlichkeiten ermöglicht werden. Neben dem straßenseitig ausgerichteten Verkaufsbereich stehen außerhalb der Verkaufsfläche Sanitäranlagen zur Verfügung. Die bestehende Infrastruktur umfasst entsprechende Anschlüsse für Strom, Wasser und Heizung; die technische Ausstattung entspricht einem etablierten Einzelhandelsstandard. Die Anlieferung ist organisatorisch gut darstellbar, was insbesondere für Handelskonzepte von Relevanz ist.
Der angegebene Mietzins dient als Richtwert. Auf Grundlage geplanter Ausstattungsinvestitionen oder individueller Flächenanpassungen kann der Mietpreis im Einzelfall angepasst werden.
Lage und Umfeld
Die Liegenschaft befindet sich in zentraler Lage von Waidhofen an der Thaya, in unmittelbarer Nähe zum Stadtzentrum. Das direkte Umfeld stellt eine etablierte Geschäfts- und Versorgungsachse dar, die sowohl von lokalem Kundenverkehr als auch von Durchzugsfrequenz profitiert. Die Umgebung ist geprägt von Einzelhandelsbetrieben, Dienstleistern, Banken sowie öffentlichen Einrichtungen, wodurch eine kontinuierliche Kundenfrequenz gegeben ist.
Infrastruktur und Erreichbarkeit
Die Anbindung an den Individualverkehr ist aufgrund der zentralen innerstädtischen Lage als gut zu bewerten. Öffentliche Stellplätze befinden sich im näheren Umfeld. Öffentliche Verkehrsmittel sind fußläufig erreichbar, ebenso wie weitere infrastrukturelle Einrichtungen des täglichen Bedarfs. Die Nähe zu Wohngebieten erhöht zusätzlich das Potenzial für frequenzabhängige Nutzungen.
Eckdaten Objektnr. 4236
| Art: | Einzelhandel |
| Land: | Österreich |
| Kaltmiete (netto): | 1.596,40 € |
| Kaltmiete: | 2.040,70 € |
| Provision: | 2 Bruttomonatsmieten zzgl. 20% USt. |
| Betriebskosten: | 444,30 € |
| MwSt Gesamt: | 408,14 € |
| Nutzfläche: | 159,64 m² |
Ihre persönliche Beratung
Dieser Makler ist ein offizielles Mitglied des IR – ir.at Mehr Erfahren
