Exklusives Seehaus in vorderster Reihe

Haus - Strandhaus, 7093 Jois


Inselwelt Jois

Beschreibung der Immobilie

Exklusives Seehaus in vorderster Reihe

Zum Verkauf gelangt ein charmantes, hochwertig ausgestattetes Ferienhaus in exklusiver Lage direkt am Wasser. Es wurde 2001 in Holzständerbauweise errichtet und eignet sich ideal für eine ganzjährige Nutzung. Die Wohnfläche beträgt ca. 92 m² zuzüglich großer Terrasse und einem Wintergarten mit ca. 25 m2. Jedes Detail wurde sorgfältig entworfen, um ein Maximum an Wohlbefinden und Entspannung zur gewährleisten. Die gut durchdachte Raumgestaltung verbindet Offenheit und Privatsphäre – jeder Raum öffnet sich harmonisch zur Seelandschaft hin. 



Die Ausstattung überzeugt durch hochwertige Materialien und modernste Haustechnik, maßgeschneidert für anspruchsvolles Wohnen. Ein weiteres Highlight ist der liebevoll angelegte Garten, der sich auf ca. 500 m² erstreckt und dann in den privaten, direkten Seebereich mit eigenem Steg übergeht. Er besticht durch gepflegte Grünflächen, steingesäumte Beete mit blühenden Stauden, diverse Bäume sowie zwei Hochbeete für Hobbygärtner. Ein Mähroboter sowie eine Bewässerungsanlage sorgen dafür, dass der Garten ganzjährig in einem perfekten Zustand bleibt.



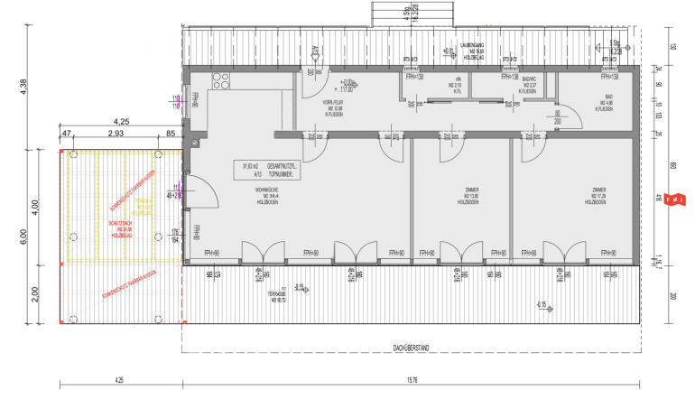
Aufteilung:



  • Wohnküche ca. 39,40m²
  • Zimmer 1 ca. 13,80 m²
  • Zimmer 2 ca. 17,29 m²
  • BAD / WC 1 ca. 2,37 m²
  • BAD / WC 2 ca. 4,96 m²
  • AR ca. 2,18m²
  • VR ca. 12,88m²
  • Wintergarten ca. 24,58m²
  • Terrasse ca. 56,72m²
  • Laubengang ca. 15,93m²


Ausstattung Haus:



  • Große Fenster holen den See ins Haus
  • Hochwertige Bodenbeläge (u.a. Eichenparkett)
  • Erhöhte Lage auf Pfählen mit stilvoller Holzfassade
  • Ausgezeichneter baulicher Zustand (regelmäßig gepflegt)
  • Elektrische Fußbodenheizung
  • Klimatisierung (Split-Geräte) in allen Wohnräumen
  • Solarkollektoren für effiziente Warmwasserbereitung
  • Hochwertige Holzfenster mit Isolierverglasung
  • Videoüberwachung im Außenbereich
  • 150 Mbit/s Internet, Festnetz, SAT-TV


Ausstattung Garten:



  • Privater Bootssteg und Kiesstrand mit eigenem Wasserzugang
  • Großzügige Terrasse, perfekt für windige Tage oder für entspannte Abende
  • Außendusche im Freien mit Seeblick
  • Natürlich gestalteter Sichtschutz durch Schilf und Bepflanzung
  • Automatische Gartenbewässerung, Rasenroboter
  • Stimmungsvolle Außenbeleuchtung


Lage:



Direkt an der Spitze der privaten „Inselwelt Jois“ gelegen, bietet die Immobilie absolute Ruhe und Privatsphäre. Die Inselwelt ist eine exklusive Anlage mit rund 80 Seevillen, die harmonisch in die natürliche Umgebung integriert sind.



  • Private Hafenanlage direkt angrenzend, mit Serviceeinrichtungen und Gastronomie.
  • Wassersportmöglichkeiten direkt vor der Haustür, ideal für Segler, Surfer und Kitesurfer.
  • Einkaufsmöglichkeiten, u.a. Designer Outlet Parndorf, sowie diverse Shoppingcenter in nur 10 Autominuten erreichbar.
  • Die Region ist bekannt für ihre erstklassigen Weingüter und Restaurants.
  • Kultur & Natur: Im Herzen des UNESCO-Welterbegebiets „Neusiedler See“ gelegen, bietet die Umgebung zahlreiche kulturelle Veranstaltungen und Naturerlebnisse.
  • Der Naturpark Neusiedler See – Leithagebirge lädt mit seinen Wander- und Radwegen zur Erkundung ein.


Erreichbarkeit:



  • Wien: nur ca. 35 Autominuten entfernt
  • Bratislava: ca. 30 Autominuten
  • Direkte Anbindung über Autobahnen (A4, A6)
  • Privater Parkplatz innerhalb der gesicherten Anlage
  • Gute Anbindung an öffentliche Verkehrsmittel (Bahnhof Jois)

     


Für nähere Informationen oder einen Besichtigungstermin stehen wir Ihnen gerne telefonisch oder per E-Mail zur Verfügung.
Die Angaben erfolgen aufgrund von Informationen und Unterlagen, die uns vom Eigentümer und/oder von Dritten zur Verfügung gestellt wurden und sind ohne Gewähr. Es gelten unsere AGB siehe www.fhi.at



DI Wolfgang Leeb
M: +43 (0) 699 1952 8084

T: +43 (0) 1 342 222

F: +43 (0) 1 342 222 11

wl@fhi.at

Infrastruktur / Entfernungen

Gesundheit
Arzt <2.500m
Apotheke <3.000m
Klinik <10.000m

Kinder & Schulen
Schule <2.500m
Kindergarten <3.000m

Nahversorgung
Supermarkt <2.500m
Bäckerei <4.000m
Einkaufszentrum <5.000m

Sonstige
Bank <2.500m
Geldautomat <2.500m
Post <3.000m
Polizei <6.000m

Verkehr
Bus <2.500m
Autobahnanschluss <5.500m
Bahnhof <2.000m

Angaben Entfernung Luftlinie / Quelle: OpenStreetMap

Eckdaten Objektnr. 7226

Art: Haus - Strandhaus
Land: Österreich
Baujahr: 2001
Zustand: Gepflegt
Alter: Neubau
Kaufpreis: 1.190.000,00
Wohnfläche: 117,00 m²
Grundstücksfl.: 681,00 m²
Zimmer: 3,50
Bäder: 2
WC: 2
Terrassen: 2
Garten: 500,00 m²
Immobilie merken Exposé

Ausstattung

Elektro, Solarenergie, Fußbodenheizung, Heizofen, Südbalkon, Bad mit Fenster, Badewanne, Dusche


Immobilie anfragen


Ihre persönliche Beratung

FHI Real Estate GmbH

DI Wolfgang Leeb

Fischer, Hörnisch Immobilien GmbH

T +43 1 342 222 33

H 0699/19528084

F +43 1 342 222 11