Bezugsfertige, vollmöblierte Apartments in begehrter Lage von Graz-Lend

Wohnung , 8020 Graz , Wiener Straße


Beschreibung der Immobilie

Bezugsfertige, vollmöblierte Apartments in begehrter Lage von Graz-Lend

Dieses charmante Apartment befindet sich in einem der beliebtesten Stadtteile von Graz – Graz-Lend. Die Wohnung liegt in unmittelbarer Nähe zur Firma AVL sowie zu weiteren namhaften Unternehmen und ist somit besonders attraktiv für Berufstätige. Der Standort überzeugt durch eine ausgezeichnete Anbindung an das öffentliche Verkehrsnetz, eine nahegelegene Radfahrstraße sowie die rasche Erreichbarkeit der Bundesstraße. Darüber hinaus ist die Infrastruktur hervorragend ausgebaut: Schulen, Post, Einkaufsmöglichkeiten sowie sämtliche Einrichtungen des täglichen Bedarfs befinden sich in unmittelbarer Umgebung.



Hier bietet sich eine attraktive Gelegenheit!



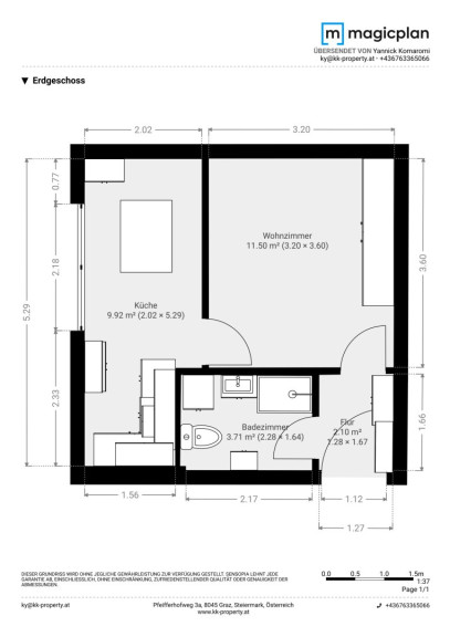
Die Wohnung befindet sich im Erdgeschoss eines Wohnhauses. Die vollständig möblierte Einheit bietet auf rund 28 m² Wohnfläche eine durchdachte Raumaufteilung:




  • Vorraum



  • Küche mit Essecke



  • Wohn-/Schlafzimmer



  • Badezimmer mit Dusche und WC



  • Kellerabteil




Parkplätze stehen direkt vor dem Haus in der grünen Parkzone zur Verfügung. Die Beheizung der Wohnung erfolgt mittels Elektroheizung. 



Die monatliche Gesamtmiete beträgt € 450,– und umfasst den Nettomietzins, die Betriebskosten sowie sämtliche gesetzlichen Abgaben. Die Kosten für Strom sind nicht inkludiert und werden separat direkt mit dem jeweiligen Energiedienstleister abgerechnet.



Für weitere Informationen oder zur Vereinbarung eines Besichtigungstermins stehe ich Ihnen gerne zur Verfügung.



Bitte beachten Sie, dass wir aufgrund unserer Nachweispflicht gegenüber dem Abgeber nur Anfragen beantworten dürfen, die vollständigen Namen, Anschrift sowie eine Telefonnummer enthalten.


Der Immobilienmakler erklärt, dass er – entgegen dem in der Immobilienwirtschaft üblichen Geschäftsgebrauch des Doppelmaklers – einseitig nur für den Vermieter tätig ist.

Infrastruktur / Entfernungen

Gesundheit
Arzt <250m
Apotheke <750m
Klinik <1.000m
Krankenhaus <1.500m

Kinder & Schulen
Schule <500m
Kindergarten <250m
Universität <1.500m
Höhere Schule <1.250m

Nahversorgung
Supermarkt <500m
Bäckerei <250m
Einkaufszentrum <1.250m

Sonstige
Geldautomat <750m
Bank <250m
Post <500m
Polizei <1.000m

Verkehr
Bus <250m
Straßenbahn <1.000m
Autobahnanschluss <5.250m
Bahnhof <1.250m

Angaben Entfernung Luftlinie / Quelle: OpenStreetMap

Eckdaten Objektnr. 7852/323

Art: Wohnung
Land: Österreich
Gesamtmiete: 450,00
Kaltmiete (netto): 409,09 €
Kaltmiete: 409,09 €
Provision: Gemäß Erstauftraggeberprinzip bezahlt der Abgeber die Provision.
MwSt Gesamt: 40,91 €
Wohnfläche: 28,00 m²
Zimmer: 1
Bäder: 1
WC: 1
Immobilie merken Exposé

Immobilie anfragen


Ihre persönliche Beratung

K&K Property GmbH

Yannick Komaromi

K&K Property GmbH

T +43 676 33 650 66