Neubauwohnung mit großer Dachterrasse

Wohnung , 5222 Munderfing


Ruhig gelegen – und doch bestens angebunden! Das Wohnprojekt entsteht in einem neu erschlossenen Teil des Föhrenwegs in Munderfing – in angenehmer Nähe zu Bahnhof, Nahversorger und Kindergarten, die Sie in wenigen Minuten erreichen. Die Stadt Mattighofen liegt nur 5 km entfernt, die Festspielstadt Salzburg ist in rund 35 km bequem erreichbar. Das Grundstück selbst befindet sich an einer ruhigen Nebenstraße, eingebettet in eine Umgebung aus Wiesen und Feldern – ein Ort, an dem Natur und Alltag perfekt zusammenspielen. Naturgenuss direkt vor der Haustür! Direkt angrenzend lädt das Naherholungsgebiet Kobernaußerwald zu vielfältigen Outdoor-Aktivitäten ein – ob Wandern, Radfahren oder einfach Durchatmen im Grünen. An heißen Tagen sorgt das nur 15 km entfernte Strandbad Mattsee für Abkühlung.

Beschreibung der Immobilie

Neubauwohnung mit großer Dachterrasse

Sie suchen nach einer leistbaren Neubauwohnung, dann sind Sie hier genau richtig!



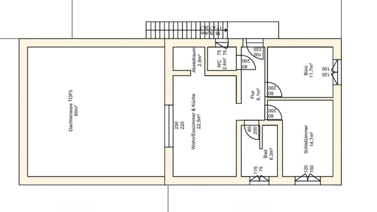
Auf ca. 66 m² Wohnfläche finden Sie:



  • Eingangsbereich und Flur
  • Büro
  • Schlafzimmer
  • Badezimmer mit Dusche, Waschbecken und Waschmaschinenanschluss
  • Wohn/Esszimmer & Küche
  • Abstellraum
  • separates WC


Nicht zur Wohnfläche gerechnet wird die ca. 60m² große Dachterrasse





Zudem gehören zur Wohnung:



  • Zwei zugeordnete Außenstellplätze

Hinweis gemäß Energieausweisvorlagegesetz: Ein Energieausweis wurde vom Eigentümer bzw. Verkäufer, nach unserer Aufklärung über die generell geltende Vorlagepflicht, sowie Aufforderung zu seiner Erstellung noch nicht vorgelegt. Daher gilt zumindest eine dem Alter und der Art des Gebäudes entsprechende Gesamtenergieeffizienz als vereinbart. Wir übernehmen keinerlei Gewähr oder Haftung für die tatsächliche Energieeffizienz der angebotenen Immobilie.


Wir weisen darauf hin, dass zwischen dem Vermittler und dem zu vermittelnden Dritten ein familiäres oder wirtschaftliches Naheverhältnis besteht.


Der Vermittler ist als Doppelmakler tätig.

Infrastruktur / Entfernungen

Gesundheit
Arzt <1.500m
Apotheke <4.000m

Kinder & Schulen
Schule <1.000m
Kindergarten <1.000m

Nahversorgung
Supermarkt <1.000m
Bäckerei <1.500m
Einkaufszentrum <4.000m

Sonstige
Bank <1.000m
Geldautomat <1.000m
Post <3.500m
Polizei <4.000m

Verkehr
Bus <500m
Bahnhof <500m

Angaben Entfernung Luftlinie / Quelle: OpenStreetMap

Eckdaten Objektnr. 7446/521

Art: Wohnung
Land: Österreich
Zustand: Erstbezug
Alter: Neubau
Kaufpreis: 265.000,00
Provision: 3% des Kaufpreises zzgl. 20% USt.
Wohnfläche: 66,00 m²
Zimmer: 2
Bäder: 1
WC: 1
Terrassen: 1
Stellplätze: 2
Immobilie merken Exposé

Ausstattung

Parkett, Fliesen, Fußbodenheizung, Bad mit Fenster, Dusche, Parkplatz


Immobilie anfragen


Ihre persönliche Beratung

PRIMO

Marcel Pramhas

PRIMO

T +43 650 9293149

H +43 650 9293149